Contact Agent
Contact John Minnis Estate Agents (Donaghadee)
4 Bed Terrace House
4 Shore Street
Donaghadee, BT21 0DG
offers around
£474,950
Key Features & Description
One of the Last Remaining Opportunities to Purchase a Property with Residential, Commercial and Development Options
Shore Front Location with Stunning Views of Picturesque Lighthouse, Harbour, Copeland Islands, Donaghadee Sound and Beyond to Irish Sea
Versatile and Flexible Accommodation
Property Steeped in History
Once Featured in ? Magazine
Ground Floor with Former Antique Dealers
Two Ground Floor Rooms Which Could be Bedrooms, Living Accommodation or Commercial Units
Ground Floor Office
Ground Floor WC
Ground Floor Kitchenette
Magnificent Living Room with Cast Iron Gas Stove, Open Plan to Dining Area Which Spans the Width of the Property, Stunning Sea Views
Kitchen with Stunning Sea Views
Conservatory
Two Bedrooms, Both with Stunning Sea Views
Master Bedroom with En Suite Bathroom
Additional Separate Large Shower Room
Study
Utility Room
Gas Fired Heating
ouPVC Double Glazed Windows
Driveway and Parking Area Accessed via Remote Control Door Leading to Extensive Covered Parking Area for Numerous Vehicles, Potential for Development or to Incorporate Back into the Property Subject to Necessary Approvals
Delightful Terrace Courtyard in Attractive Brick Paviour
Pedestrian Access to Rear
Prime Town Centre Location with Excellent Convenience to Shops, Amenities, Cafes and Restaurants
Plans Previously Passed for First and Second Floor Extension Providing Extra Bedroom and Living Accommodation, These Plans Have Now Lapsed
Description
Surely one of the last opportunities to purchase a property in the heart of Donaghadee with residential and commercial development options available. This property is steeped in history and is well renowned for its charm, character and location. Situated along the shore front there are stunning uninterrupted views of the lighthouse, Copeland Islands and beyond.
The ground floor comprises two bedrooms, which used to be commercial units but could be reception/living accommodation, as well as an office, kitchenette and WC. Upstairs evenly distributed over the other floors are two additional bedrooms, including master with en suite bathroom, separate shower room, conservatory, study, utility room, kitchen and, undoubtedly the room of the house, a magnificent living room with cast iron gas stove and stunning views, open plan to dining area spanning the entire width of the house. There is a driveway and garage accessed via remote controlled door which leads to an extensive covered parking area with space for numerous vehicles. There would be potential to develop this area or incorporate it into the main part of the house subject to necessary approvals.
Outside there is a courtyard accessed via the conservatory which also offers pedestrian access to the rear. Other benefits include previously passed plans to extend the property on first and second floor levels providing an extra bedroom and living accommodation. Please note that these plans have now lapsed.
As part of our obligations under the Money Laundering, Terrorist Financing and Transfer of Funds (Information on the Payer) Regulations 2017, all Estate Agents are required to verify the identity of purchasers involved in a property transaction.
To comply with these obligations, all purchasers will be required to complete Customer Due Diligence (AML) identity checks. These checks are carried out on our behalf by our trusted third-party provider, Thirdfort.
A charge will apply of £20 + VAT per purchaser.
Surely one of the last opportunities to purchase a property in the heart of Donaghadee with residential and commercial development options available. This property is steeped in history and is well renowned for its charm, character and location. Situated along the shore front there are stunning uninterrupted views of the lighthouse, Copeland Islands and beyond.
The ground floor comprises two bedrooms, which used to be commercial units but could be reception/living accommodation, as well as an office, kitchenette and WC. Upstairs evenly distributed over the other floors are two additional bedrooms, including master with en suite bathroom, separate shower room, conservatory, study, utility room, kitchen and, undoubtedly the room of the house, a magnificent living room with cast iron gas stove and stunning views, open plan to dining area spanning the entire width of the house. There is a driveway and garage accessed via remote controlled door which leads to an extensive covered parking area with space for numerous vehicles. There would be potential to develop this area or incorporate it into the main part of the house subject to necessary approvals.
Outside there is a courtyard accessed via the conservatory which also offers pedestrian access to the rear. Other benefits include previously passed plans to extend the property on first and second floor levels providing an extra bedroom and living accommodation. Please note that these plans have now lapsed.
As part of our obligations under the Money Laundering, Terrorist Financing and Transfer of Funds (Information on the Payer) Regulations 2017, all Estate Agents are required to verify the identity of purchasers involved in a property transaction.
To comply with these obligations, all purchasers will be required to complete Customer Due Diligence (AML) identity checks. These checks are carried out on our behalf by our trusted third-party provider, Thirdfort.
A charge will apply of £20 + VAT per purchaser.
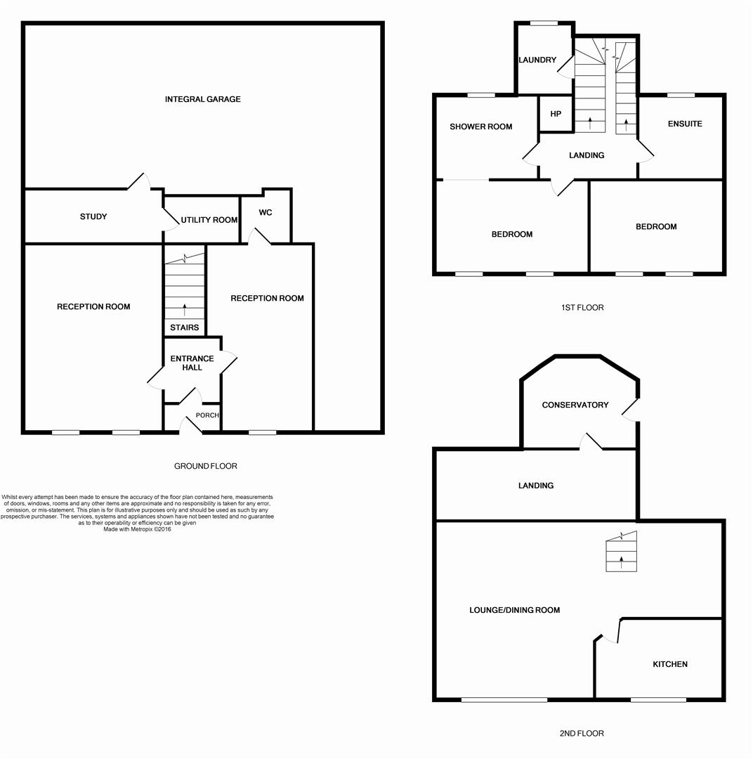
Rooms
GROUND FLOOR
Front door to enclosed entrance porch.
Enclosed Entrance Porch:
Fully tiled floor, glazed inner door to reception hall.
Family Room/Shop Unit One: 20'6" X 15'4" (6.25m X 4.67m)
at widest points
Stunning views of Donaghadee´s picturesque harbour, lighthouse, Donaghadee Sound, Copeland Islands and beyond to Irish Sea, attractive cast iron fireplace with tiled inset, tiled hearth and gas coal effect fire, ornate cornice ceiling, picture rail, built-in shelving.
Stunning views of Donaghadee´s picturesque harbour, lighthouse, Donaghadee Sound, Copeland Islands and beyond to Irish Sea, attractive cast iron fireplace with tiled inset, tiled hearth and gas coal effect fire, ornate cornice ceiling, picture rail, built-in shelving.
Office: 14'1" X 6'9" (4.29m X 2.06m)
Door to garage and parking.
Kitchenette:
Single bowl single drainer stainless steel sink unit.
Shop Unit Two/Playroom/Dining Room: 20'6" X 11'7" (6.25m X 3.53m)
Stunning views over Donaghadee´s picturesque lighthouse, harbour, Donaghadee Sound, Copeland Islands and beyond to Irish Sea, cornice ceiling, picture rail.
Ground Floor WC:
White suite comprising: low flush WC, wash hand basin, tiled splashback.
FIRST FLOOR
Built-in shelving, dado rail.
Utility Room: 7'1" X 7'5" (2.16m X 2.26m)
Plumbed for washing machine, space for tumble dryer, built-in shelving.
Landing:
Cornice ceiling, dado rail, shelved hotpress with storage.
Master Bedroom: 14'12" X 11'4" (4.57m X 3.45m)
into robes at widest points
Stunning views over picturesque harbour, lighthouse, Donaghadee Sound, Copeland Islands, Irish Sea and beyond to Scotland, extensive range of built-in wardrobes, cornice ceiling.
Stunning views over picturesque harbour, lighthouse, Donaghadee Sound, Copeland Islands, Irish Sea and beyond to Scotland, extensive range of built-in wardrobes, cornice ceiling.
Ensuite Bathroom:
White suite comprising: panelled bath with mixer tap and telephone hand shower, low flush WC, pedestal wash hand basin with mixer tap, chrome heated towel rail, part tiled walls, dado rail, cornice ceiling.
Bedroom Two: 15'9" X 10'12" (4.80m X 3.35m)
at widest points
Stunning views over picturesque harbour, lighthouse, Donaghadee Sound, Copeland Islands, Irish Sea and beyond to Scotland, range of built-in mirror fronted slide robes, cornice ceiling.
Stunning views over picturesque harbour, lighthouse, Donaghadee Sound, Copeland Islands, Irish Sea and beyond to Scotland, range of built-in mirror fronted slide robes, cornice ceiling.
Shower Room:
White suite comprising: built-in fully tiled shower cubicle, low flush WC, wash hand basin with chrome mixer tap in vanity unit, fully tiled floor, part tiled walls, part tongue and groove walls, tongue and groove ceiling, airing cupboard.
Study: 7'4" X 7'7" (2.24m X 2.31m)
Conservatory: 11'6" X 9'2" (3.51m X 2.79m)
at widest points
Double glazed door to outside.
Double glazed door to outside.
Magnificent Open Plan Living Room to Dining/Family 32'4" X 19'6" (9.86m X 5.94m)
at widest points narrowing to 9´8"
Stunning views over picturesque lighthouse, harbour, Donaghadee Sound, Copeland Islands, Irish Sea and beyond to Scotland, cast iron gas stove on tiled hearth, tiled inset, wooden sleeper mantel, telecom entry system in living room (?).
Stunning views over picturesque lighthouse, harbour, Donaghadee Sound, Copeland Islands, Irish Sea and beyond to Scotland, cast iron gas stove on tiled hearth, tiled inset, wooden sleeper mantel, telecom entry system in living room (?).
Kitchen: 14'12" X 9'8" (4.57m X 2.95m)
at widest points
Stunning views over picturesque lighthouse, harbour, Donaghadee Sound, Copeland Islands, Irish Sea and beyond to Scotland, range of high and low level units, laminate work surfaces, Franke one and a half bowl single drainer sink unit with disposal, integrated four ring hob, tiled splashback, Neff extractor fan above, integrated Neff oven and hob, recessed for fridge freezer, integrated Smeg dishwasher, glass display cabinet with built-in lighting, casual dining area, part tiled walls.
Stunning views over picturesque lighthouse, harbour, Donaghadee Sound, Copeland Islands, Irish Sea and beyond to Scotland, range of high and low level units, laminate work surfaces, Franke one and a half bowl single drainer sink unit with disposal, integrated four ring hob, tiled splashback, Neff extractor fan above, integrated Neff oven and hob, recessed for fridge freezer, integrated Smeg dishwasher, glass display cabinet with built-in lighting, casual dining area, part tiled walls.
OUTSIDE
Access to driveway and huge parking/storage area.
Parking/Storage Area 37'8" X 21'8" (11.48m X 6.60m)
plus driveway
Accessed via electric remote roller shutter door, gas fired boiler, power, light, mechanic pit, excellent storage, potential to reconfigure back into the property subject to necessary approvals, sink unit with hot and cold water.
Accessed via electric remote roller shutter door, gas fired boiler, power, light, mechanic pit, excellent storage, potential to reconfigure back into the property subject to necessary approvals, sink unit with hot and cold water.
OUTSIDE
Delightful enclosed terrace courtyard with excellent degree of privacy, separate pedestrian access to Donaghadee town centre, attractive brick tiling, extensive timber decked terrace with south westerly aspect, outside tap.
Donaghadee is a picturesque coastal town on the North Down coastline, celebrated for its breathtaking sea views and nearby Copeland Islands
With charming streets filled with local shops, cafes, and outdoor activities like sailing, it offers a vibrant community spirit. Just a short drive from Belfast, Donaghadee has been voted as one of the best places to live, combining natural beauty with a welcoming atmosphere.
With charming streets filled with local shops, cafes, and outdoor activities like sailing, it offers a vibrant community spirit. Just a short drive from Belfast, Donaghadee has been voted as one of the best places to live, combining natural beauty with a welcoming atmosphere.
Broadband Speed Availability
Potential Speeds for 4 Shore Street
Max Download
1800
Mbps
Max Upload
220
MbpsThe speeds indicated represent the maximum estimated fixed-line speeds as predicted by Ofcom. Please note that these are estimates, and actual service availability and speeds may differ.
Property Location
Mortgage Calculator
Contact Agent
Contact John Minnis Estate Agents (Donaghadee)
Request More Information
Requesting Info about...
4 Shore Street, Donaghadee, BT21 0DG
By registering your interest, you acknowledge our Privacy Policy
By registering your interest, you acknowledge our Privacy Policy