Contact Agent
Contact Victoria Pinkerton (North Down)
3 Bed Semi-Detached House
25 Rocklyn Crescent
Donaghadee, BT21 0FY
offers around
£225,000
Key Features & Description
Modern Three Bed semi Detached Property In The Popular Rocklyn Development
Contemporary Kitchen With Utility
Lounge With Feature Bay Window
Three Good Sized Bedrooms, Master With Ensuite
Downstairs WC and First Floor Family Bathroom
Double Doors Out To Patio Off Dining Area
Private Low Maintence Garden
Gas Fired Central Heating
Off Street Parking
Outskirts Of Donaghadee With Walking Distance To The Town
Description
This modern three bedroom property offers well-balanced accommodation arranged over two floors, finished to a contemporary standard throughout. The ground floor features a stylish, fitted kitchen with integrated appliances. This spacious kitchen/dining area is complete with French doors opening onto the rear garden-ideal for both everyday living and entertaining.
Upstairs, the home boasts three well-proportioned bedrooms, including a generous principal bedroom with en-suite, alongside a modern family bathroom with quality fixtures and fittings.
Externally, the property benefits from a private rear garden, perfect for relaxing or outdoor dining, as well as off-road parking. This home is still within its new-build lifespan, offering energy efficiency, modern construction, and peace of mind.
This modern three bedroom property offers well-balanced accommodation arranged over two floors, finished to a contemporary standard throughout. The ground floor features a stylish, fitted kitchen with integrated appliances. This spacious kitchen/dining area is complete with French doors opening onto the rear garden-ideal for both everyday living and entertaining.
Upstairs, the home boasts three well-proportioned bedrooms, including a generous principal bedroom with en-suite, alongside a modern family bathroom with quality fixtures and fittings.
Externally, the property benefits from a private rear garden, perfect for relaxing or outdoor dining, as well as off-road parking. This home is still within its new-build lifespan, offering energy efficiency, modern construction, and peace of mind.
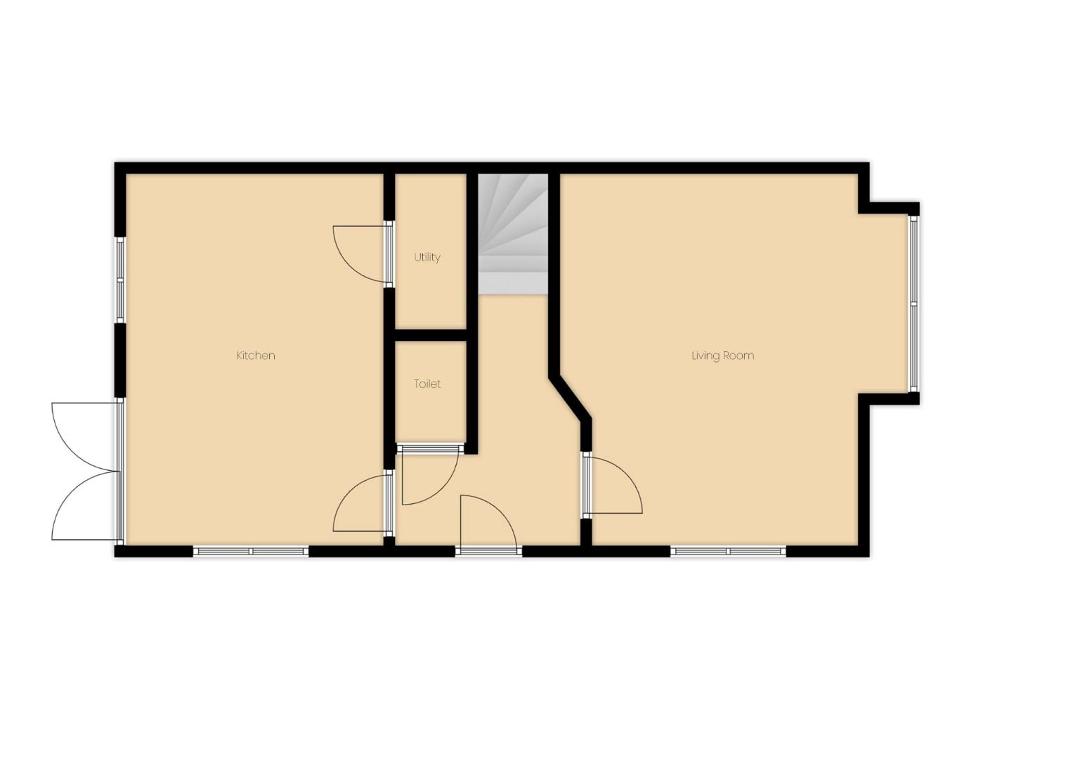
Rooms
Hallway 8'2 X 16'6 (2.49m X 5.03m)
Toilet 3'4" X 4'9" (1.02m X 1.45m)
Kitchen 11'2" X 15'11 (3.40m X 4.85m)
Utility 3'3" X 6'8" (0.99m X 2.03m)
Living Room 15'7" X 16" (4.75m X 4.88m)
Bedroom 1 15'7" X 11'7" (4.75m X 3.53m)
Bedroom 2 10'2" X 8'2" (3.10m X 2.49m)
Bedroom 3 11'6 X 7'5" (3.51m X 2.26m)
Landing 10'11" X 10'7" (3.33m X 3.23m)
Bathroom 7'3" X 5'5" (2.21m X 1.65m)
Storage 4'10" X 2'11" (1.47m X 0.89m)
REQUIRED INFO UNDER TRADING STANDARDS GUIDANCE
Tenure - Understood To Be Freehold
Rates - Understood To Be £1300 Per Annum
Rates - Understood To Be £1300 Per Annum
Directions
From the High Bangor Road, turn left after the Water Plant. Rocklyn Crescent is the first turn on the right and number 25 is at the end of the street on the left corner.
IMPORTANT NOTE TO PURCHASERS
We aim to make our sales particulars accurate and reliable. However, they do not constitute or form part of an offer or contract, and none are to be relied upon as statements of representation or fact. The detail provided in the `Required information under Trading Standards guidance´ is provided in good faith from information supplied to Pinkertons by the Vendor. All, save for Tenure, are subject to change annually. We have not tested any services, systems, and appliances listed in this specification, and there is no guarantee of their operating ability or efficiency. All measurements have only been taken as a guide to prospective buyers and are not precise. Please be advised that some of the particulars may be awaiting vendor approval. If you require clarification or further information on any points, please contact us, especially if you are travelling some distance to view. Fixtures and fittings other than those mentioned are to be agreed upon with the seller.
Please Note: This property is being sold on behalf of an employee of Victoria Pinkerton. This employee will not be involved in the negotiations on this property.
We aim to make our sales particulars accurate and reliable. However, they do not constitute or form part of an offer or contract, and none are to be relied upon as statements of representation or fact. The detail provided in the `Required information under Trading Standards guidance´ is provided in good faith from information supplied to Pinkertons by the Vendor. All, save for Tenure, are subject to change annually. We have not tested any services, systems, and appliances listed in this specification, and there is no guarantee of their operating ability or efficiency. All measurements have only been taken as a guide to prospective buyers and are not precise. Please be advised that some of the particulars may be awaiting vendor approval. If you require clarification or further information on any points, please contact us, especially if you are travelling some distance to view. Fixtures and fittings other than those mentioned are to be agreed upon with the seller.
Please Note: This property is being sold on behalf of an employee of Victoria Pinkerton. This employee will not be involved in the negotiations on this property.
Video
Property Location
Mortgage Calculator
Contact Agent
Contact Victoria Pinkerton (North Down)
Request More Information
Requesting Info about...
25 Rocklyn Crescent, Donaghadee, BT21 0FY
By registering your interest, you acknowledge our Privacy Policy
By registering your interest, you acknowledge our Privacy Policy