Contact Agent

Contact Simon Brien (Holywood)

Contact Simon Brien (Holywood)

4 Bed Detached House

11 High Trees View

Donaghadee, County Down, BT21 0GX

price £410,000
  • Status For Sale
  • Property Type Detached
  • Bedrooms 4
  • Receptions 2
  • Bathrooms 2
  • EPC Rating A93 / A93
  • Stamp Duty
    Higher amount applies when purchasing as buy to let or as an additional property
    £10,500 / £31,000*
  • Typical Mortgage
    Click price to use our mortgage calculator
EPC Rating

Key Features & Description

  • Recently constructed and immaculately presented detached home
  • Located in the award winning residential development of High Trees
  • Large living room with bay window, media wall and new electric fire
  • Stunning open plan kitchen, dining, sunroom area with French doors to patio and garden
  • Kitchen complete with quartz work surfaces, excellent range of integrated appliances and island with breakfast bar
  • Ground floor WC and utility room
  • Four well appointed bedrooms, principal with ensuite shower room
  • Modern bathroom with four piece white suite
  • Gas fired central heating and uPVC double glazed windows
  • Solar panels and EV car charger
  • Large, private south-facing rear garden, which enjoys open countryside views
  • Tarmac driveway providing parking for four cars
  • Seven years NHBC warranty remaining
  • A rated EPC
  • Popular and convenient location
  • Early viewing strongly recommended
  • Description
    We are delighted to present this exceptional four-bedroom detached residence, recently constructed and finished to a superb standard, located within the highly regarded and award-winning High Trees development in Donaghadee.
    The ground floor offers beautifully designed living space, beginning with a bright and spacious living room, complemented by a convenient cloakroom with WC. The heart of the home is the stunning open-plan kitchen, dining, sunroom area - an impressive and stylish space ideal for both everyday family life and entertaining. The contemporary kitchen is finished with high-quality integrated appliances, quartz worktops, and a large central island with breakfast bar. A separate utility room provides additional practicality and storage.
    Upstairs, the property continues to impress with four generously proportioned bedrooms. The principal bedroom benefits from a modern en-suite shower room, while a beautifully appointed family bathroom serves the remaining bedrooms.
    A standout feature of this superb home is the large, private south-facing rear garden, which enjoys open countryside views and offers an extensive paved patio area - perfect for outdoor dining and relaxation. To the front, a tarmac driveway provides ample off-street parking for up to four vehicles.
    Ideally positioned within easy walking distance of Donaghadee´s vibrant town centre and just a short drive from Bangor and Newtownards, the property enjoys convenient access to excellent schools, shops, coastal walks, and a wide range of local amenities.
    Early viewing is highly recommended to fully appreciate the quality, space, and setting this outstanding home has to offer.

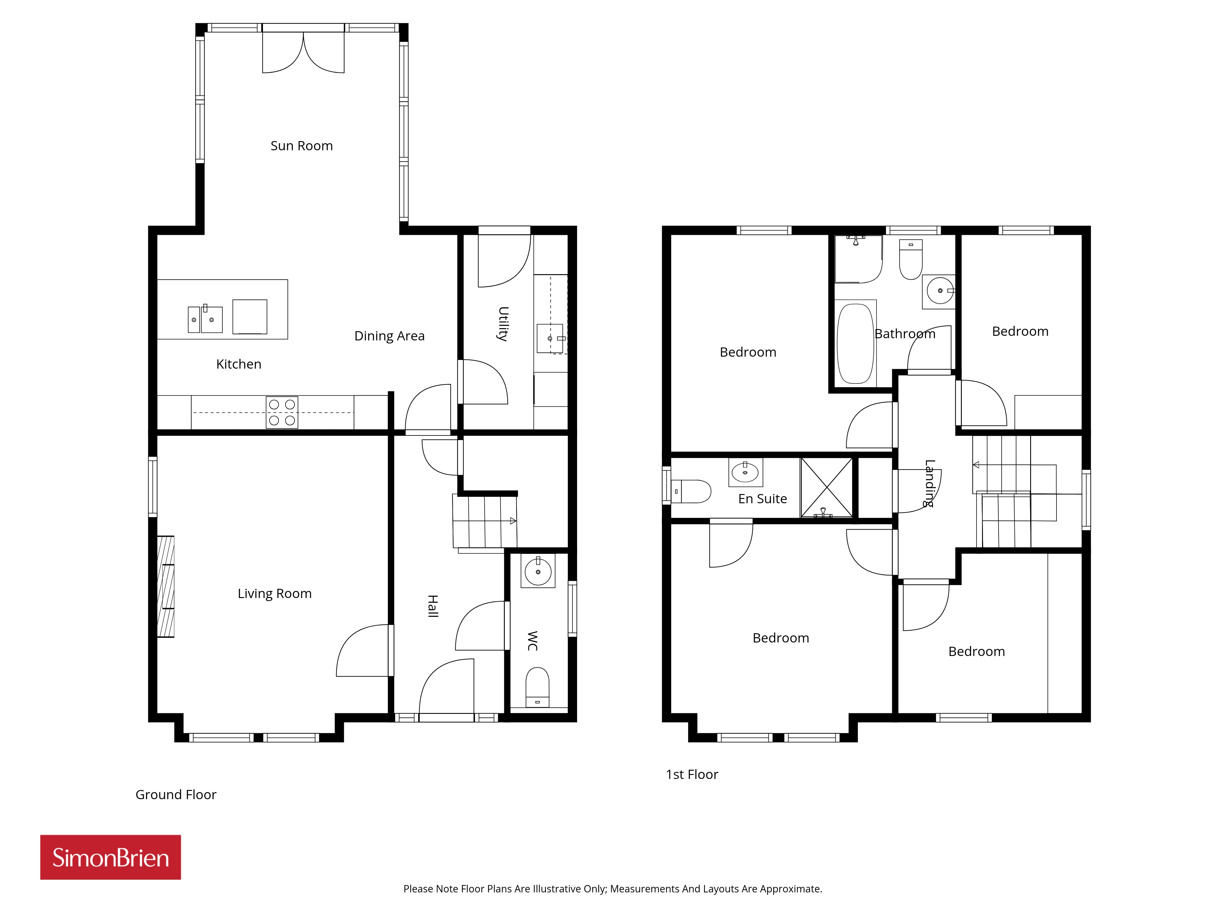
    Rooms

    Entrance Hall 8'2" X 18'1" (2.50m X 5.50m)
    Ground Floor Composite front door with double glazed side panels, outside light.
    Spacious Reception Hall Ceramic tiled floor, under stairs storage cupboard.
    Ground Floor WC Wash hand basin with chrome mixer taps, concealed cistern WC, ceramic tiled floor, chrome heated towel radiator.
    Living Room 17'4" X 13'8" (5.28m X 4.17m) Newly fitted media wall with high end electric fire. Feature wood panelling.
    Open Plan Kitchen/Living/Dining 22'8" X 18'2" (6.90m X 5.54m) Excellent range of shaker style units with Quartz work surfaces, upstand and splashback, large island with built in breakfast bar, inset 1 1/4 bowl sink unit with feature mixer tap, integrated fridge and freezer, integrated dishwasher, integrated Induction hob with extractor above, high level double oven, integrated bins, ceramic tiled floor, uPVC double glazed French doors to patio and garden.
    Utility Room 11'7" X 5'4" (3.53m X 1.63m) Range of shaker style units, laminate work surfaces, single drainer stainless steel sink unit with chrome mixer taps. Plumbed for washing and space for tumble drier.
    First Floor
    Landing Access to roofspace, fully floored with Slingsby ladder and light.
    Bedroom 1 12'7" X 12'1" (3.84m X 3.68m)
    Ensuite Shower Room Comprising: Low flush WC, pedestal wash hand basin, fully tiled shower cubicle with chrome thermostatic shower unit, ceramic tiled floor, extractor fan, low voltage spotlights.
    Bedroom 2 12'5" X 8'9" (3.78m X 2.67m)
    Bedroom 3 11'1" X 9'0" (3.38m X 2.74m)
    Bedroom 4 11'0" X 8'2" (3.35m X 2.50m)
    Bathroom White suite comprising: Panelled bath with chrome mixer taps and tiled splashback, wash hand basin with chrome mixer taps, tiled splashback, low flush WC, fully tiled shower cubicle with chrome thermostatic shower unit, ceramic tiled floor, extractor fan.
    Outside Tarmac driveway providing off street parking for four cars, front garden laid in lawns with flowerbeds in plants and shrubs.

    Large, private south-facing rear garden laid in lawns with extensive paved patio area, outside tap, outside lighting, outside power, hot and cold water tap, EV charging point. 8 solar panels.
    Note: Under the terms and conditions of the Estate Agency Act 1979, we wish to inform you that 11 High Trees View is being sold by a member of staff in Simon Brien.

    Broadband Speed Availability

    Ultrafast

    Potential Speeds for 11 High Trees View

    Max Download
    1800
    Mbps
    Max Upload
    220
    Mbps
    The speeds indicated represent the maximum estimated fixed-line speeds as predicted by Ofcom. Please note that these are estimates, and actual service availability and speeds may differ.

    Property Location

    Show Map

    Mortgage Calculator

    Disclaimer: The following calculations act as a guide only, and are based on a typical repayment mortgage model. Financial decisions should not be made based on these calculations and accuracy is not guaranteed. Always seek professional advice before making any financial decisions.

    Contact Agent

    Contact Simon Brien (Holywood)

    Contact Simon Brien (Holywood)

    Request More Information
    Requesting Info about...
    11 High Trees View, Donaghadee, County Down, BT21 0GX 11 High Trees View, Donaghadee, County Down, BT21 0GX

    By registering your interest, you acknowledge our Privacy Policy
    Ask Holmes
    Ask Holmes
    Let's find your next home

    Are you sure you want to reset the chat?

    Checking API...