Contact Agent

Contact Colin Graham Residential

Contact Colin Graham Residential

4 Bed Detached House

26 Village Green

Doagh, BT39 0UD

offers over £285,000
  • Status For Sale
  • Property Type Detached
  • Bedrooms 4
  • Receptions 2
  • Bathrooms 2
  • Heating Oil
  • EPC Rating D62 / C76 -
  • Stamp Duty
    Higher amount applies when purchasing as buy to let or as an additional property
    £4,250 / £18,500*
  • Typical Mortgage
    Click price to use our mortgage calculator
EPC Rating

Key Features & Description

Extended, Family Sized Detached
Four Bedrooms; Principal En Suite
Lounge
Kitchen Through Living/Dining Room
Sun Lounge
Deluxe Bathroom
Oil Heating; PVC Double Glazing
Private Driveway; Garage
Fully Enclosed Rear Garden
Village Setting
Description
Well presented, four bedroom/two+ reception, extended, detached, family home with sun lounge and matching detached garage, situated within the well sought after Village Green development, Doagh, Ballyclare.

The property comprises entrance hall, furnished cloakroom, lounge, kitchen through living/dining room, modern fitted kitchen, sun lounge, four bedrooms, to include principal en suite, and deluxe family bathroom, with contemporary, white, four piece suite.

Externally, the property enjoys private driveway, matching detached garage, and fully enclosed rear garden.

Other attributes include oil heating, PVC double glazing, and village setting.

Early viewing highly recommended.

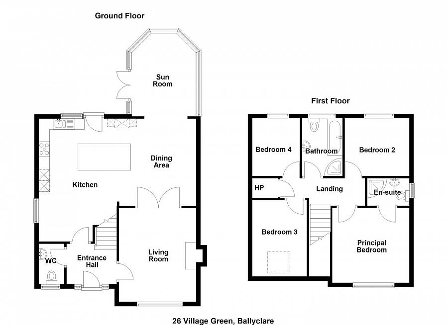
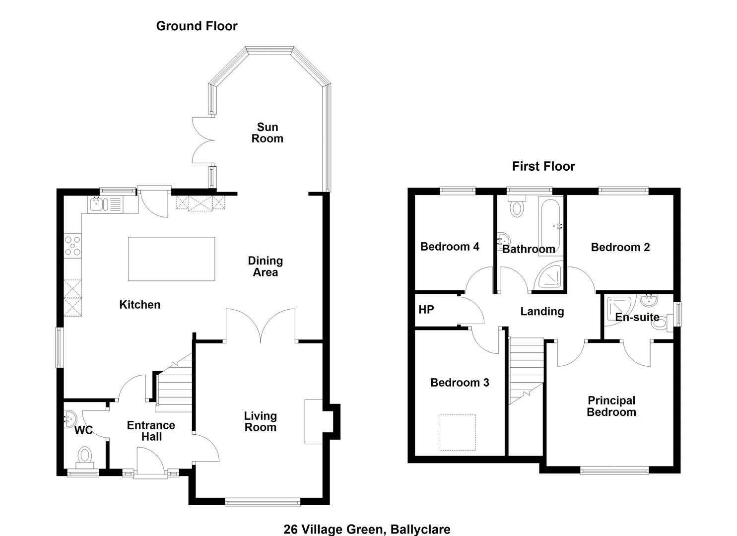
Rooms

ACCOMMODATION
ENTRANCE HALL Composite double glazed front door. Tiled floor. Stairwell to first floor.
FURNISHED CLOAKROOM Contemporary, white, two piece suite comprising semi pedestal wash hand basin and WC. Tiled feature wall. Tiled floor.
LOUNGE 14'4" X 11'9" (4.39m X 3.59m) Inglenook recess with cast iron wood burning stove on slate hearth with timber mantle. Picture window to front elevation. Tiled floor. Glass panelled French doors leading to kitchen through living/dining room.
KITCHEN THROUGH LIVING/DINING ROOM 23'9" X 19'6" (wps) (7.25m X 5.96m (wps)) Modern fitted kitchen with comprehensive range of high and low level storage units with contrasting solid quartz worktop. Matching island unit with breakfast area. Inlaid stainless steel 1.5 bowl sink unit. Integrated Neff double ovens and microwave oven. Built in Bosch coffee machine. Integrated, Neff, touch screen induction hob with extractor hood over. Integrated dishwasher. Space for American style fridge freezer. Twin glass fronted display cabinets. Splashback tiling to walls. Solid quartz upstands to walls. Tiled floor. PVC double glazed door to rear garden. Open arch leading to:
SUN LOUNGE 13'0" X 10'9" (3.98m X 3.28m) PVC double glazed windows and matching French doors to rear garden. Tiled floor. Exposed brick feature walls.
FIRST FLOOR
LANDING Wood laminate floor covering. Access to shelved hot press. Access to roof space.
PRINCIPAL BEDROOM 11'8" X 11'5" (3.57m X 3.50m) Wood laminate floor covering.
DELUXE FULLY TILED EN SUITE SHOWER ROOM Contemporary, white, three piece suite comprising shower enclosure, semi pedestal wash hand basin and WC. Thermostat controlled mains shower unit. Chrome towel radiator. Illuminated mirror over sink.
BEDROOM 2 9'10" X 8'7" (3.00m X 2.64m) Wood laminate floor covering.
BEDROOM 3 11'8" X 8'2" (3.57m X 2.49m) Wood laminate floor covering.
BEDROOM 4 8'7" X 7'3" (2.63m X 2.22m) Exposed timber tongue and groove flooring.
FULLY TILED FAMILY BATHROOM Contemporary, white, four piece suite comprising panelled bath, separate oversized shower enclosure, semi pedestal wash hand basin and WC. Thermostat controlled Aqualisa power shower unit with drench shower head. Chrome towel radiator. Illuminated mirror over sink. Recessed lighting to floor.
EXTERNAL Private driveway area finished in tarmac.
Front garden finished in lawn, mature tree and shrubs.
External lighting.
PVC soffits, fascia and rainwater goods.
Fully enclosed rear garden finished in lawn, tree bark and brick paviour.
Outside tap.
PVC oil storage tank.
MATCHING DETACHED GARAGE 19'9" X 10'9" (6.04m X 3.28m) Up and over door. Separate, timber, glazed service door to rear garden. Power light and oil fired central heating boiler.
IMPORTANT NOTE TO ALL POTENTIAL PURCHASERS Every care has been taken with the preparation of these particulars, but complete accuracy cannot be guaranteed. If there is any point, which is of particular importance to you, please obtain professional confirmation. Alternatively, we will be pleased to check the information for you. All measurements quoted are approximate. The Fixtures, Fittings & Appliances have not been tested and therefore no guarantee can be given that they are in working order. Photographs are reproduced for general information and it cannot be inferred that any item shown is included in the sale.

Broadband Speed Availability

Ultrafast

Potential Speeds for 26 Village Green

Max Download
10000
Mbps
Max Upload
10000
Mbps
The speeds indicated represent the maximum estimated fixed-line speeds as predicted by Ofcom. Please note that these are estimates, and actual service availability and speeds may differ.

Property Location

Show Map

Mortgage Calculator

Disclaimer: The following calculations act as a guide only, and are based on a typical repayment mortgage model. Financial decisions should not be made based on these calculations and accuracy is not guaranteed. Always seek professional advice before making any financial decisions.

Contact Agent

Contact Colin Graham Residential

Contact Colin Graham Residential

Request More Information
Requesting Info about...
26 Village Green, Doagh, BT39 0UD 26 Village Green, Doagh, BT39 0UD

By registering your interest, you acknowledge our Privacy Policy