Contact Agent

Contact Eadie McFarland & Co

Contact Eadie McFarland & Co

Building Site

116 Church Hill Road

Derrygonnelly, BT93 6BP

offers around £39,950
  • Status For Sale
  • Property Type Building Site
  • Typical Mortgage
    Click price to use our mortgage calculator

Key Features & Description

Stunning views of Bunnahone Lough and Countryside
C. 0.84 acre
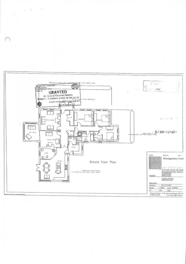
C. 2,050 sq ft proposed bungalow
3 Bedroom/3 Reception room
Detached Garage
Description
Attractive Building Site for Detached 3 Bedroom Bungalow With Garage

Sold with new Certificate of Lawfulness of Proposed Use or Development.

LA10/2021/1329/LDP. Granted 9th December 2021.

Property Location

Show Map

Mortgage Calculator

Disclaimer: The following calculations act as a guide only, and are based on a typical repayment mortgage model. Financial decisions should not be made based on these calculations and accuracy is not guaranteed. Always seek professional advice before making any financial decisions.

Contact Agent

Contact Eadie McFarland & Co

Contact Eadie McFarland & Co

Request More Information
Requesting Info about...
116 Church Hill Road, Derrygonnelly, BT93 6BP 116 Church Hill Road, Derrygonnelly, BT93 6BP

By registering your interest, you acknowledge our Privacy Policy
Ask Holmes
Ask Holmes
Let's find your next home

Are you sure you want to reset the chat?

Checking API...