Retail
Commercial Unit Gortnessy Meadows
Drumahoe, Derry / Londonderry, BT47 3HQ
per annum
£13,200
- Status For Rent
- Property Type Retail
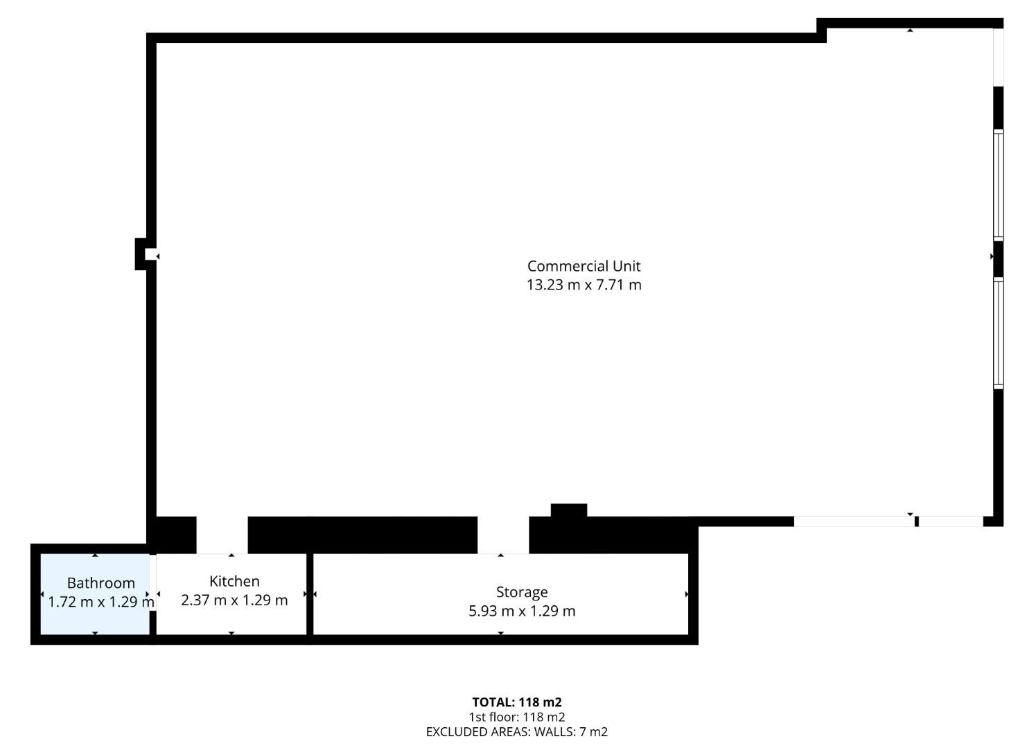
- Interior Area 1270 sqft
- Furnished Part Furnished
Key Features & Description
SPACIOUS OPEN PLAN COMMERCIAL UNIT
APPROX. 118 SQ M (1,270 SQ FT)
SUITABLE FOR A VARIETY OF COMMERCIAL USES
PROMINENT POSITION WITHIN A POPULAR RESIDENTIAL AREA
ANCILLARY KITCHEN FACILITIES AND W.C.
AMPLE STORAGE SPACE
GENEROUS ON SITE CUSTOMER PARKING
Description
Homepage Estate Agents are pleased to offer this modern ground floor commercial unit for lease, occupying a prominent position within an established and growing residential development.
Extending to approximately 118 sq m (1,270 sq ft), the premises provides a spacious open plan commercial floor area with excellent frontage and strong natural light.
Internally the property benefits from ample storage facilities together with ancillary kitchen space and W.C., providing practical back-of-house accommodation suitable for day-to-day operations.
Externally the unit enjoys generous on site customer parking including disabled bays, along with excellent accessibility within a well populated residential catchment area.
The property is suitable for a variety of commercial uses including retail, office, takeaway or professional services.
Guide Rent £13,200 per annum.
Homepage Estate Agents are pleased to offer this modern ground floor commercial unit for lease, occupying a prominent position within an established and growing residential development.
Extending to approximately 118 sq m (1,270 sq ft), the premises provides a spacious open plan commercial floor area with excellent frontage and strong natural light.
Internally the property benefits from ample storage facilities together with ancillary kitchen space and W.C., providing practical back-of-house accommodation suitable for day-to-day operations.
Externally the unit enjoys generous on site customer parking including disabled bays, along with excellent accessibility within a well populated residential catchment area.
The property is suitable for a variety of commercial uses including retail, office, takeaway or professional services.
Guide Rent £13,200 per annum.
Rooms
NOTES
Please note we have not tested any apparatus, fixtures, fittings, or services. All measurements are approximate. Some measurements are taken to widest point. Plans & photographs provided for guidance and illustrative only.
Suitable for a variety of commercial uses subject to necessary statutory approvals.
VAT: All prices and outgoings are exclusive of VAT which may be chargeable.
Lease: New lease available, terms to be agreed.
Suitable for a variety of commercial uses subject to necessary statutory approvals.
VAT: All prices and outgoings are exclusive of VAT which may be chargeable.
Lease: New lease available, terms to be agreed.
VIEWINGS
To arrange a private viewing and to discuss further, please click the 'Enquire Now' button or contact our office on 028 7187 6261
Property Location
Contact Agent
Contact Homepage Estate Agents
Request More Information
Requesting Info about...
Commercial Unit Gortnessy Meadows, Drumahoe, Derry / Londonderry, BT47 3HQ
By registering your interest, you acknowledge our Privacy Policy
By registering your interest, you acknowledge our Privacy Policy