Contact Agent
Contact Simon Brien (Holywood)
Detached House
Eagleton, 29 Seafront Road
Holywood, County Down, BT18 0BB
price
£1,500,000
- Status Sale Agreed
- Property Type Detached
-
Stamp Duty
Higher amount applies when purchasing as buy to let or as an additional property£93,750 / £168,750*
Description
Seafront Road is undoubtedly one of the finest settings in County Down. Located on the Southern shores of Belfast Lough, in the heart of Cultra, 'Eagleton´ occupies a prime waterfront site with uninterrupted views across Belfast Lough to the County Antrim shoreline and the Irish Sea.
This property has full planning consent granted for a replacement dwelling.
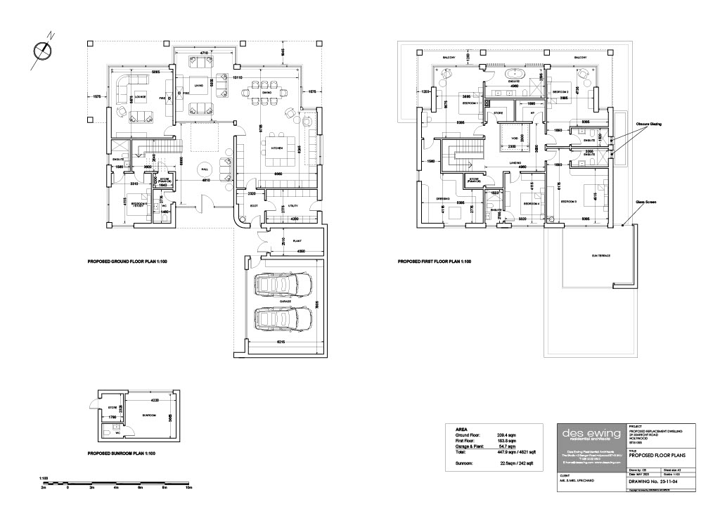
The proposed new house is a magnificent contemporary residence designed by Des Ewing extending to 4582 sq ft (excluding garage/plant room).
There is also another house design for a smaller contemporary residence designed by Des Ewing extending to 3558 sq ft (excluding garage/plant room).
The sale represents a rare opportunity to acquire a ready to build, waterfront site in this absolutely prime location.
For those seeking to build a new home in Cultra, the package that this sale offers is quite unique :
One of the best coastal sites in North Down
An exceptionally well planned contemporary residence designed by award winning architect, Des Ewing.
Full planning consent granted ( potentially saving up to 2 / 3 years in the planning process )
All architects, planning and associated consultants fees paid up to this stage.
Whilst the site benefits from full planning consent for a replacement dwelling, there is also the option that a buyer may choose to renovate the existing residence.
With it´s enviable setting, the coastal path is literally on your doorstep with pleasant coastal walks to Holywood and Helens Bay, Royal North of Ireland Yacht Club and Royal Belfast Golf Club are also within close proximity.
Whilst the Cultra area is sought after for it´s maturity, tranquillity and coastal location, the area also enjoys excellent accessibility to Holywood town centre, Belfast and Bangor. There is easy access to the main Bangor/Belfast Road and the nearby Cultra Railway Halt also provides a regular service to both Belfast and Bangor. The George Best Belfast City Airport is within a 10 minute drive.
Prime waterfront site in the heart of the Cultra area
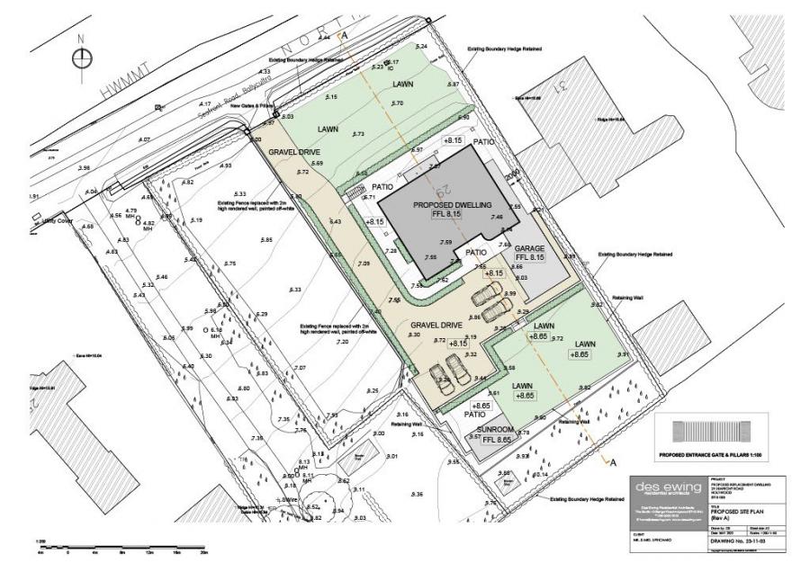
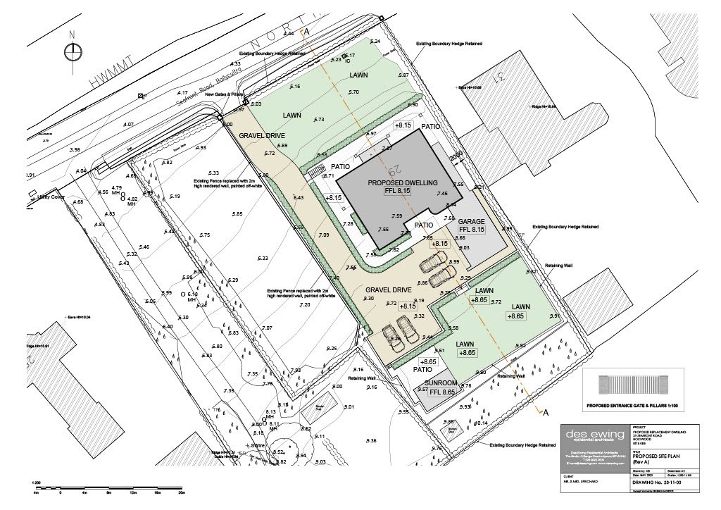
Site area extends to approximately 0.5 acre
Full planning consent for contemporary new residence designed by Des Ewing Architects
PLANNING REFERENCE LA06/2023/1960F- Full planning consent for a new residence of
4582 sq ft (excluding garage/plant room).
This property has full planning consent granted for a replacement dwelling.
The proposed new house is a magnificent contemporary residence designed by Des Ewing extending to 4582 sq ft (excluding garage/plant room).
There is also another house design for a smaller contemporary residence designed by Des Ewing extending to 3558 sq ft (excluding garage/plant room).
The sale represents a rare opportunity to acquire a ready to build, waterfront site in this absolutely prime location.
For those seeking to build a new home in Cultra, the package that this sale offers is quite unique :
One of the best coastal sites in North Down
An exceptionally well planned contemporary residence designed by award winning architect, Des Ewing.
Full planning consent granted ( potentially saving up to 2 / 3 years in the planning process )
All architects, planning and associated consultants fees paid up to this stage.
Whilst the site benefits from full planning consent for a replacement dwelling, there is also the option that a buyer may choose to renovate the existing residence.
With it´s enviable setting, the coastal path is literally on your doorstep with pleasant coastal walks to Holywood and Helens Bay, Royal North of Ireland Yacht Club and Royal Belfast Golf Club are also within close proximity.
Whilst the Cultra area is sought after for it´s maturity, tranquillity and coastal location, the area also enjoys excellent accessibility to Holywood town centre, Belfast and Bangor. There is easy access to the main Bangor/Belfast Road and the nearby Cultra Railway Halt also provides a regular service to both Belfast and Bangor. The George Best Belfast City Airport is within a 10 minute drive.
Prime waterfront site in the heart of the Cultra area
Site area extends to approximately 0.5 acre
Full planning consent for contemporary new residence designed by Des Ewing Architects
PLANNING REFERENCE LA06/2023/1960F- Full planning consent for a new residence of
4582 sq ft (excluding garage/plant room).
Broadband Speed Availability
Potential Speeds for 29 Seafront Road
Max Download
1800
Mbps
Max Upload
220
MbpsThe speeds indicated represent the maximum estimated fixed-line speeds as predicted by Ofcom. Please note that these are estimates, and actual service availability and speeds may differ.
Property Location
Mortgage Calculator
Contact Agent
Contact Simon Brien (Holywood)
Request More Information
Requesting Info about...
Eagleton, 29 Seafront Road, Holywood, County Down, BT18 0BB
By registering your interest, you acknowledge our Privacy Policy
By registering your interest, you acknowledge our Privacy Policy