5 Bed Detached House
Farm Hill, 41 Farmhill Road
Cultra, Holywood, BT18 0AD
asking price
£1,500,000
Key Features & Description
"Farm Hill" - one of the original Victorian residences in Cultra
Secluded and private site tucked in off Farmhill Road with mature gardens
Sea views from the first and second floor
Access available off Farmhill Lane
Many original features retained throughout
Drawing room with open fire and library area
Home office
Formal dining room
Kitchen with casual dining
Orangery with access to the private patio and gardens
Utility room and pantry
Play room/home office space
Downstairs cloakroom
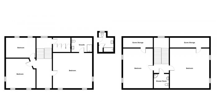
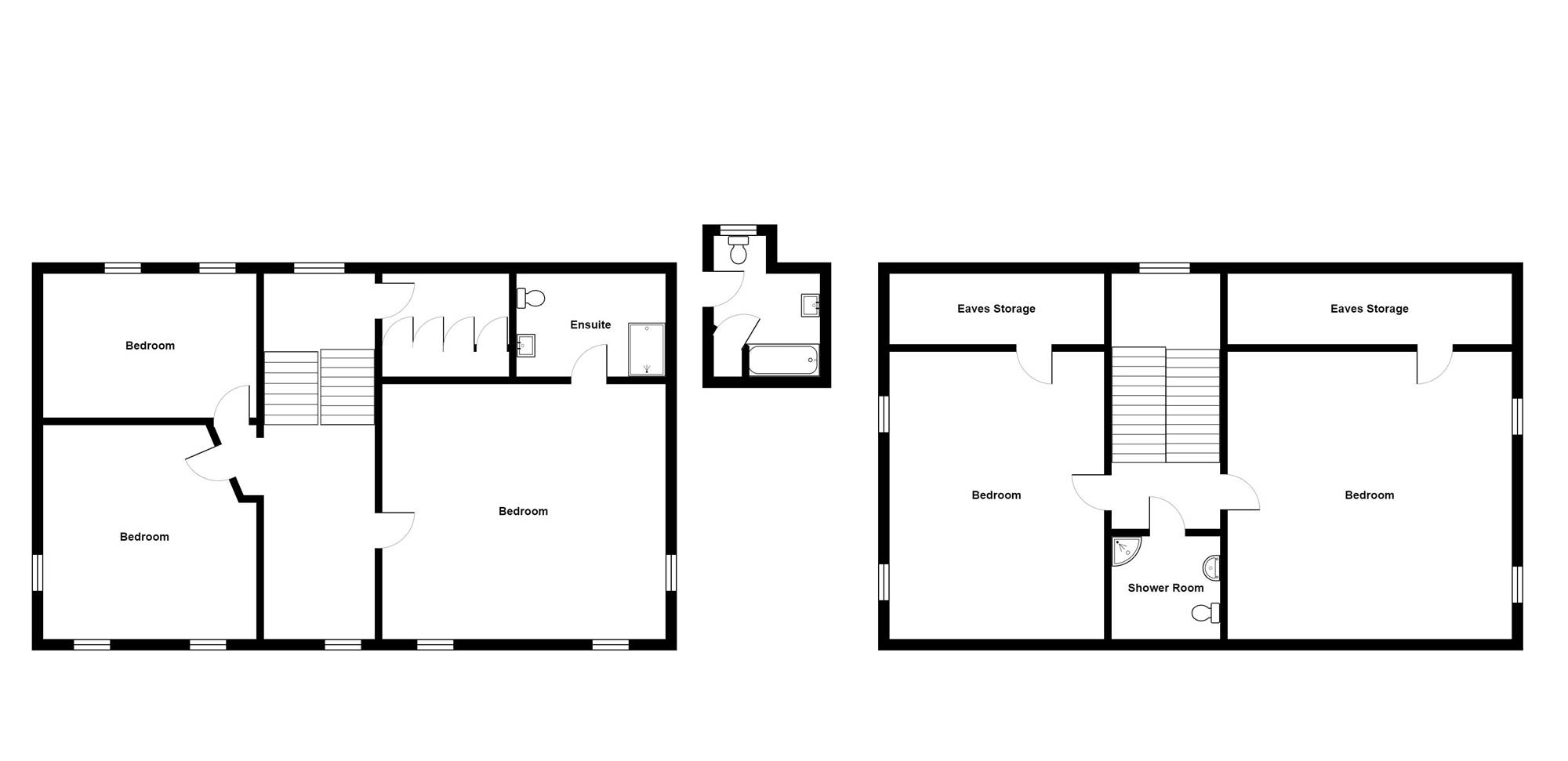
Five bedrooms
Principal bedroom with en suite shower room and sea views
Main bathroom
Shower room on second floor
Luggage room
Garage with potting shed
Gas central heating
Mature gardens surrounding the property offering ample privacy and space
Patio area with gated orchard to the rear
Alarm system installed
Grade B2 listed
Pedestrian gate allowing ease of access onto Farmhill Road to the beach
Convenient location close to Holywood, Belfast City Airport Belfast City Centre
A short walk to North Down coastal path and Marino train halt
Description
"Farm Hill" - Dating back to the early 1800s, is one of the original period houses in Cultra. Farm Hill is located in the heart of Cultra within a minutes" walk of the coastline and Royal North of Ireland Yacht Club. The property is within easy walking distance of Marino railway halt and Holywood town centre is only a short walk or drive away. For the commuter Belfast and Bangor are within 15 minutes" drive.
The property has been well maintained and offers a period home with all the original character and features of the Victorian era, together with all the comforts of modern day living. The accommodation comprises of an entrance hall, drawing room with library area and home office, formal dining room, kitchen with casual dining, utility room and pantry, orangery with access to the patio and gardens, large room over kitchen which can be used as a play room or home office. Upstairs there are five bedrooms, the bedrooms at the front of the house enjoy sea views, the principal bedroom also benefits from an en suite shower room, there is a bathroom on the first floor and a shower room on the second floor. Throughout the house the warmth and character are apparent; with attractive arched windows, panelled entrance doors, high corniced ceilings and period fireplaces.
Outside, there are mature gardens to both the front and the rear. The rear gardens enjoy considerable privacy and are south facing, benefitting from the afternoon, and evening sunlight. An attractive flagged patio area to the rear leads to an enclosed, secluded rear orchard with mature border shrub beds and hedging.
All in all, a period home with exceptional character in one of Northern Ireland's most desirable residential locations.
"Farm Hill" - Dating back to the early 1800s, is one of the original period houses in Cultra. Farm Hill is located in the heart of Cultra within a minutes" walk of the coastline and Royal North of Ireland Yacht Club. The property is within easy walking distance of Marino railway halt and Holywood town centre is only a short walk or drive away. For the commuter Belfast and Bangor are within 15 minutes" drive.
The property has been well maintained and offers a period home with all the original character and features of the Victorian era, together with all the comforts of modern day living. The accommodation comprises of an entrance hall, drawing room with library area and home office, formal dining room, kitchen with casual dining, utility room and pantry, orangery with access to the patio and gardens, large room over kitchen which can be used as a play room or home office. Upstairs there are five bedrooms, the bedrooms at the front of the house enjoy sea views, the principal bedroom also benefits from an en suite shower room, there is a bathroom on the first floor and a shower room on the second floor. Throughout the house the warmth and character are apparent; with attractive arched windows, panelled entrance doors, high corniced ceilings and period fireplaces.
Outside, there are mature gardens to both the front and the rear. The rear gardens enjoy considerable privacy and are south facing, benefitting from the afternoon, and evening sunlight. An attractive flagged patio area to the rear leads to an enclosed, secluded rear orchard with mature border shrub beds and hedging.
All in all, a period home with exceptional character in one of Northern Ireland's most desirable residential locations.
Rooms
Hardwood panelled entrance door.
ENTRANCE PORCH: 7' 10" X 5' 5" (2.39m X 1.65m)
Quarry tiled floor, inner hardwood glazed door to Reception Hall.
RECEPTION HALL: 11' 11" X 7' 10" (3.63m X 2.39m)
Corniced ceiling, ceiling rose. Staircase to First Floor.
CLOAKROOM: 8' 1" X 7' 2" (2.46m X 2.18m)
Low flush WC, pedestal wash hand basin.
DRAWING ROOM: 19' 7" X 16' 7" (5.97m X 5.05m)
At widest point. Marble fire surround with gas fire inset and slate hearth, bay window with working shutters, corniced ceiling, ceiling rose. Open to Library and glazed PVC door to Lean To Conservatory.
LIBRARY: 9' 8" X 7' 11" (2.95m X 2.41m)
Fitted bookshelves, window seat, access to study.
LEAN TO CONSERVATORY: 17' 6" X 9' 2" (5.33m X 2.79m)
Glazed PVC door to front. Arched doors to Potting Shed.
STUDY: 9' 3" X 7' 10" (2.82m X 2.39m)
REAR HALLWAY: 12' 7" X 11' 10" (3.84m X 3.61m)
Fitted storage cupboards, quarry tiled floor, glazed PVC door to rear, access to Dining Room and Kitchen.
DINING ROOM: 15' 10" X 14' 8" (4.83m X 4.47m)
At widest points. Half panelled walls with secret door to kitchen, bay window with working shutters. Corniced ceiling, ceiling rose.
KITCHEN WITH CASUAL DINING: 22' 11" X 18' 5" (6.98m X 5.61m)
At widest points. Kitchen fitted with an excellent range of high and low level cabinets, stainless steel sink unit with mixer taps, 4 ring gas hob, cream oil fired Aga, integrated oven and microwave, island unit with stainless steel sink unit, partly tiled walls.
UTILITY ROOM: 7' 5" X 5' 10" (2.26m X 1.78m)
High and low level units, stainless steel sink unit with mixer taps, plumbed for washing machine, space for tumble dryer, partly tiled walls.
PANTRY: 12' 1" X 4' 1" (3.68m X 1.24m)
Fitted shelving.
ORANGERIE: 15' 10" X 12' 8" (4.83m X 3.86m)
Double opening doors to rear patio, tiled floor.
HOME OFFICE: 18' 2" X 13' 8" (5.54m X 4.17m)
Velux windows with sea views, storage cupboard with shelving, eaves storage.
LANDING:
Attractive arched window.
BATHROOM: 7' 2" X 6' 9" (2.18m X 2.06m)
Low flush WC, wash hand basin, panelled bath with shower fitment, heated towel radiator, half panelled walls, storage cupboard with shelving.
LANDING: 12' 9" X 7' 10" (3.89m X 2.39m)
Window seat with sea views, corniced ceiling.
BEDROOM (1): 19' 2" X 17' 9" (5.84m X 5.41m)
Views across Belfast Lough, windows with working shutters, corniced ceiling, wall light wiring.
ENSUITE SHOWER ROOM: 10' 2" X 6' 10" (3.10m X 2.08m)
Low flush WC, pedestal wash hand basin, walk in wetroom with shower fitment, heated towel radiator, recessed lighting.
BEDROOM (2): 14' 10" X 14' 7" (4.52m X 4.44m)
Sea views across Belfast Lough, window seats and working shutters.
BEDROOM (3): 12' 5" X 10' 4" (3.78m X 3.15m)
At widest points. Fitted with an excellent range of wardrobes, window seats.
LANDING:
Attractive arched window, velux window.
LUGGAGE ROOM: 8' 8" X 7' 1" (2.64m X 2.16m)
BEDROOM (4): 19' 11" X 19' 6" (6.07m X 5.94m)
Velux window with sea views, eaves storage.
BEDROOM (5): 19' 11" X 14' 10" (6.07m X 4.52m)
Velux window with sea views, eaves storage.
SHOWER ROOM: 7' 7" X 7' 2" (2.31m X 2.18m)
Low flush WC, pedestal wash hand basin, corner shower, velux window with sea views.
GARAGE: 25' 0" X 20' 2" (7.62m X 6.15m)
At widest points. Remote roller shutter door, power and light. Door to potting shed.
POTTING SHED: 10' 8" X 10' 7" (3.25m X 3.23m)
Fitted units with stainless steel sink unit with mixer taps, access to lean to conservatory. Arched double opening doors to rear patio.
Broadband Speed Availability
Potential Speeds for 41 Farmhill Road
Max Download
1000
Mbps
Max Upload
220
MbpsThe speeds indicated represent the maximum estimated fixed-line speeds as predicted by Ofcom. Please note that these are estimates, and actual service availability and speeds may differ.
Property Location
Mortgage Calculator
Directions
Farmhill Road, Cultra.
Contact Agent
Contact Simon Brien (Holywood)
Request More Information
Requesting Info about...
Farm Hill, 41 Farmhill Road, Cultra, Holywood, BT18 0AD
By registering your interest, you acknowledge our Privacy Policy
By registering your interest, you acknowledge our Privacy Policy