Contact Agent
Contact Templeton Robinson (North Down)
Land (Multiple Dwelling)
38-40 Farmhill Road
Cultra, Holywood, BT18 0AD
offers over
£1,350,000
- Status Sale Agreed
- Property Type Land (Multiple Dwelling)
-
Stamp Duty
Higher amount applies when purchasing as buy to let or as an additional property£78,750 / £146,250*
Description
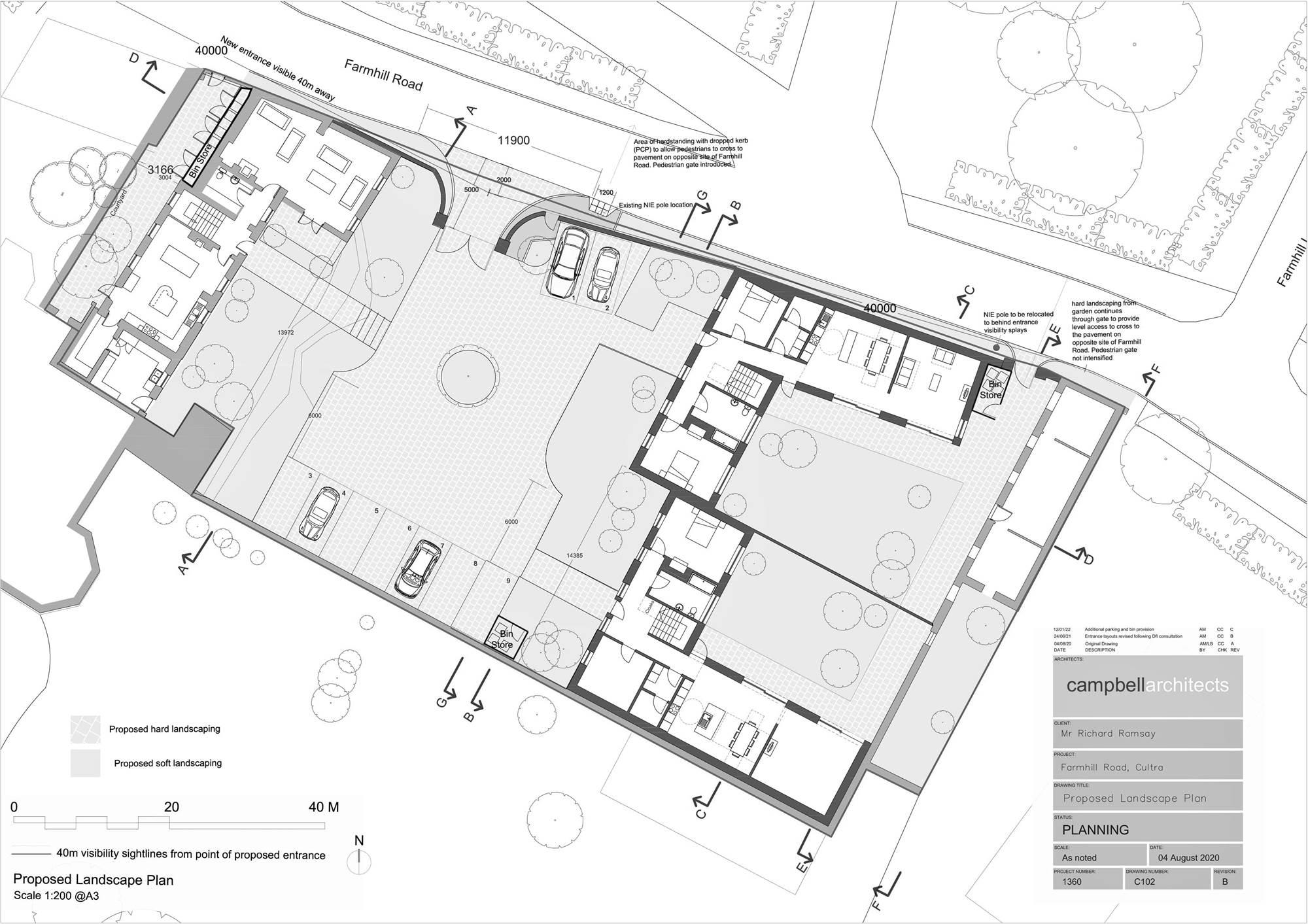
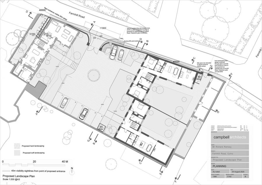
SITE WITH PLANNING FOR 3 FAMILY HOMES
Presented to the market with full planning permission, this exclusive site is situated in the heart of Cultra - one of Northern Ireland"s premier locations.
The plans have been meticulously designed to incorporate the remodelling of the existing house and cottage, whilst allowing for two new family homes. The new homes will range in size from circa 2000-2500 square feet.
Planning reference: LA06/2020/0775/F
For further details please contact Michael Young at
michaelyoung@templetonrobinson.com
Presented to the market with full planning permission, this exclusive site is situated in the heart of Cultra - one of Northern Ireland"s premier locations.
The plans have been meticulously designed to incorporate the remodelling of the existing house and cottage, whilst allowing for two new family homes. The new homes will range in size from circa 2000-2500 square feet.
Planning reference: LA06/2020/0775/F
For further details please contact Michael Young at
michaelyoung@templetonrobinson.com
Property Location
Mortgage Calculator
Directions
Left hand side of Farmhill Road when heading towards the sea.
Contact Agent
Contact Templeton Robinson (North Down)
Request More Information
Requesting Info about...
38-40 Farmhill Road, Cultra, Holywood, BT18 0AD
By registering your interest, you acknowledge our Privacy Policy
By registering your interest, you acknowledge our Privacy Policy