Contact Agent
Contact Templeton Robinson (North Down)
3 Bed Semi-Detached House
4 Richdale Drive
Cultra, Holywood, BT18 0AJ
offers over
£395,000
Key Features & Description
Extended red brick semi-detached home
Spacious lounge/dining room with original fireplace
Extended kitchen & ground floor WC
Three generous bedrooms & modern bathroom
Guest accommodation garden room
Gas-fired central heating & uPVC double glazing
Driveway with off-street parking
Low maintenance front & rear gardens
Excellent location near schools, shops, beach & transport links.
Description
This attractive red brick semi-detached home is perfectly located just a 2-minute walk to Marino station, 5 minutes to the beach, and 10 minutes to Holywood town centre with its shops, cafés, and amenities.
The property offers bright, well-proportioned accommodation including a spacious living/dining room with original fireplace, an extended fitted kitchen, and convenient downstairs WC. Upstairs are three good-sized bedrooms and a modern white bathroom suite. Further benefits include uPVC double glazing and gas-fired central heating.
Outside, enjoy easily maintained gardens, off-street parking, and a guest garden roomâideal for visitors or a home office. With top schools, coastal walks, Ballymenoch Park, and George Best City Airport all close by, this home is perfectly placed for family life and commuting to Belfast.
This attractive red brick semi-detached home is perfectly located just a 2-minute walk to Marino station, 5 minutes to the beach, and 10 minutes to Holywood town centre with its shops, cafés, and amenities.
The property offers bright, well-proportioned accommodation including a spacious living/dining room with original fireplace, an extended fitted kitchen, and convenient downstairs WC. Upstairs are three good-sized bedrooms and a modern white bathroom suite. Further benefits include uPVC double glazing and gas-fired central heating.
Outside, enjoy easily maintained gardens, off-street parking, and a guest garden roomâideal for visitors or a home office. With top schools, coastal walks, Ballymenoch Park, and George Best City Airport all close by, this home is perfectly placed for family life and commuting to Belfast.
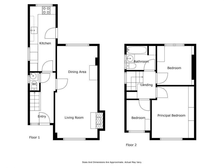
Rooms
Steps to:
ENTRANCE PORCH:
Wooden door with glazed panels.
ENTRANCE HALL:
Original wooden floor.
DOWNSTAIRS W.C.:
Low flush wc and wash hand basin with mixer tap.
LIVING/DINING AREA: 22' 8" X 10' 2" (6.90m X 3.10m)
Feature original wooden flooring, feature ornate fireplace. Outlook to front and rear.
KITCHEN: 16' 1" X 6' 3" (4.90m X 1.90m)
(at widest points). Excellent range of high and low level units, plumbed for fridge/freezer, plumbed for washer/dryer, plumbed for dishwasher, range style cooker with electric hob. Belfast sink unit with mixer taps and solid wooden worktops, outlook to side and rear. Feature radiator. Velux window. Access to rear.
LANDING:
Access to roofspace, floored, power and light.
BEDROOM (1): 12' 10" X 9' 2" (3.90m X 2.80m)
(at widest points). Original floor, excellent storage space. Outlook to front.
BEDROOM (2): 10' 6" X 8' 6" (3.20m X 2.60m)
Laminate wood effect floor. Outlook to rear.
BEDROOM (3): 7' 10" X 6' 3" (2.40m X 1.90m)
Original wooden floor. Outlook to front.
FAMILY BATHROOM:
Low flush wc, pedestal wash hand basin with gold taps. Panelled bath with overhead shower attachment. Heated towel radiator, storage cupboard.
Neat garden to front with shrubs and stones. Paved driveway with space for 1+ vehicles.
Private rear garden in paving.
GARDEN ROOM: 18' 4" X 6' 3" (5.60m X 1.90m)
"Laurel Cottage". uPVC front door. Ceramic tiled floor,. Sink unit, space for fold out bed.
WET ROOM:
Low flush wc, wash hand basin with gold mixer taps, shower unit. Access to side. Storage in eaves.
Broadband Speed Availability
Potential Speeds for 4 Richdale Drive
Max Download
1800
Mbps
Max Upload
220
MbpsThe speeds indicated represent the maximum estimated fixed-line speeds as predicted by Ofcom. Please note that these are estimates, and actual service availability and speeds may differ.
Property Location
Mortgage Calculator
Directions
From Holywood towards Bangor, turn left onto Old Quay Road (just before the Marino garage). Richdale Drive is the second left. No. 4 is on the left in the cul-de-sac.
Contact Agent
Contact Templeton Robinson (North Down)
Request More Information
Requesting Info about...
4 Richdale Drive, Cultra, Holywood, BT18 0AJ
By registering your interest, you acknowledge our Privacy Policy
By registering your interest, you acknowledge our Privacy Policy