Contact Agent

Contact Lynn and Brewster

Contact Lynn and Brewster

Site

120M North West, Of Craigs Mission Hall, Duneoin Road

Cullybackey

offers around £75,000
  • Status For Sale
  • Property Type Site
  • Stamp Duty
    Higher amount applies when purchasing as buy to let or as an additional property
    £0 / £3,750*
  • Typical Mortgage
    Click price to use our mortgage calculator

Description

Site 1

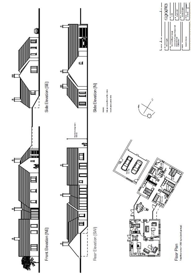
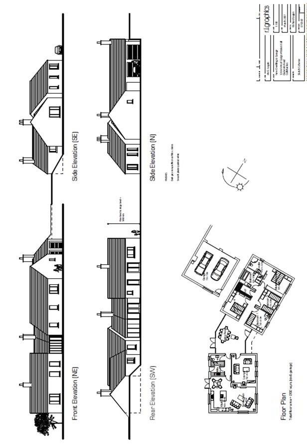
Extending to approximately 0.62 acres (0.25 Ha). The site was initially approved under an outline application, ref no. G/2004/001/O, dated 7th April 2004 and subsequently approved under a Reserved Matters application on the 6th July 2007, ref No. G/2007/3014/RM for the Erection of New Bungalow and Double Garage. Most recently, the site has been approved under a Certificate of Lawfulness of Proposed Use or Development, Application no. LA02/2025/0785/CLOPUD, dated 14th October 2025. The proposed plans are for a single storey 4 bedroom dwelling extending to approximately 2,174 sq ft (202sqm) excluding garage.

Site 2 also available 

All maps, layouts, plans & outlined areas are for identification purposes only

 

Land & Property Services Intellectual Property is protected by Crown Copyright and is reproduced with the permission of Land & Property   Services under delegated authority from the Controller of Her Majesty’s Stationery Office,

© Crown Copyright and database right (Licence No.2858 & 2015)

 

For further information contact; Charlie Lynn,  07771958262

 

 

Property Location

Show Map

Mortgage Calculator

Disclaimer: The following calculations act as a guide only, and are based on a typical repayment mortgage model. Financial decisions should not be made based on these calculations and accuracy is not guaranteed. Always seek professional advice before making any financial decisions.

Contact Agent

Contact Lynn and Brewster

Contact Lynn and Brewster

Request More Information
Requesting Info about...
120M North West, Of Craigs Mission Hall, Duneoin Road, Cullybackey 120M North West, Of Craigs Mission Hall, Duneoin Road, Cullybackey

By registering your interest, you acknowledge our Privacy Policy
Ask Holmes
Ask Holmes
Let's find your next home

Are you sure you want to reset the chat?

Checking API...