Contact Agent
Contact Gerard McClinton Estate Agent
6 Bed Detached Bungalow
17 Ballymote Road
Glenavy, Crumlin, BT29 4NS
offers in the region of
£410,000
Key Features & Description
Substantial approx 2750 sq ft Detached Home
Set in Approx 1 Acre of Well Maintained Gardens
6 Bedrooms
2 En Suites
3 Reception Rooms
Family Bathroom
Dining Kitchen with Solid Maple Poggenpohl Kitchen
Separate Dining Area
Detached Double Garage
Oil Central Heating & Double Glazing
Description
Gerard McClinton Estate Agent is pleased to present 17 Ballymote Road for sale. This spacious detached residence boasts approximately 2750 square feet and is situated on a prominent, well-established site of nearly 1 acre featuring beautifully maintained gardens.
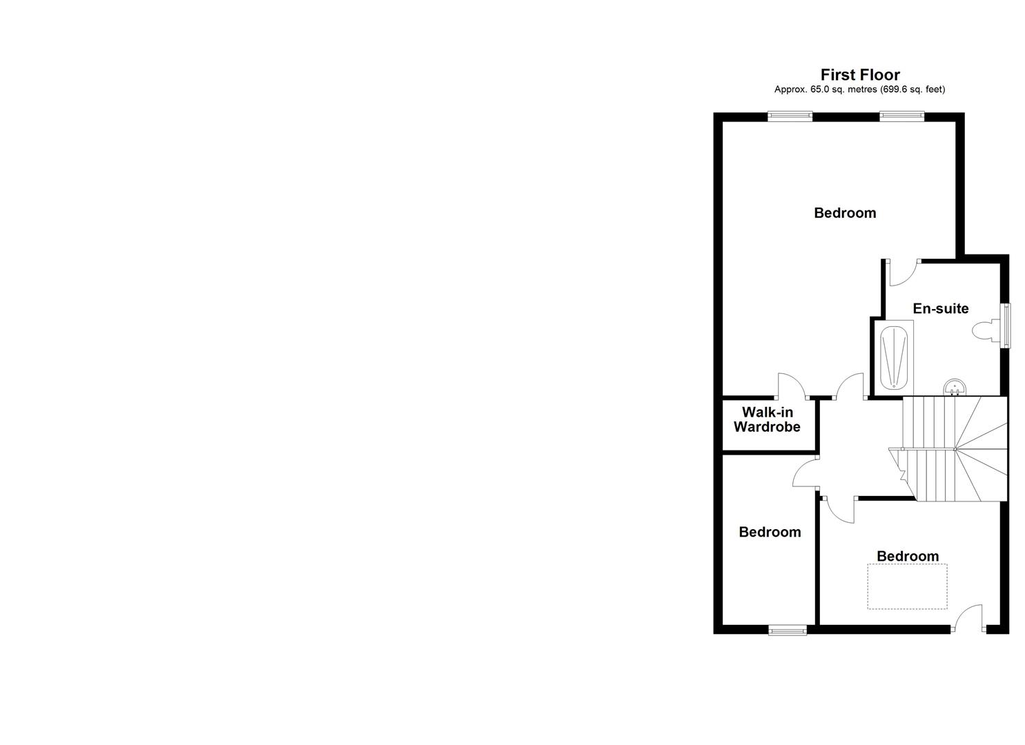
This exceptional family home provides ample space and flexible living arrangements, including 6 bedrooms, 3 reception rooms, 2 en suites, 1 family bathroom, a dining kitchen, and a separate dining area. Starting with the bedrooms, the master suite is remarkable, located on the first floor with unobstructed views of the lough, complemented by a modern en suite shower room and a walk-in wardrobe. A second master suite also includes an en suite shower room.
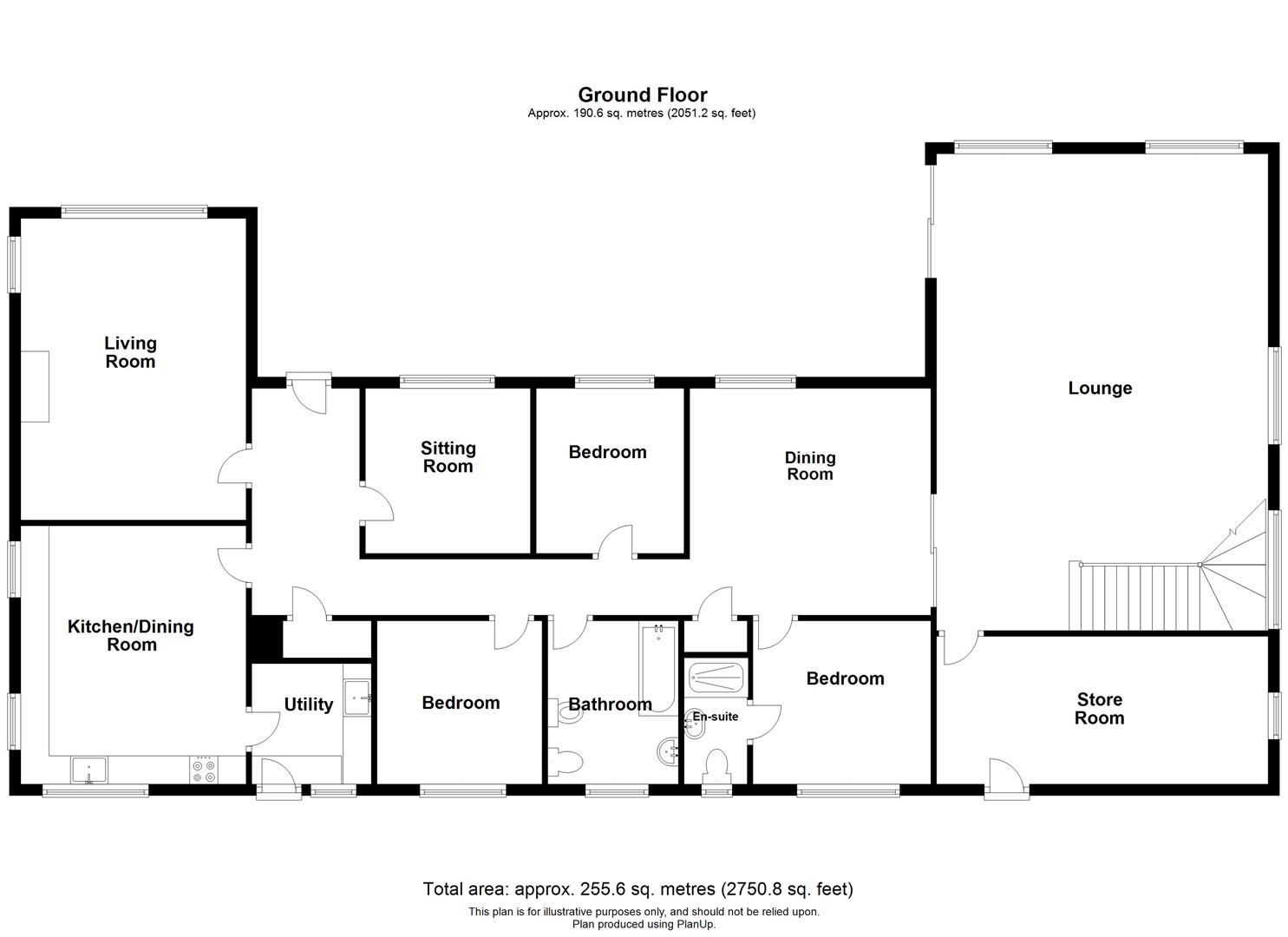
The remaining four bedrooms offer generous accommodations. The three reception rooms provide comfortable living spaces, including a spacious family room with triple aspect glazing and underfloor heating, a second reception room with dual aspect glazing and a striking open fire with a limestone mantle, and a cozy snug room. The kitchen is generously sized and features a high-quality solid maple 'Poggenpohl' design with integrated appliances, ample dining space, and access to a separate utility room equipped with a 'Belfast' sink.
Additionally, there is a separate dining area, and the family bathroom includes a four-piece suite. The loft space is accessible via a pull-down ladder, offering a floored area with abundant storage. Outside, the property is approached via a sweeping driveway and is set within approximately 1 acre of mature, well-maintained gardens. A detached double garage with an electric roller door is equipped with its own lighting and power, along with roof space storage.
Under the terms and conditions of the Estate Agency Act we are obliged to inform you that this property belongs to a relative of a member of staff at Gerard McClinton Estate Agent Ltd.
Gerard McClinton Estate Agent is pleased to present 17 Ballymote Road for sale. This spacious detached residence boasts approximately 2750 square feet and is situated on a prominent, well-established site of nearly 1 acre featuring beautifully maintained gardens.
This exceptional family home provides ample space and flexible living arrangements, including 6 bedrooms, 3 reception rooms, 2 en suites, 1 family bathroom, a dining kitchen, and a separate dining area. Starting with the bedrooms, the master suite is remarkable, located on the first floor with unobstructed views of the lough, complemented by a modern en suite shower room and a walk-in wardrobe. A second master suite also includes an en suite shower room.
The remaining four bedrooms offer generous accommodations. The three reception rooms provide comfortable living spaces, including a spacious family room with triple aspect glazing and underfloor heating, a second reception room with dual aspect glazing and a striking open fire with a limestone mantle, and a cozy snug room. The kitchen is generously sized and features a high-quality solid maple 'Poggenpohl' design with integrated appliances, ample dining space, and access to a separate utility room equipped with a 'Belfast' sink.
Additionally, there is a separate dining area, and the family bathroom includes a four-piece suite. The loft space is accessible via a pull-down ladder, offering a floored area with abundant storage. Outside, the property is approached via a sweeping driveway and is set within approximately 1 acre of mature, well-maintained gardens. A detached double garage with an electric roller door is equipped with its own lighting and power, along with roof space storage.
Under the terms and conditions of the Estate Agency Act we are obliged to inform you that this property belongs to a relative of a member of staff at Gerard McClinton Estate Agent Ltd.
Rooms
Entrance Hall
Mahogany effect uPVC front door with double glazed insets and double glazed side panels. High quality Amtico flooring, 3 radiators, 2 storage cupboards
Family Room 16'8" X 14'9" (5.10m X 4.50m)
uPVC double glazed window to front and side, open fire with limestone mantle, 2 x radiators, carpet
Sitting Room 3 / Snug 9'8" X 9'8" (2.95m X 2.95m)
uPVC double glazed window to front, radiator
Kitchen Dining Room 14'11" X 13'1" (4.57m X 3.99m)
Solid Maple "Poggenpohl" fitted kitchen with Corian worktop, range of high and low level units with a 1 1/2 bowl single drainer sink unit with mixer tap and drainer, built in oven, 4 ring hob, space for fridge freezer, dual aspect windows, tiled floor, radiator, uPVC double glazed windows to side and rear, door to utility room
Utility Room 7'10" X 6'10" (2.41m X 2.10m)
Fitted range of high and low level units, "Belfast" Sink with mixer tap, plumbed for washing machine, part tiled walls, tiled floor, radiator, uPVC double glazed door to rear garden
Bedroom 3 10'5" X 9'8" (3.18m X 2.97m)
uPVC double glazed window, radiator
Bedroom 4 9'8" X 8'7" (2.95m X 2.64m)
uPVC double glazed window, wood flooring, radiator
Bathroom 10'5" X 7'8" (3.18m X 2.36m)
uPVC double glazed window to rear, panelled bath with mixer tap and shower attachment, pedestal wash hand basin, low flush w.c, bidet, part tiled walls, vinyl flooring, radiator
Bedroom 2 10'5" X 9'8" (3.18m X 2.97m)
uPVC double glazed window, radiator, door to en-suite
En Suite Shower Room 7'4" X 3'8" (2.26m X 1.14m)
Low flush wc, shower cubicle with "Mira Sport" electric shower unit and sliding door, radiator, part tiled walls
Family Living Room 27'9 X 19'3 (8.46m X 5.87m)
Triple aspect windows, part wood flooring, wall lights, patio doors to front.
Boiler / Storage Room 19'5" X 8'7" (5.92m X 2.64m)
uPVC double glazed window and door to gardens, oil fired central heating boiler and storage tank
Master Bedroom 20'0" X 16'11" (6.10m X 5.18m)
uPVC double glazed window with uninterrupted views towards the lough, walk in dressing storage, radiator, door to en suite
Master En Suite 9'6" X 9'2" (2.90m X 2.80m)
Low flush wc, wall mounted wash hand basin with mixer tap, walk in shower cubicle, feature floor to ceiling radiator, part tiled walls, tiled floor
Bedroom 5 12'4" X 9'2" (3.76m X 2.80m)
Feature skylight window and glazed door to "Juliette" balcony, radiator
Bedroom 6 12'7" X 6'8" (3.84m X 2.04m)
uPVC double glazed window, radiator
Outside
Sweeping driveway leading to the property and its large double garage. Parking space for multiple cars, extensive front side and rear gardens laid to lawn with mature trees, shrubbery and hedgerows. To the rear is a raised decked area with seating area and summer house.
Double Garage 19'4" X 19'4" (5.90m X 5.90m)
Electric roller door, light, power and storage into roofspace, uPVC double glazed window and pedestrian door.
Video
Broadband Speed Availability
Potential Speeds for 17 Ballymote Road
Max Download
10000
Mbps
Max Upload
10000
MbpsThe speeds indicated represent the maximum estimated fixed-line speeds as predicted by Ofcom. Please note that these are estimates, and actual service availability and speeds may differ.
Property Location
Mortgage Calculator
Contact Agent
Contact Gerard McClinton Estate Agent
Request More Information
Requesting Info about...
17 Ballymote Road, Glenavy, Crumlin, BT29 4NS
By registering your interest, you acknowledge our Privacy Policy
By registering your interest, you acknowledge our Privacy Policy