Contact Agent
Contact Templeton Robinson (Lisburn)
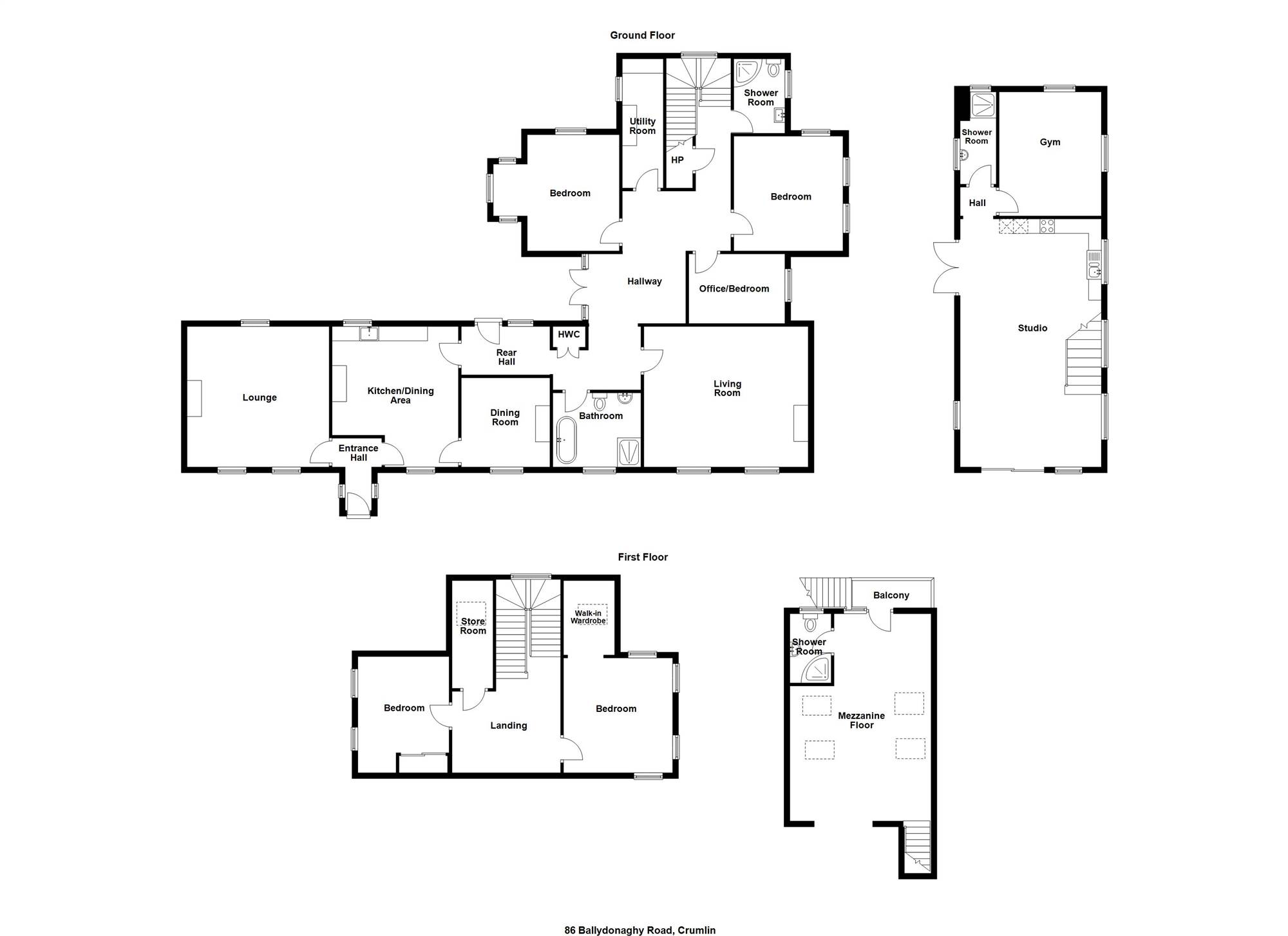
5 Bed Detached with Annex
Rose Cottage, 86 Ballydonaghy Road
Crumlin, BT29 4ES
offers around
£485,000
Key Features & Description
Attractive Detached Home, "Rose Cottage", Set On A Private And Mature Site At 86 Ballydonaghy Road, Crumlin
Extending To Approximately 1.3 Acres including Mature Beautifully Maintained Gardens And Rear Paddock With A High Degree of Privacy
Flexible Accommodation With Potential For Up To Five Bedrooms And Four Reception Rooms
Ideal For Modern Family Living Or Multi-Generational Use
New Detached Studio Annex Providing Excellent Useful Alternative Versatile Space
Spacious And Adaptable Ground Floor Layout With A Range Of Reception Areas And Built In Storage
Bright Family Room With Feature Vaulted Ceiling And Wood Burning Stove
Additional Lounge And Dining Room Overlooking The Gardens
Country Style Kitchen With Dining/Breakfast Area And Separate Utility Room
Bedrooms Arranged Over Both Floors Offering Excellent Flexibility For Changing Needs With Two Spacious Family Bathrooms And Modern White Suites
Principal Bedroom With Spacious Walk In Wardrobe Area
Private Driveway With Ample Parking For Multiple Vehicles Leading To Detached Garage
Extensive Gardens Laid In Lawns With Mature Trees, Shrubs And Open Green Space
Private Semi-Rural Setting While Remaining Convenient To Crumlin, Lisburn And Belfast
Oil Fired Central Heating And Double Glazing Throughout
Rare Opportunity To Acquire A Highly Versatile Home In A Sought-After Location
Early Viewing Strongly Recommended
Description
Introducing "Rose Cottage", 86 Ballydonaghy Road, Crumlin. A charming and deceptively spacious detached home set on approximately 1.3 acre mature, private site and gardens. This unique property offers exceptional flexibility, ideal for modern family living or multi-generational use.
The main residence provides a versatile layout with the potential for up to five bedrooms and four reception rooms, allowing the accommodation to be tailored to individual needs. The ground floor is centred around bright, comfortable living spaces, perfect for both everyday living and entertaining, alongside a well-appointed kitchen and additional rooms that can serve as bedrooms, offices, or reception areas. Upstairs, further bedrooms provide ample accommodation, including a generous principal room.
This house is brimming full of character with the main cottage featuring on the 1833 map of the area, and retains its stone walls and original ceilings.
A key feature of the property is the newly built detached studio annex, set apart from the main house. This superb addition offers excellent additional versatile space,significantly enhancing the overall appeal and adaptability of the home.
Externally, the property is approached by a private driveway with ample parking. The gardens are beautifully maintained with an array of mature trees, shrubs, and open lawn areas offering privacy, and vegetable garden area and paddock at the rear provides a country setting suitable for animals or equestrian uses.
Combining space, versatility and a countryside location, Rose Cottage presents a rare opportunity to acquire a home that can adapt to a variety of lifestyle needs. Early viewing is highly recommended.
Introducing "Rose Cottage", 86 Ballydonaghy Road, Crumlin. A charming and deceptively spacious detached home set on approximately 1.3 acre mature, private site and gardens. This unique property offers exceptional flexibility, ideal for modern family living or multi-generational use.
The main residence provides a versatile layout with the potential for up to five bedrooms and four reception rooms, allowing the accommodation to be tailored to individual needs. The ground floor is centred around bright, comfortable living spaces, perfect for both everyday living and entertaining, alongside a well-appointed kitchen and additional rooms that can serve as bedrooms, offices, or reception areas. Upstairs, further bedrooms provide ample accommodation, including a generous principal room.
This house is brimming full of character with the main cottage featuring on the 1833 map of the area, and retains its stone walls and original ceilings.
A key feature of the property is the newly built detached studio annex, set apart from the main house. This superb addition offers excellent additional versatile space,significantly enhancing the overall appeal and adaptability of the home.
Externally, the property is approached by a private driveway with ample parking. The gardens are beautifully maintained with an array of mature trees, shrubs, and open lawn areas offering privacy, and vegetable garden area and paddock at the rear provides a country setting suitable for animals or equestrian uses.
Combining space, versatility and a countryside location, Rose Cottage presents a rare opportunity to acquire a home that can adapt to a variety of lifestyle needs. Early viewing is highly recommended.
Rooms
Front garden with mature shrubs and plantings, tarmac driveway with off-street parking to front, wooden double gate leading to rear courtyard/driveway area, off-street parking for several cars leading to detached garage, patio walkway leading to main entrance with feature stone wall surrounding the property.
Hardwood stable style front door with glass inset leading to...
RECEPTION HALL:
Quarry tiled floor.
LOUNGE: 16' 2" X 16' 0" (4.93m X 4.88m)
At widest points, dual aspect to front and rear, pine tongue and groove ceiling, feature fireplace with carved wooden mantelpiece and surround, cast iron inset with further tiled inset and slate hearth.
KITCHEN / DINER: 16' 0" X 14' 4" (4.88m X 4.37m)
At widest points. Country style kitchen with range of solid high and low level units, laminate effect worktops, ceramic cooker with built in extractor fan and tiled splash back, quarry tiled floor, space for fridge freezer, space for dish washer, Belfast sink with chrome taps, space for Aga/range cooker, exposed brick recess with wooden sleeper mantelpiece, space for casual dining, pine tongue and groove ceiling, dual aspect to front and rear, built in wine rack.
DINING ROOM: 10' 2" X 10' 1" (3.10m X 3.07m)
At widest points. outlook to front. Solid oak wooden flooring, pine tongue and groove ceiling, cast iron fireplace and surround with tiled inset and slate hearth, built in book shelving.
REAR HALLWAY:
Substantial rear hallway leading to potential seating area with solid wooden double doors leading to rear patio with high vaulted double glazed ceiling, access to hotpress.
LANDING:
Second hotpress/storage room.
UTILITY ROOM: 14' 8" X 5' 0" (4.47m X 1.52m)
At widest points. Range of high and low level units, laminate effect worktops, chequered tiled floor, space for wine cooler, plumbed for washing machine, plumbed for tumble dryer, pine tongue and groove ceiling, picture window overlooking garden.
FAMILY BATHROOM:
White suite comprising low flush WC, pedestal wash hand basin with chrome taps and tiled splashback, tiled floor, space for free standing bath with chrome tap, corner shower unit with glass sliding door and telephone attachment, chrome heated towel rail, frosted window, pine tongue and groove ceiling.
LIVING ROOM: 18' 8" X 16' 0" (5.69m X 4.88m)
At widest points. High vaulted ceiling, exposed timber beams, pine tongue and groove ceiling, range of built in book storage, wood burner with slate hearth.
OFFICE/BEDROOM 5: 10' 11" X 7' 0" (3.33m X 2.13m)
At widest points. Solid oak wooden flooring, built in shelving, picture window with outlook to driveway, high vaulted pine tongue and groove ceiling, double glazed wall panels.
SHOWER ROOM:
White suite comprising low flush WC, pedestal wash hand basin with chrome taps, corner shower with fully tiled shower enclosure, telephone attachment, part tiled walls, slate tiled floor, feature stainglass window with lead detail and stainglass inset, pine tongue and groove ceiling.
BEDROOM (2): 13' 1" X 12' 5" (3.99m X 3.78m)
Dual aspect to driveway and rear garden, pine tongue and groove ceiling, low voltage recessed spotlights.
BEDROOM (3): 14' 4" X 13' 3" (4.37m X 4.04m)
At widest points. Dual aspect windows to rear garden and side, square bay window, feature arch shaped windows into bay, pine tongue and groove ceiling, low voltage recessed spotlights.
LANDING:
High vaulted pine tongue and groove ceiling, exposed timber beams, walk in wardrobe/storage area, feature full length picture window.
BEDROOM (1): 13' 3" X 12' 5" (4.04m X 3.78m)
At widest points. Exposed and treated steel beams, feature arched window, feature low level windows with shutters, low voltage recessed spotlighting, access to walk in wardrobe with range of built in shelving and storage.
BEDROOM (4): 13' 3" X 10' 4" (4.04m X 3.15m)
At widest points. Arched windows overlooking rear garden, high vaulted ceiling with pine tongue and groove finish, low voltage recessed spotlighting, built in slide robes.
27' 7" X 16' 1" (8.41m X 4.90m)
Aluminium double glazed front door.
Solid concrete floor, laminate effect worktop, stainless steel single drainer sink unit with chrome mixer tap, plumbed for washing machine, further aluminium double glazed sliding door leading to front, picture window.
REAR HALLWAY:
GYM AREA: 14' 1" X 11' 7" (4.29m X 3.53m)
At widest points, dual aspect windows, low voltage recessed spotlighting.
SHOWER ROOM:
White suite comprising wash hand basin with chrome mixer tap and built in vanity unit, corner shower unit with glass sliding door, shower with thermostatic control valve, telephone attachment and rainfall headset, fully tiled shower enclosure.
23' 7" X 16' 1" (7.19m X 4.90m)
At widest points. Vaulted ceiling, Velux windows, currently used as art studio, ideal for home office use subject to the usual consents.
SHOWER ROOM:
White suite comprising low flush WC with push button, pedestal wash hand basin with chrome mixer tap and built in vanity unit, corner shower with glass bi folding door, shower with chrome thermostaic control valve, telephone attachment, rainfall headset, fully tiled shower enclosure, picture window, low voltage recessed spotlights, Aluminium double glazed access door to rear with access to stairwell to ground floor level, access to oil tank and oil boiler
REAR:
Extensive enclosed tarmac area with ample off-street parking.
DETACHED GARAGE:
Roller shutter.
Site extending circa 1.3 acre with mature surrounding pathways, shrubs and trees, garden laid in lawns, polytunnel and vegetable garden area, extensive land/paddock to rear with private outlook and views across rolling countryside.
Broadband Speed Availability
Potential Speeds for 86 Ballydonaghy Road
Max Download
1800
Mbps
Max Upload
300
MbpsThe speeds indicated represent the maximum estimated fixed-line speeds as predicted by Ofcom. Please note that these are estimates, and actual service availability and speeds may differ.
Property Location
Mortgage Calculator
Directions
Ballydonaghy Road is located between the Moira Road and Dundrod Road, Crumlin.
Contact Agent
Contact Templeton Robinson (Lisburn)
Request More Information
Requesting Info about...
Rose Cottage, 86 Ballydonaghy Road, Crumlin, BT29 4ES
By registering your interest, you acknowledge our Privacy Policy
By registering your interest, you acknowledge our Privacy Policy