Contact Agent

Contact Ulster Property Sales (UPS) Ballynahinch
1 Bed Detached House
Rock Cottage, 45 Manse Road
Crossgar, BT30 9LY
offers around
£425,000

Key Features & Description
Former Equine Stud Circa 27 acres
One Bedroom
Two Reception Rooms
Bathroom
Stabling And Stores Surrounding Courtyard
Two Former Petrol Pumps
Agricultural Lands Laid Down To Permanent Pasture
Cottage
Lands enjoy good Frontage To The Manse,and Carrickmannon road
An Opportunity To Purchase A Farm Or Extend An Existing Holding
Description
We are pleased to offer this former equine stud extending to circa 27 acres with cottage, range of
stabling, stores and lyin shed.
The residence is in need of extensive renovation and is set back from the county road with two former
petrol pumps at the roadside.
The stabling and stores are clustered around the concrete courtyard and an enclosed concrete yard
providing an ideal opportunity for those with equestrian interests to re-commission the facilities.
The agricultural lands are contained in three blocks and are currently all laid down to permanent pasture and are thought suitable for grazing, cutting and/or arable purposes.
The farm provides an opportunity for those wishing to purchase a farm as a permanent home or extend their existing holding.
We are pleased to offer this former equine stud extending to circa 27 acres with cottage, range of
stabling, stores and lyin shed.
The residence is in need of extensive renovation and is set back from the county road with two former
petrol pumps at the roadside.
The stabling and stores are clustered around the concrete courtyard and an enclosed concrete yard
providing an ideal opportunity for those with equestrian interests to re-commission the facilities.
The agricultural lands are contained in three blocks and are currently all laid down to permanent pasture and are thought suitable for grazing, cutting and/or arable purposes.
The farm provides an opportunity for those wishing to purchase a farm as a permanent home or extend their existing holding.
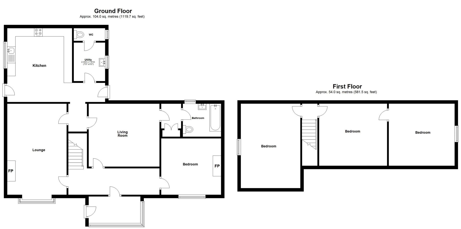
Rooms
Entrance Porch
Entrance Hall
Bedroom 1 11'10" X 11'10" (3.63m X 3.63m)
Tiled fireplace
Living Room 13'7" X 11'11" (4.14m X 3.63m)
Tiled fireplace
Bathroom 7'6" X 6'1" (2.29m X 1.85m)
White suite comprising, panelled bath with Redring Plus 85 electric shower unit over; pedestal wash hand basin; low flush wc.
Hotpress
Copper cylinder with Willis type immersion heater.
Rear Hall
Built-in cloak cupboard.
Sitting Room 18'1" X 11'11" (5.51m X 3.63m)
Tiled fireplace
Kitchen 14'9" X 13'0 (4.50m X 3.96m)
Range of laminate high and low level cupboards and drawers with double drainer stainless steel sink unit with mixer taps; formica worktops; double electric oven; ceramic hob with extractor unit over; space for fridge/freezer; tiled floor; part tiled walls; fluorescent lighting; door to rear yard.
Cloakroom 10'2 X 5'11 (3.10m X 1.80m)
Low flush wc; tiled floor; built-in cupboard and shelves.
Outside
Concrete courtyard; oil storage tank; oil fired boiler.
Open Fronted Garage 19'6" X 11'3" (5.94m X 3.43m)
Open Fronted Garage 20'7" X 7'7" (6.27m X 2.31m)
Range of 10 stables
Range of 3 stores
Rear yard
3 Bay hay shed 44'8" X 24'0" (13.61m X 7.32m)
Sliding doors; gravel floor; light and power points; water trough
Range of 5 Stables
Tack Room
Garden
Garden to front of property.
Former Petrol Pumps
Agricultural lands
The agricultural lands are all in permanent pasture and are contained in three blocks. The lands are divided into convenient sized fields and enjoy good frontage to the Manse, Carrickmannon and Thornyhill roads with the majority having access to the country roads or farmyard. The lands appear to be in good heart and are thought suitable for cutting, grazing and/ or cropping.
Broadband Speed Availability
Potential Speeds for 45 Manse Road
Max Download
1800
Mbps
Max Upload
220
MbpsThe speeds indicated represent the maximum estimated fixed-line speeds as predicted by Ofcom. Please note that these are estimates, and actual service availability and speeds may differ.
Property Location

Mortgage Calculator
Contact Agent

Contact Ulster Property Sales (UPS) Ballynahinch
Request More Information
Requesting Info about...
Rock Cottage, 45 Manse Road, Crossgar, BT30 9LY
By registering your interest, you acknowledge our Privacy Policy

By registering your interest, you acknowledge our Privacy Policy