Retail
4 High Street
Lurgan, Craigavon, BT66 8AW
pcm
£583
- Status For Rent
- Property Type Retail
- Furnished Unfurnished
Key Features & Description
Office Space in the Heart of Lurgan
Approx 1330 sq ft over 3 floors
Positioned on Lurgan's main high street
Ample parking in the immediate vacinity
Lease terms negotiable
Description
DESCRIPTION
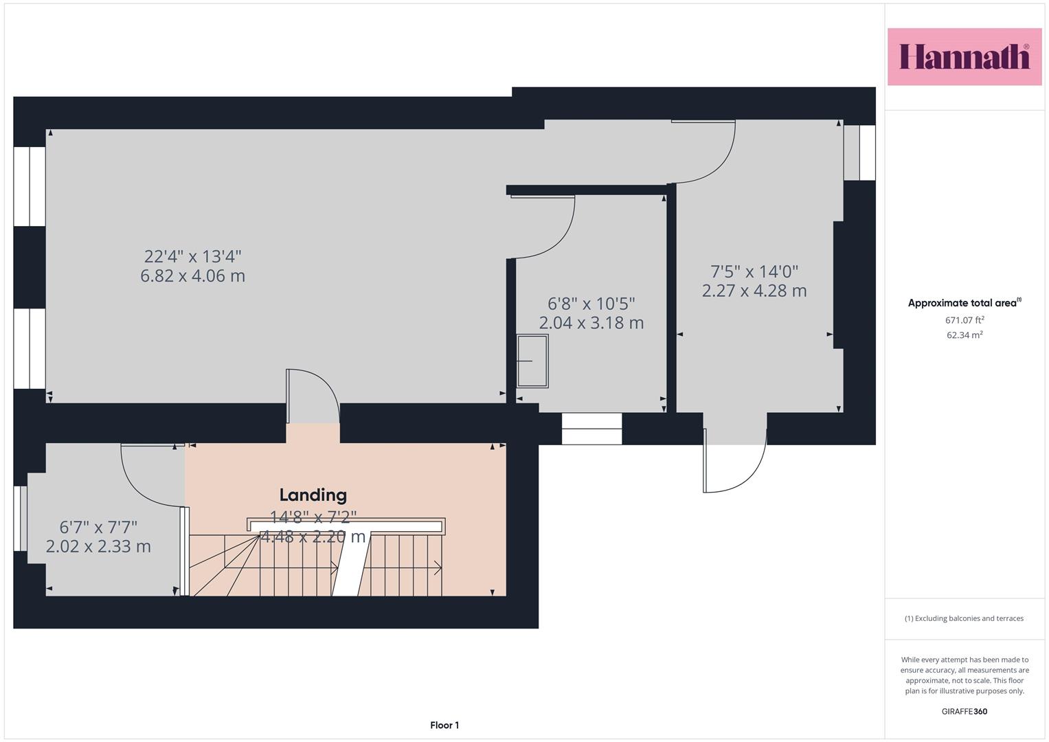
The property comprises a centrally positioned, three-storey premises comprised of ground floor entrance, reception area and two W.C's, leading to expansive office accommodation spanning the first and second floors.
The first floor also offers an open central office with further, smaller meeting rooms and a kitchen.
The second boasts a further larger office and separate office.
The internal finish is made up of carpeted flooring, plastered and painted walls, fluorescent strip lighting, double glazed windows and Economy 7 heating.
LOCATION
The property is located on High Street, occupying a prominent location in Lurgan Town Centre. High Street is Lurgan“s prime retailing pitch with a number of retail outlets in the immediate vicinity. The area enjoys high levels of passing pedestrian and vehicular traffic along with free car parking spaces available at the front of the property.
Lurgan is located approx 25 miles south west of Belfast and is easily accessible via the M1 Motorway.
RATES
Interested parties should make their own enquiries with Land & Property Services about rates and potential discounts.
VAT
All prices quoted are exclusive of VAT.
VIEWING ARRANGEMENTS
By appointment only, for further information or to arrange a viewing please contact Hannath estate agents
Tel: 02838399911
Email. info@hannath.com
DESCRIPTION
The property comprises a centrally positioned, three-storey premises comprised of ground floor entrance, reception area and two W.C's, leading to expansive office accommodation spanning the first and second floors.
The first floor also offers an open central office with further, smaller meeting rooms and a kitchen.
The second boasts a further larger office and separate office.
The internal finish is made up of carpeted flooring, plastered and painted walls, fluorescent strip lighting, double glazed windows and Economy 7 heating.
LOCATION
The property is located on High Street, occupying a prominent location in Lurgan Town Centre. High Street is Lurgan“s prime retailing pitch with a number of retail outlets in the immediate vicinity. The area enjoys high levels of passing pedestrian and vehicular traffic along with free car parking spaces available at the front of the property.
Lurgan is located approx 25 miles south west of Belfast and is easily accessible via the M1 Motorway.
RATES
Interested parties should make their own enquiries with Land & Property Services about rates and potential discounts.
VAT
All prices quoted are exclusive of VAT.
VIEWING ARRANGEMENTS
By appointment only, for further information or to arrange a viewing please contact Hannath estate agents
Tel: 02838399911
Email. info@hannath.com
Property Location
Contact Agent
Contact Hannath
Request More Information
Requesting Info about...
4 High Street, Lurgan, Craigavon, BT66 8AW
By registering your interest, you acknowledge our Privacy Policy
By registering your interest, you acknowledge our Privacy Policy