Contact Agent
Contact Henry Graham Estate Agents
3 Bed Townhouse
68 Wellington Park Avenue
Craigavon, BT67 0UG
offers in region of
£900pm
Description
*please note this property is available from 1st August*
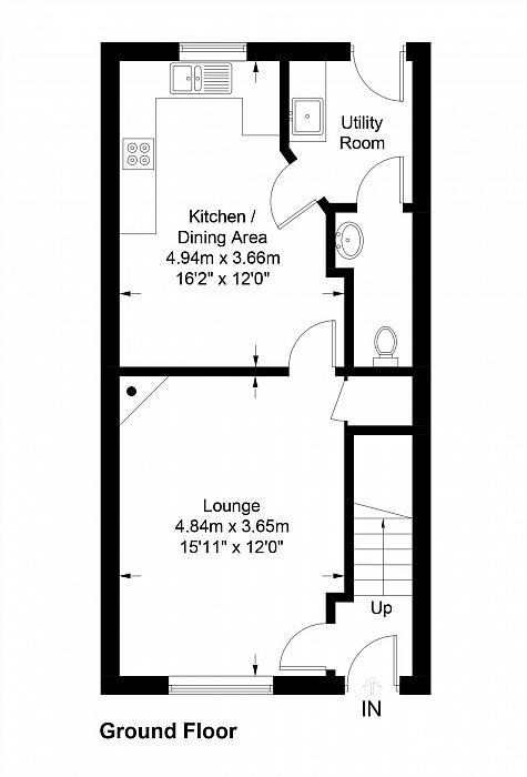
An Exceptionally Well Presented Townhouse Property Situated Within This Highly Desirable Residential Location In Close Proximity To Local Shops And Easy Commuting To Lisburn, Moira And M1 Motorway
Entrance Hall With Panelled Entrance Door And Laminated Timber Floor
Spacious Lounge With Laminated Timber Floor (Please note stove cannot be used for real fire as flue has been removed)
Luxury Fitted Kitchen And Dining Area With Range Of Integrated Appliances
Utility Room With Adjoining Cloakroom With Low Flush Suite
Three Good Sized Bedrooms (One With Modern Shower Room En Suite)
Bathroom With White Suite Including Bath And Shower Cubicle
Tarmac Driveway To Front
Enclosed Rear Garden Laid In Lawn With Paved Patio Area Plus Covered Patio Area
Oil Fired Central Heating System And PVC Double Glazed Windows
Excellent C77 Energy Rating For Reduced Running Costs
Rent is payable monthly and will include rates / Deposit £825
Unfurnished and available from 1st August / No pets / Smoking is not permitted inside the property
Email agent Rachael at rstewart@hgraham.co.uk to register interest
Video tour link https://youtu.be/9B8Ppd38DwA
Landlord Registration
Registration Number : NI825C0F2D
Notice
All photographs are provided for guidance only.
Redress scheme provided by: The Property Ombudsman (N01316-0)
Utilities
Electric: Mains Supply
Gas: None
Water: Mains Supply
Sewerage: None
Broadband: None
Telephone: None
Other Items
Heating: Oil Central Heating
Garden/Outside Space: No
Parking: Yes
Garage: No
An Exceptionally Well Presented Townhouse Property Situated Within This Highly Desirable Residential Location In Close Proximity To Local Shops And Easy Commuting To Lisburn, Moira And M1 Motorway
Entrance Hall With Panelled Entrance Door And Laminated Timber Floor
Spacious Lounge With Laminated Timber Floor (Please note stove cannot be used for real fire as flue has been removed)
Luxury Fitted Kitchen And Dining Area With Range Of Integrated Appliances
Utility Room With Adjoining Cloakroom With Low Flush Suite
Three Good Sized Bedrooms (One With Modern Shower Room En Suite)
Bathroom With White Suite Including Bath And Shower Cubicle
Tarmac Driveway To Front
Enclosed Rear Garden Laid In Lawn With Paved Patio Area Plus Covered Patio Area
Oil Fired Central Heating System And PVC Double Glazed Windows
Excellent C77 Energy Rating For Reduced Running Costs
Rent is payable monthly and will include rates / Deposit £825
Unfurnished and available from 1st August / No pets / Smoking is not permitted inside the property
Email agent Rachael at rstewart@hgraham.co.uk to register interest
Video tour link https://youtu.be/9B8Ppd38DwA
Landlord Registration
Registration Number : NI825C0F2D
Notice
All photographs are provided for guidance only.
Redress scheme provided by: The Property Ombudsman (N01316-0)
Utilities
Electric: Mains Supply
Gas: None
Water: Mains Supply
Sewerage: None
Broadband: None
Telephone: None
Other Items
Heating: Oil Central Heating
Garden/Outside Space: No
Parking: Yes
Garage: No
Video
Broadband Speed Availability
Potential Speeds for 68 Wellington Park Avenue
Max Download
10000
Mbps
Max Upload
10000
MbpsThe speeds indicated represent the maximum estimated fixed-line speeds as predicted by Ofcom. Please note that these are estimates, and actual service availability and speeds may differ.
Property Location
Contact Agent
Contact Henry Graham Estate Agents
Request More Information
Requesting Info about...
68 Wellington Park Avenue, Craigavon, BT67 0UG
By registering your interest, you acknowledge our Privacy Policy
By registering your interest, you acknowledge our Privacy Policy