Contact Agent

Contact Joyce Clarke

Contact Joyce Clarke

3 Bed Semi-Detached House

101, Brick, Dickson's Wood

Craigavon, BT65 5EZ

Price on Application
  • Status Sale Agreed
  • Property Type Semi-Detached
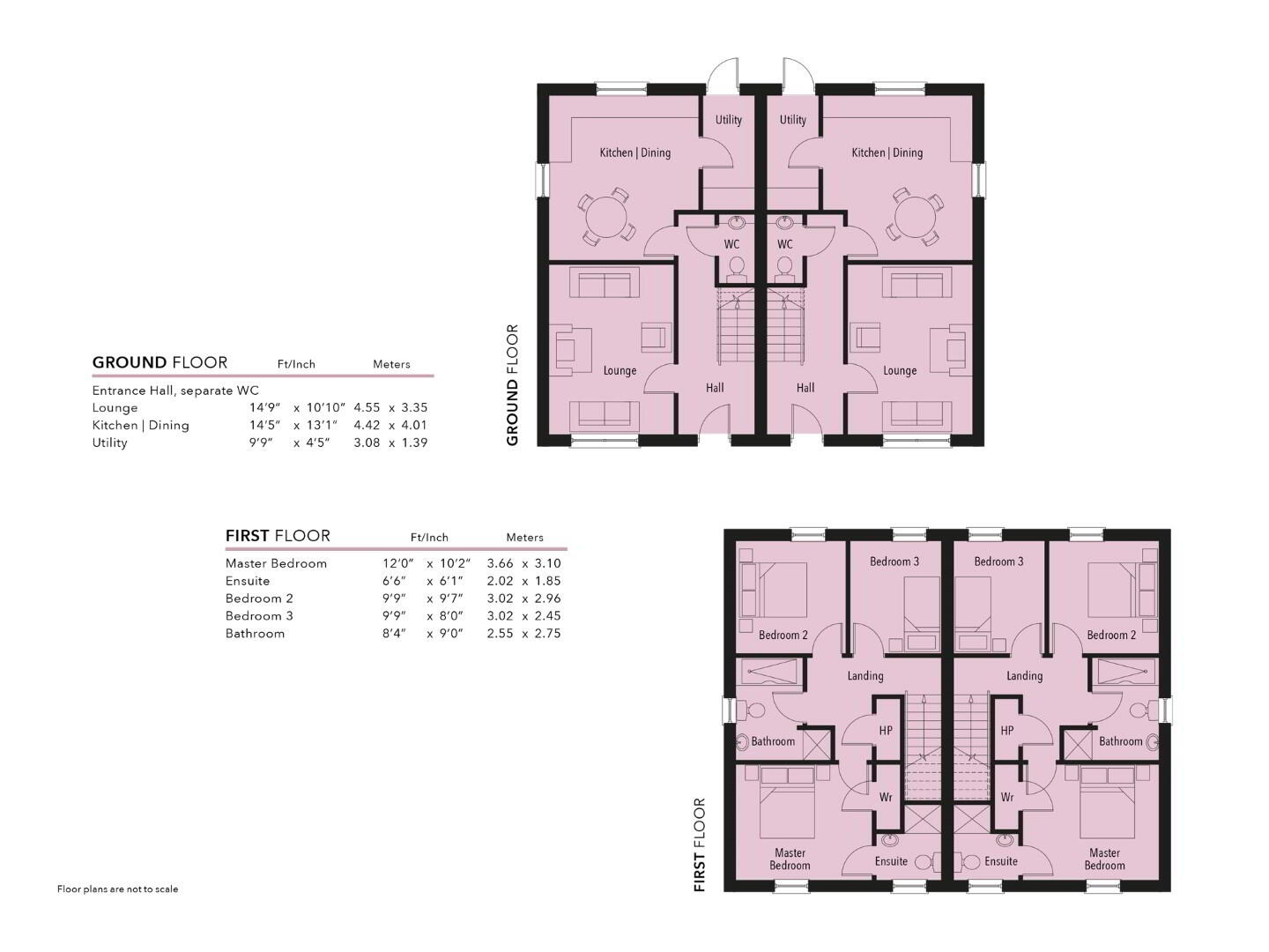
  • Bedrooms 3
  • Receptions 1
  • Bathrooms 3
  • Interior Area 1080 sq ft
  • Heating Gas
  • Typical Mortgage
    Click price to use our mortgage calculator

Description

Three bedroom semi detached 

 

KEY ENERGY EFFICIENCY FEATURES
- Woodburning stove
- Energy effcient natural gas fred central heating system
- Energy effcient home
- Excellent insulation

 

KITCHEN & UTILITY ROOM
- Traditional style kitchen with units and solid worktops including up stands and splash backs behind cooker
- Slow close doors and drawers
- Appliances to include hob, oven, fridge, freezer, dishwasher and extractor hood
- All appliances come with a 12 month warranty
- Stainless steel sink and drainer with choice of 2 tap sets
- Utility area plumbed for a washing machine and tumble dryer with additional storage and sink / drainer facilities (where applicable)
- Choice of floor tiles to kitchen and utility (where applicable)

 

BATHROOM, ENSUITE & DOWNSTAIRS WC
- Contemporary white sanitary ware with chrome fttings
- Bathroom with 4 piece suite to include shower
- Thermostatically controlled shower to bathroom and ensuite
- Recessed lighting
- Choice of floor tiling to bathroom, ensuite and downstairs WC with walls tiled to the splash areas and shower enclosure

 

INTERNAL DÉCOR
- Choice of carpets to lounge, stairs, landing and bedrooms
- Choice of floor tiles to hall, kitchen, bathroom and cloakroom
- Internal walls and ceilings painted along with internal woodwork
- Internal doors with period ironmongery
- Painted moulded skirting and architrave

 

ELECTRICAL FEATURES
- Mains supply smoke, heat and Carbon Monoxide detectors
- Comprehensive range of electrical points, sockets, television and telephone points

 

EXTERNAL FEATURES
- Traditional brick or contemporary render fnish with soldier course above windows
- Natural stone effect lintels to front entrance door surround
- Black front entrance door
- Feature fan light to front door
- uPVC double glazed windows
- Energy effcient double glazed windows
- Black guttering and downpipes
- External areas fnished tarmac
- Paved patio areas
- Feature external lighting
- Front and rear garden sown out in seed
- Enclosed rear garden
- Outside tap

 

STRUCTURAL GUARANTEE
- 10 year structural warranty


ENTRANCE AND OPEN SPACE
- The development will feature an entrance with prestigious parkland railings, leading to a central area of landscaped open space for all residents to enjoy. This open space is within easy walking distance of all houses within Dickson’s Wood, ensuring a safe, private recreational area.


MANAGEMENT COMPANY
- A management company will be formed to look after and maintain the upkeep and well being of the communal open space. An annual fee will be paid by all residents.

 

**CGI shown for illustration purposes only. Floor plans are not to scale. External finish dependant on site. Window positions on the gable wall may vary, depending on the site orientation – check with selling agent for full details**

Property Location

Show Map

Contact Agent

Contact Joyce Clarke

Contact Joyce Clarke

Request More Information
Requesting Info about...
101, Brick, Dicksons Wood, Craigavon, BT65 5EZ 101, Brick, Dicksons Wood, Craigavon, BT65 5EZ

By registering your interest, you acknowledge our Privacy Policy
Ask Holmes
Ask Holmes
Let's find your next home

Are you sure you want to reset the chat?

Checking API...