Contact Agent

Contact Stanley Best Estate Agents

Contact Stanley Best Estate Agents

Mixed Use

38 James Street

Cookstown, BT80 8LX

Price on Application
  • Status For Rent
  • Property Type Mixed Use
  • EPC Rating D85
EPC Rating

Key Features & Description

Main Street Frontage
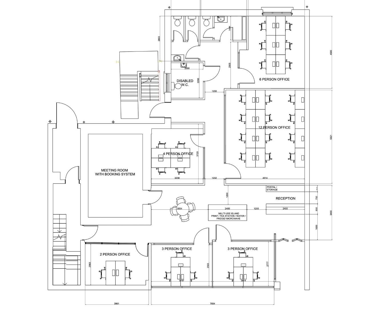
c. 1800 Sqft (Ground Floor Only)
Prominent location
Close to town centre.
Parking to rear.
Description

Superb ground floor retail/office premises. c.1800SqFT


 


 

Set on Cookstown Main Street, the premises benefits from excellent accessibility and visibility. The former Danske Bank, in a prominent and thriving business area, making it an ideal location for your enterprise. (Ground Floor only) Internal lay out can be rearranged.

Rent and lease terms from The Agents.
CGI IMAGES AND FLOOR PLANS FOR ID ONLY. All photographs have been taken with a wide angle lens. MORTGAGE ADVICE: STANLEY BEST ESTATE AGENTS are pleased to offer a FREE independent mortgage and financial advice service. Please ask for details. Important notice to purchasers - Your attention is drawn to the fact that we have been unable to confirm whether certain items included in the property are in full working order. Any prospective purchaser must accept that the property is offered for sale on this basis. These particulars are given on the understanding that they will not be construed as part of a contract, conveyance or lease.

Broadband Speed Availability

Ultrafast

Potential Speeds for 38 James Street

Max Download
1800
Mbps
Max Upload
300
Mbps
The speeds indicated represent the maximum estimated fixed-line speeds as predicted by Ofcom. Please note that these are estimates, and actual service availability and speeds may differ.

Property Location

Show Map

Contact Agent

Contact Stanley Best Estate Agents

Contact Stanley Best Estate Agents

Request More Information
Requesting Info about...
38 James Street, Cookstown, BT80 8LX 38 James Street, Cookstown, BT80 8LX

By registering your interest, you acknowledge our Privacy Policy
Ask Holmes
Ask Holmes
Let's find your next home

Are you sure you want to reset the chat?

Checking API...