Contact Agent

Contact Stanley Best Estate Agents

Contact Stanley Best Estate Agents

Industrial

10 Derryloran Industrial Estate

Cookstown, BT80 9XR

price £10
  • Status For Rent
  • Property Type Industrial
  • Typical Mortgage
    Click price to use our mortgage calculator
EPC Rating

Key Features & Description

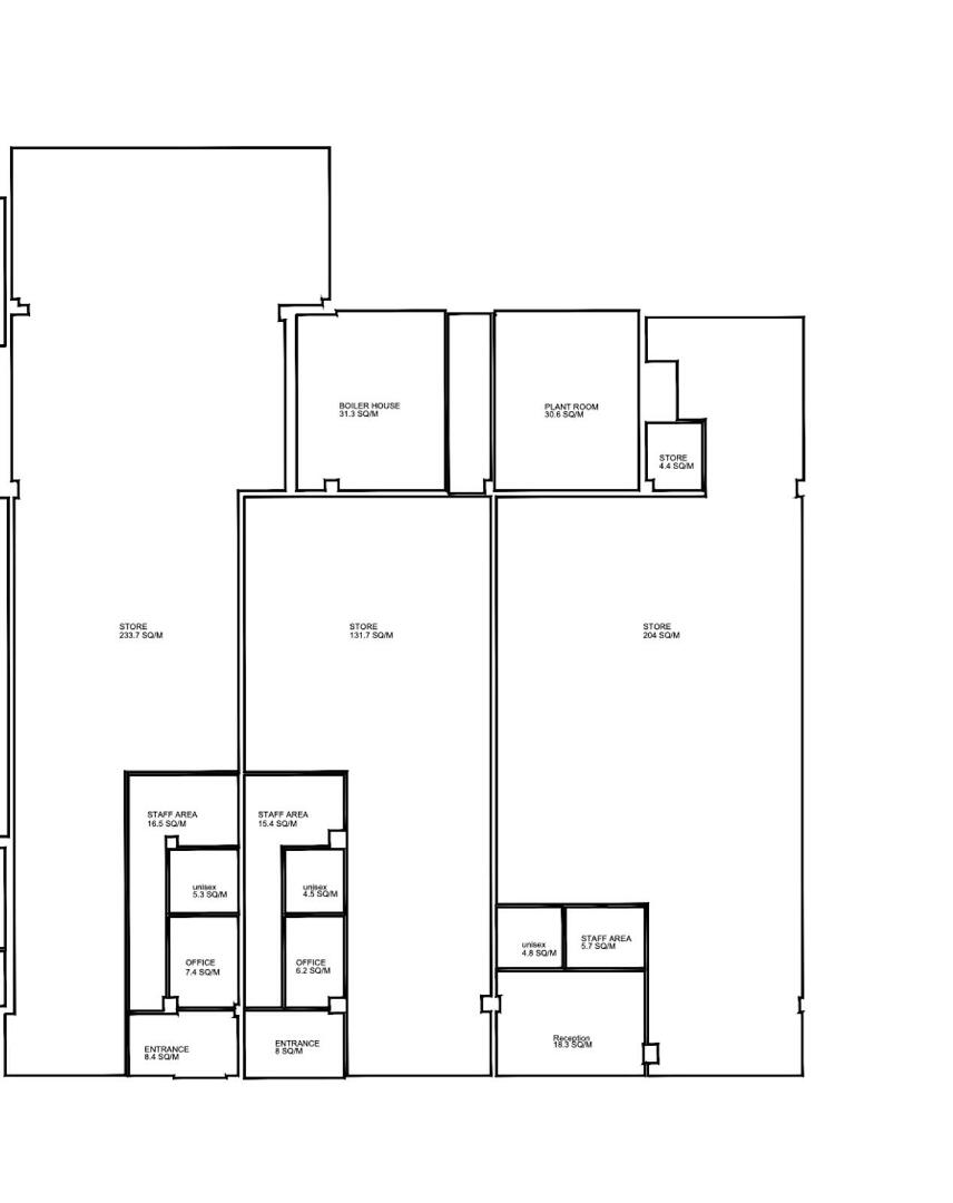
UNITS FROM C2600 SQ FT
C8000 SQ FT IN TOTAL AVAILABLE 1 OR MORE UNITS
ELECTRIC ROLLER SHUTTER DOORS. GENEROUS PARKING
SITUATED IN THE POPULAR DERRYLORAN INDUSTRIAL PARK, CONVENIENT TO COOKSTOWN WITH GOOD ROAD LINKS TO M1 AND M2 MOTORWAYS
LONG LEASE AVAILABLE. RENT £10 PER SQ FT.(PLUS SERVICE CHARGE PLUS RATES)
LARGE PARKING AREA
RATES: TBC
Description

An excellent opportunity to secure high-quality commercial space within the highly sought-after Derryloran Industrial Estate. These modern units offer flexible accommodation, strong transport connectivity, and generous on-site parking — ideal for a range of business uses

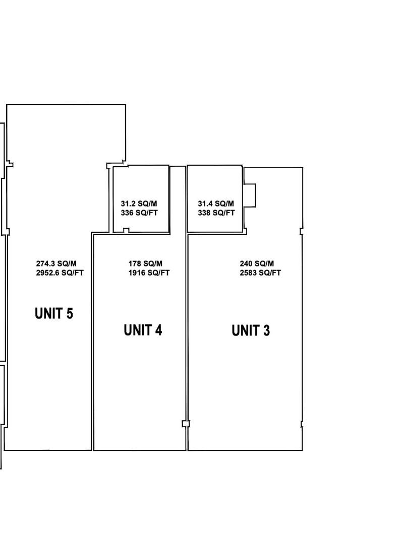
Unit 3 - 2583 SqFt (240 SqM)
Unit 4 - 1916 SqFt (178 SqM)
Unit 5 - 2952 SqFt (274 SqM)

Lease terms negotiable 3/5 year lease at £10 per SqFT per annum

Further details from the Agents
Derryloran Industrial Estate benefits from a strategic and accessible location with direct links to major road networks. Its proximity to the M1 and M2 motorways makes it particularly well suited to businesses requiring efficient logistics, distribution, or regional connectivity.

Broadband Speed Availability

Ultrafast

Potential Speeds for 10 Derryloran Industrial Estate

Max Download
2000
Mbps
Max Upload
2000
Mbps
The speeds indicated represent the maximum estimated fixed-line speeds as predicted by Ofcom. Please note that these are estimates, and actual service availability and speeds may differ.

Property Location

Show Map

Contact Agent

Contact Stanley Best Estate Agents

Contact Stanley Best Estate Agents

Request More Information
Requesting Info about...
10 Derryloran Industrial Estate, Cookstown, BT80 9XR 10 Derryloran Industrial Estate, Cookstown, BT80 9XR

By registering your interest, you acknowledge our Privacy Policy