Contact Agent

Contact Connor Harte

Contact Connor Harte

Land

Ballygroogan Park, Land At Immediately North Of Junction Of Pomeroy Road & Kilcronagh Road

Cookstown, BT80 9HQ

offers over £750,000
  • Status For Sale
  • Property Type Land
  • Stamp Duty
    Higher amount applies when purchasing as buy to let or as an additional property
    £27,500 / £65,000*
  • Typical Mortgage
    Click price to use our mortgage calculator
EPC Rating

Key Features

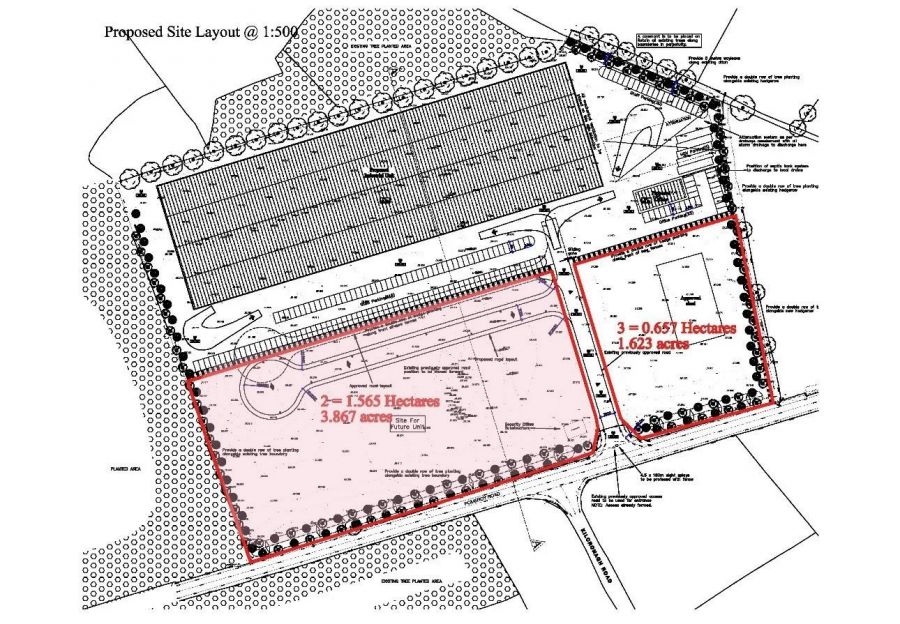
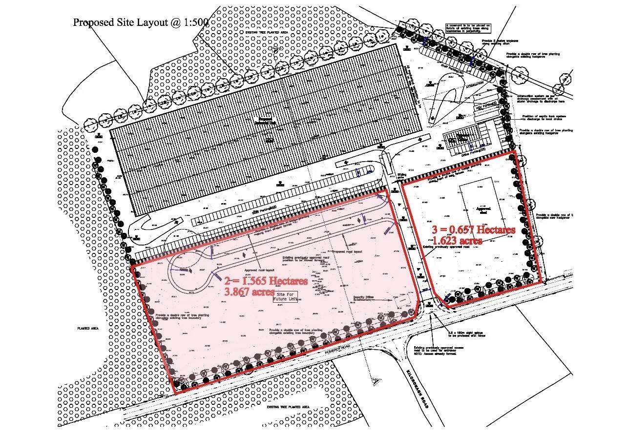
3.87 acres (excluding road access)
Site suitable for Industrial (STPP) within Ballygroogan Park (Name assigned by Cookstown District in 2014)
A new road will be constructed down the side of the site to provide access

Property Location

Show Map

Mortgage Calculator

Disclaimer: The following calculations act as a guide only, and are based on a typical repayment mortgage model. Financial decisions should not be made based on these calculations and accuracy is not guaranteed. Always seek professional advice before making any financial decisions.

Contact Agent

Contact Connor Harte

Contact Connor Harte

Request More Information
Requesting Info about...
Ballygroogan Park, Land At Immediately North Of Junction Of Pomeroy Road & Kilcronagh Road, Cookstown, BT80 9HQ Ballygroogan Park, Land At Immediately North Of Junction Of Pomeroy Road & Kilcronagh Road, Cookstown, BT80 9HQ

By registering your interest, you acknowledge our Privacy Policy