Contact Agent

Contact Pooler Country

Contact Pooler Country

Land (Single Dwelling)

Adjacent To 56 Ballycreely Road

Comber, BT23 5PX

from £125,000
  • Status Sale Agreed
  • Property Type Land (Single Dwelling)
  • Stamp Duty
    Higher amount applies when purchasing as buy to let or as an additional property
    £0 / £6,250*
  • Typical Mortgage
    Click price to use our mortgage calculator

Key Features & Description

Magnificent elevated building site with panoramic rural views across North Down countryside to Scrabo
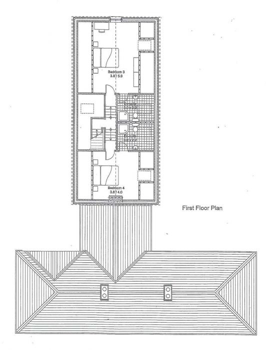
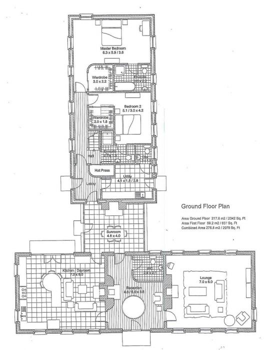
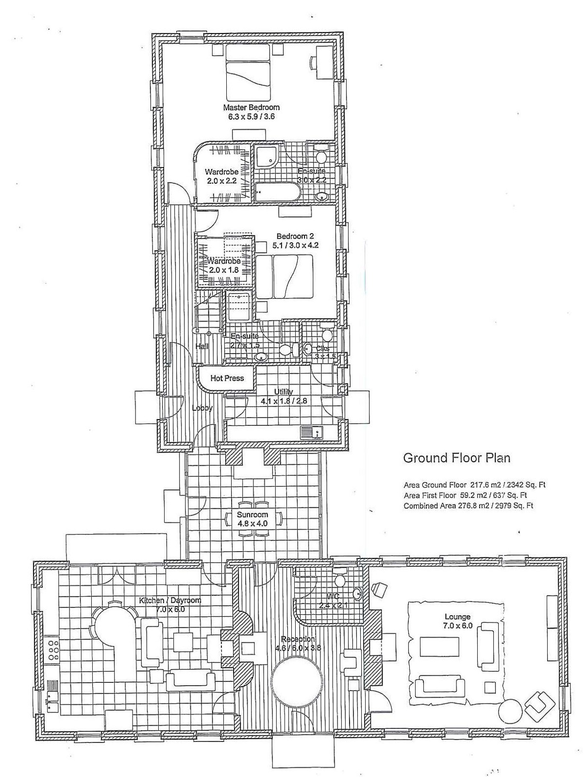
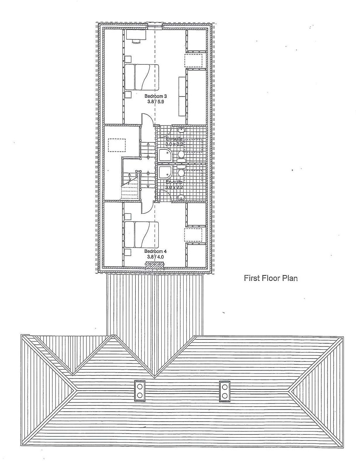
Full planning permission granted in November 2015 for a beautifully designed Georgian style property extending to 3283 sq ft (305 sq m) plus garage
Site of around 0.5 acre not including new private lane
Single storey front elevation with storey and a half to the rear
Just 6 miles from edge of Belfast at Castlereagh and 3 miles from Comber
If you would like further details and an inspection of the site, please telephone Christopher Pooler 028 9045 3319
Description

Located just 6 miles from the edge of Belfast at Castlereagh and 3 miles from Comber this is a quality elevated building site with fabulous views across countryside with Scrabo tower in the distance.  Full planning permission has been passed for a very attractive property with Georgian style single storey façade and a storey and a half to the rear.

All services are nearby and access is from a new private lane approached from a shared lane from the Ballycreely Road

 

Broadband Speed Availability

Basic

Potential Speeds for Adjacent to 56, Adjacent to 56 Ballycreely Road

Max Download
3
Mbps
Max Upload
1
Mbps
The speeds indicated represent the maximum estimated fixed-line speeds as predicted by Ofcom. Please note that these are estimates, and actual service availability and speeds may differ.

Property Location

Show Map

Mortgage Calculator

Disclaimer: The following calculations act as a guide only, and are based on a typical repayment mortgage model. Financial decisions should not be made based on these calculations and accuracy is not guaranteed. Always seek professional advice before making any financial decisions.

Contact Agent

Contact Pooler Country

Contact Pooler Country

Request More Information
Requesting Info about...
Adjacent To 56 Ballycreely Road, Comber, BT23 5PX Adjacent To 56 Ballycreely Road, Comber, BT23 5PX

By registering your interest, you acknowledge our Privacy Policy