Contact Agent
Contact Templeton Robinson (North Down)
3 Bed Detached Bungalow
30 Glenariff Drive
Comber, BT23 5HA
offers around
£315,000
- Status For Sale
- Property Type Detached Bungalow
- Bedrooms 3
- Receptions 2
- Heating Gas
-
Stamp Duty
Higher amount applies when purchasing as buy to let or as an additional property£5,750 / £21,500*
Key Features & Description
Attractive detached bungalow located on the periphery of Comber
Elevated situ affording panoramic views across open countryside
Immacualtely presented & tastefully decorated throughout
Bright, spacious & well-appointed accommodation
Living Room open to Dining Room
Separate Kitchen
Three double bedrooms
Luxury shower room
Slingsby ladder to floored roofspace
uPVC frame double glazed windows / Gas fired central heating
Tarmac driveway offering ample parking
Attached garage ( measuring 8.1 x 3.9m) / (Additional basement store area accessed via garage)
Highly convenient yet quiet residential location - Ideal for those looking for accessibility yet also seeking a quieter, relaxed pace of living
Description
Located on the periphery of Comber, this attractive detached bungalow occupies an elevated situ, affording stunning panoramic views across open countryside to Scrabo Tower and beyond.
Offering bright, spacious, and well-appointed accommodation briefly comprising hallway, living room leading to dining room and separate kitchen plus three double bedrooms and luxury bathroom. Immaculately presented throughout, the property is decorated in neutral tones leaving the eventual purchaser little to do but move in and enjoy. Externally, a good-sized tarmac driveway leading to a large attached garage complimented by an enclosed, notably private rear garden enjoying a rural aspect.
Comber boasts a variety of local amenities including an array of restaurants, coffee shops, schools, local leisure centre plus the Comber Greenway, a 7 mile traffic free pathway leading to Belfast along the old railway line. It is also within proximity to principal routes to Belfast Dundonald, Downpatrick and Newtownards - ideal for those who wish for convenience but also seeking a quieter, relaxed pace of living.
Located on the periphery of Comber, this attractive detached bungalow occupies an elevated situ, affording stunning panoramic views across open countryside to Scrabo Tower and beyond.
Offering bright, spacious, and well-appointed accommodation briefly comprising hallway, living room leading to dining room and separate kitchen plus three double bedrooms and luxury bathroom. Immaculately presented throughout, the property is decorated in neutral tones leaving the eventual purchaser little to do but move in and enjoy. Externally, a good-sized tarmac driveway leading to a large attached garage complimented by an enclosed, notably private rear garden enjoying a rural aspect.
Comber boasts a variety of local amenities including an array of restaurants, coffee shops, schools, local leisure centre plus the Comber Greenway, a 7 mile traffic free pathway leading to Belfast along the old railway line. It is also within proximity to principal routes to Belfast Dundonald, Downpatrick and Newtownards - ideal for those who wish for convenience but also seeking a quieter, relaxed pace of living.
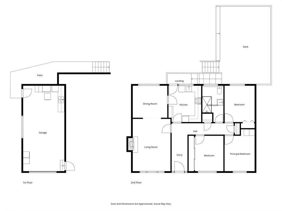
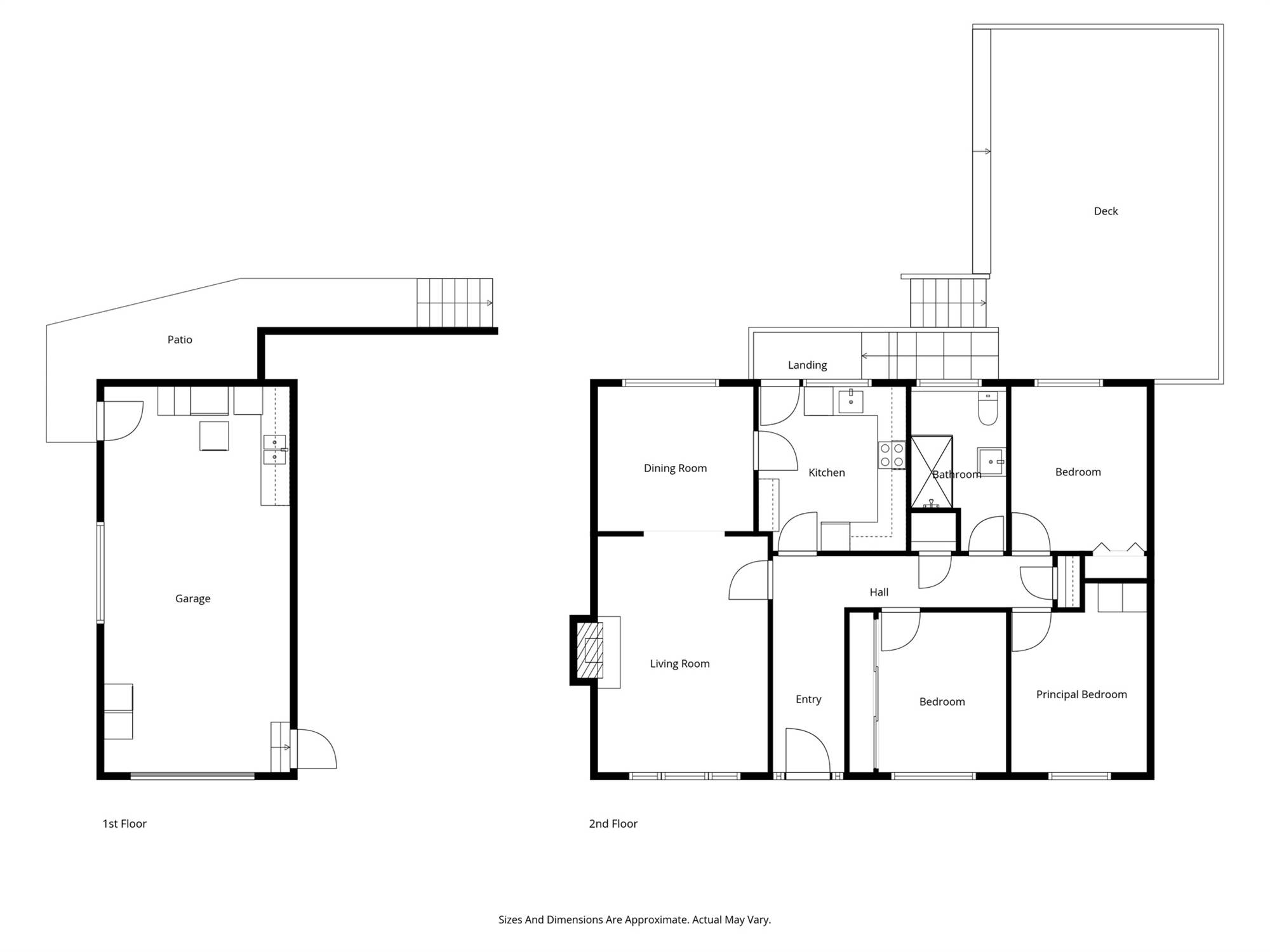
Rooms
Composite front door to . . .
HALLWAY:
Ceramic tiled floor. Cloaks cupboard. Slingsby ladder to floored roofspace.
LIVING ROOM: 16' 5" X 11' 10" (5.00m X 3.60m)
Feature multi-fuel stove with slate hearth. Open to . . .
DINING ROOM: 10' 6" X 9' 10" (3.20m X 3.00m)
Overlooking rear garden with views extending to countryside.
KITCHEN: 11' 2" X 10' 6" (3.40m X 3.20m)
Contemporary fitted kitchen with excellent range of high and low level units, Franke stainless steel sink with detachable mixer tap, built-in Neff oven and grill, stainless steel extractor fan, space for dishwasher, space for fridge freezer, laminate worktops, part tiled walls and sills, concealed lighting, overlooking rear garden with views extending to countryside.
BEDROOM (1): 12' 11" X 10' 11" (3.94m X 3.33m)
BEDROOM (2): 11' 1" X 10' 11" (3.38m X 3.33m)
Built-in wardrobe with mirrored doors.
BEDROOM (3): 11' 2" X 9' 6" (3.40m X 2.90m)
SHOWER ROOM:
Comprising fully tiled built-in shower cubical with power shower and tiled shelf recess, wash hand basin with mixer tap and low level drawer, tiled splashback, wired LED mirror, close coupled wc, heated towel rail, ceramic tiled floor, fully tiled walls, low voltage spotlights, extractor fan.
Tarmac driveway offering ample parking to . . .
ATTACHED GARAGE 26' 7" X 12' 10" (8.10m X 3.90m)
Light and power, roller door.
UTILITY AREA; Plumbed for washing machine, space for dryer.
Access to . . .
ADDITIONAL STORE BASEMENT: 26' 7" X 12' 10" (8.10m X 3.90m)
With light (restricted ceiling height).
Broadband Speed Availability
Potential Speeds for 30 Glenariff Drive
Max Download
1800
Mbps
Max Upload
220
MbpsThe speeds indicated represent the maximum estimated fixed-line speeds as predicted by Ofcom. Please note that these are estimates, and actual service availability and speeds may differ.
Property Location
Mortgage Calculator
Directions
From roundabout at Glen Link Railway Street - travel up Glen Road. Glenarriff Drive is third on the right.
Contact Agent
Contact Templeton Robinson (North Down)
Request More Information
Requesting Info about...
30 Glenariff Drive, Comber, BT23 5HA
By registering your interest, you acknowledge our Privacy Policy
By registering your interest, you acknowledge our Privacy Policy