Contact Agent
Contact Philip Tweedie & Company (Coleraine)
Land
47 Ballycairn Road
Coleraine, BT51 3HZ
offers over
£695,000
- Status Sale Agreed
- Property Type Land
-
Stamp Duty
Higher amount applies when purchasing as buy to let or as an additional property£24,750 / £59,500*
Description
EXCELLENT RE-DEVELOPMENT OPPORTUNITY
47 BALLYCAIRN ROAD, COLERAINE
SUMMARY
Prime redevelopment opportunity, subject to planning permission extending to c.2.35 acres located in one of Coleraine's most popular residential areas.
The subject exists within the Limit of Development in the existing statutory plan The Northern Area Plan 2016 and is shown as white land.
Formerly famously occupied by BKS Surveys the existing buildings extend to c. 3,050 Square Meters.
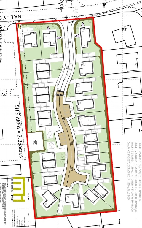
Schematic drawings have been prepared by Montgomery Irwin Architects indicating the potential to achieve in the region of 19 24 residential units on the site, subject to Planning Permission.
Excellent location being within 1 mile of Coleraine Town Centre and adjacent to popular and well established primary and secondary/grammar schools.
We are instructed to seek offers in excess of £695,000.
LOCATION
47 Ballycairn Road is located less than 1 mile to the North West of Coleraine Town Centre and being on the western side of the River Bann which bisects the town.
Ballycairn Road is a well established and popular residential location, seen to be the prime area on the western side of the river. The locations popularity is driven by a good mix of housing types, good schools, ease of access to the town centre and also to The Riverside Regional Retail Park which includes outlets such as Sainsburys and B&Q.
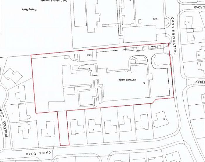
The property, which is a regular rectangular shaped site, fronts onto Ballycairn Road and is bounded to the south by The Christie Memorail Primary School which in turn abuts the playing fields of Coleraine Grammar School. The remaining two boundaries are onto established residential dwellings.
DESCRIPTION
The subject is currently made up by vacant commercial buildings which were primarily used as offices and print production/imagery.
The site is a reasonably regular rectangular shape extending to c. 2.35 acres and sits below the level of Ballycairn Road and falls gently towards Redlands Crescent.
The boundaries at present are made up by mature hedging and trees along with fencing. The main entrance is adjacent to the Primary School and there is extensive frontage onto Ballycairn Road.
DEVELOPMENT POTENTIAL & PLANNING
The subject property is shown as being White Land within the Limit of Development of the Northern Area Plan 2016 and in essence would be seen as a "Brown Field" redevelopment opportunity.
Schematic drawings have been prepared by Montgomery Irwin Architects indicating the potential of between 19 and 24 units being a mix of detached and semi detached homes which reflects a realistic density range of between 8 and 10 units per acre. (Brief report prepared by Montgomery Irwin can be provided on request and ideally directly through the Consultant Alan Irwin).
Surrounding property is primarily detached being either two storey housing/chalets or single storey bungalows.
PRICE
We are instructed to seek offers in excess of £695,000(Six Hundred & Ninety Five Thousand Pounds Sterling) for our client's Freehold interest, exclusive of VAT.
TENURE
Freehold to be confirmed by Vendor's solicitor.
SERVICES
Interested parties are requested to satisfy themselves on the availability and adequacy of all services.
PLANNING
Interested parties should satisfy themselvlves on all aspects of planning and the sale shall not be conditional on planning permission.
INSPECTION / VIEWINGS
Strictly by prior appointment with the selling agent.
TAX / VAT
Prospective purchasers should satisfy themselves on the Stamp Duty Land Tax Liability. The guide sale price quoted is exclusive of but maybe subject to VAT, to be confirmed.
FURTHER INFORMATION
For further information or to arrange a viewing contact:
Philip Tweedie 07977007512 / philip@philiptweedie.com
SOLICITOR
Carson McDowell
TEL: 028 9034 8837
Murray House, Murray Street, Belfast
47 BALLYCAIRN ROAD, COLERAINE
SUMMARY
Prime redevelopment opportunity, subject to planning permission extending to c.2.35 acres located in one of Coleraine's most popular residential areas.
The subject exists within the Limit of Development in the existing statutory plan The Northern Area Plan 2016 and is shown as white land.
Formerly famously occupied by BKS Surveys the existing buildings extend to c. 3,050 Square Meters.
Schematic drawings have been prepared by Montgomery Irwin Architects indicating the potential to achieve in the region of 19 24 residential units on the site, subject to Planning Permission.
Excellent location being within 1 mile of Coleraine Town Centre and adjacent to popular and well established primary and secondary/grammar schools.
We are instructed to seek offers in excess of £695,000.
LOCATION
47 Ballycairn Road is located less than 1 mile to the North West of Coleraine Town Centre and being on the western side of the River Bann which bisects the town.
Ballycairn Road is a well established and popular residential location, seen to be the prime area on the western side of the river. The locations popularity is driven by a good mix of housing types, good schools, ease of access to the town centre and also to The Riverside Regional Retail Park which includes outlets such as Sainsburys and B&Q.
The property, which is a regular rectangular shaped site, fronts onto Ballycairn Road and is bounded to the south by The Christie Memorail Primary School which in turn abuts the playing fields of Coleraine Grammar School. The remaining two boundaries are onto established residential dwellings.
DESCRIPTION
The subject is currently made up by vacant commercial buildings which were primarily used as offices and print production/imagery.
The site is a reasonably regular rectangular shape extending to c. 2.35 acres and sits below the level of Ballycairn Road and falls gently towards Redlands Crescent.
The boundaries at present are made up by mature hedging and trees along with fencing. The main entrance is adjacent to the Primary School and there is extensive frontage onto Ballycairn Road.
DEVELOPMENT POTENTIAL & PLANNING
The subject property is shown as being White Land within the Limit of Development of the Northern Area Plan 2016 and in essence would be seen as a "Brown Field" redevelopment opportunity.
Schematic drawings have been prepared by Montgomery Irwin Architects indicating the potential of between 19 and 24 units being a mix of detached and semi detached homes which reflects a realistic density range of between 8 and 10 units per acre. (Brief report prepared by Montgomery Irwin can be provided on request and ideally directly through the Consultant Alan Irwin).
Surrounding property is primarily detached being either two storey housing/chalets or single storey bungalows.
PRICE
We are instructed to seek offers in excess of £695,000(Six Hundred & Ninety Five Thousand Pounds Sterling) for our client's Freehold interest, exclusive of VAT.
TENURE
Freehold to be confirmed by Vendor's solicitor.
SERVICES
Interested parties are requested to satisfy themselves on the availability and adequacy of all services.
PLANNING
Interested parties should satisfy themselvlves on all aspects of planning and the sale shall not be conditional on planning permission.
INSPECTION / VIEWINGS
Strictly by prior appointment with the selling agent.
TAX / VAT
Prospective purchasers should satisfy themselves on the Stamp Duty Land Tax Liability. The guide sale price quoted is exclusive of but maybe subject to VAT, to be confirmed.
FURTHER INFORMATION
For further information or to arrange a viewing contact:
Philip Tweedie 07977007512 / philip@philiptweedie.com
SOLICITOR
Carson McDowell
TEL: 028 9034 8837
Murray House, Murray Street, Belfast
Broadband Speed Availability
Potential Speeds for 47 Ballycairn Road
Max Download
80
Mbps
Max Upload
20
MbpsThe speeds indicated represent the maximum estimated fixed-line speeds as predicted by Ofcom. Please note that these are estimates, and actual service availability and speeds may differ.
Property Location
Mortgage Calculator
Contact Agent
Contact Philip Tweedie & Company (Coleraine)
Request More Information
Requesting Info about...
47 Ballycairn Road, Coleraine, BT51 3HZ
By registering your interest, you acknowledge our Privacy Policy
By registering your interest, you acknowledge our Privacy Policy