Contact Agent

Contact Philip Tweedie & Company (Coleraine)
Land
Land To Rear Of 16 Shinny Road Macosquin
Coleraine, BT51 4PS
offers in region of
£75,000
- Status For Sale
- Property Type Land
-
Stamp Duty
Higher amount applies when purchasing as buy to let or as an additional property£0 / £3,750*
Key Features & Description
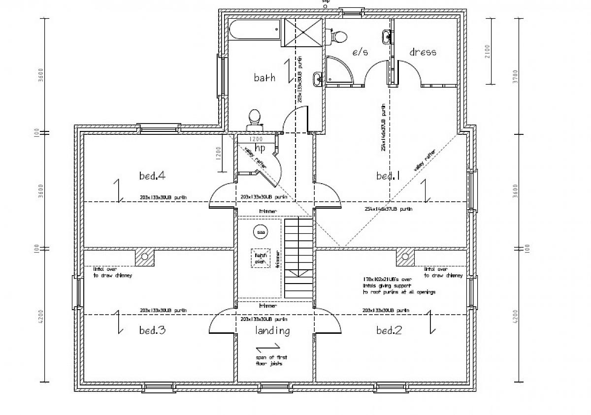
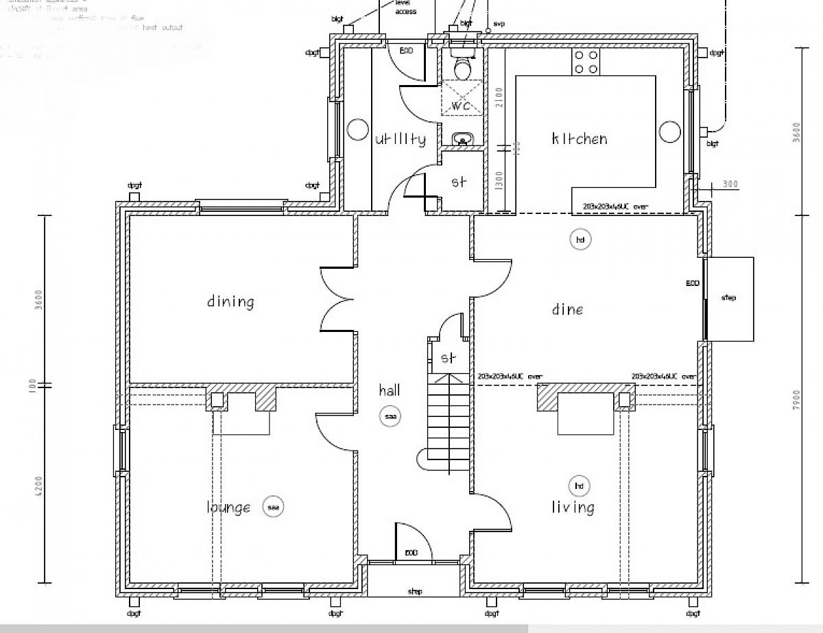
Full planning permission granted (full details available on request)
Site extends to approximately 0.6acre.
Mature site with tree lined boundary
House extends to approximately 2600sqft.
4 Bedrooms (2 ensuite), lounge, formal dining room, living room, kitchen/ dining room, utility room, downstairs WC, four bedrooms (1 with ensuite and dressing room), bathroom, detached garage.
Site is accessed via hardcore lane giving it excellent privacy
Only a few minutes' drive of Coleraine Town Centre and Castlerock Beach
Offering ease of access to Derry.
Planning Reference - C/2010/0059/F
Description
If peace and tranquillity is what you look for in your dream location then look no further. This building plot is located off the Shinny Road and is nestled within a site of mature trees and therefore offers excellent privacy.
Full planning permission has been granted for a dwelling that is 1.5 stories with a garage
C/2010/0059/F
29 Apr 2010
If peace and tranquillity is what you look for in your dream location then look no further. This building plot is located off the Shinny Road and is nestled within a site of mature trees and therefore offers excellent privacy.
Full planning permission has been granted for a dwelling that is 1.5 stories with a garage
C/2010/0059/F
29 Apr 2010
Broadband Speed Availability
Potential Speeds for Land To Rear Of 16 Shinny Road Macosquin
Max Download
1000
Mbps
Max Upload
1000
MbpsThe speeds indicated represent the maximum estimated fixed-line speeds as predicted by Ofcom. Please note that these are estimates, and actual service availability and speeds may differ.
Property Location

Mortgage Calculator
Contact Agent

Contact Philip Tweedie & Company (Coleraine)
Request More Information
Requesting Info about...
Land To Rear Of 16 Shinny Road Macosquin, Coleraine, BT51 4PS
By registering your interest, you acknowledge our Privacy Policy

By registering your interest, you acknowledge our Privacy Policy