Contact Agent

Contact Philip Tweedie & Company (Coleraine)

Contact Philip Tweedie & Company (Coleraine)

4 Bed Semi-Detached House

14 Cairnvale Park

Coleraine, BT51 3BP

offers in excess of £190,000
  • Status For Sale
  • Property Type Semi-Detached
  • Bedrooms 4
  • Receptions 1
  • Bathrooms 2
  • EPC Rating E52 / D68
  • Stamp Duty
    Higher amount applies when purchasing as buy to let or as an additional property
    £1,300 / £10,800*
  • Typical Mortgage
    Click price to use our mortgage calculator
EPC Rating

Key Features & Description

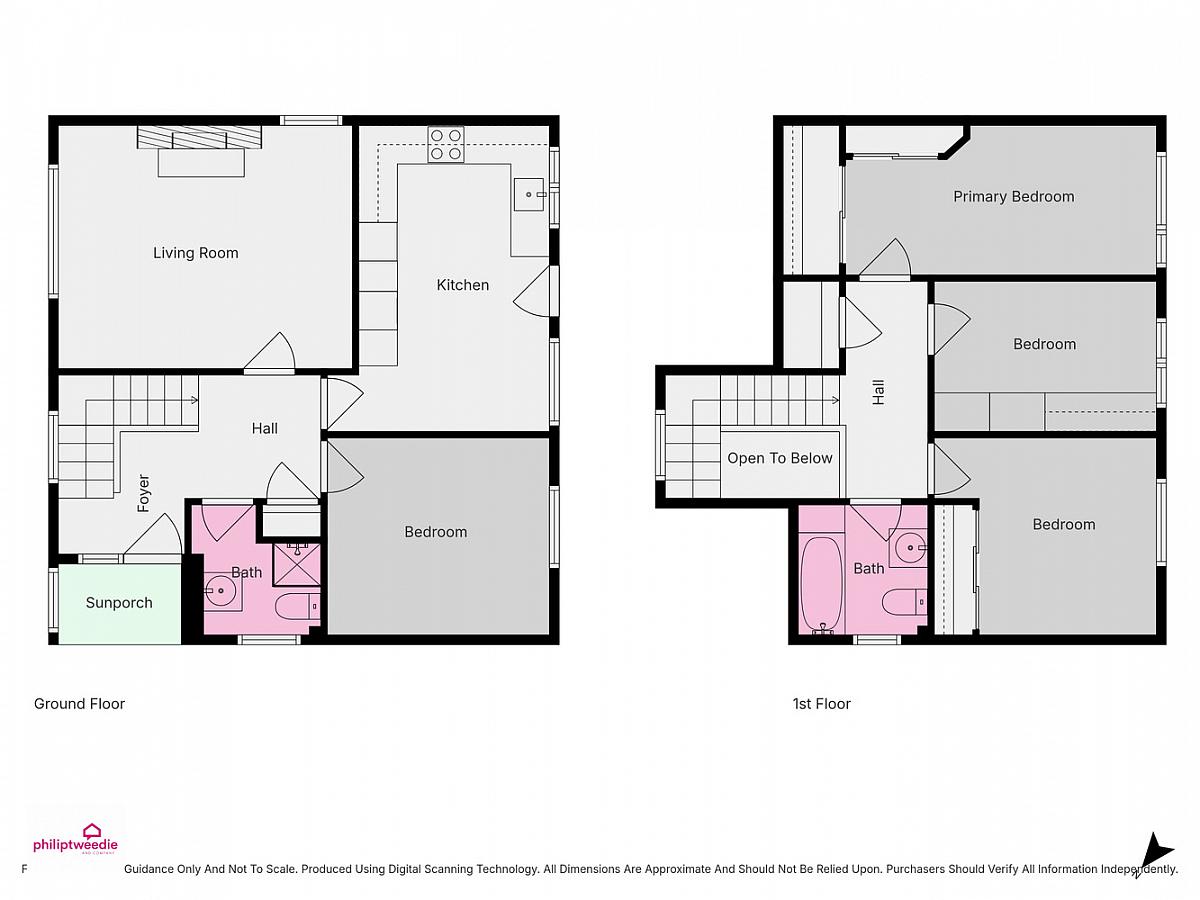
Property extends to approximately 1172 sqft
Can be used as four bedroom (one downstairs) with kitchen/ dining, lounge shower room and bathroom.
Could also be used as a three bedroom, living room, lounge, kitchen / dining shower room and bathroom
Stunning views to the front and side
Good condition throughout
Located at the end of a quiet cul-de-sac
Situated in the ever popular Ballycairn area of Coleraine
Private site south facing rear garden
Description
This semi detached property would make an excellent family home and boasts the most fantastic views to the front and side.  It could be used as a four bedroom, one reception room or a three bedroom, two reception room property. 
It would also be suitable for an older couple given that it contains a downstairs bedroom and shower room.
To the rear is a fully enclosed and south facing garden. To the front and main lounge are stunning views over the countryside and towards the River Bann.

Rooms

SUN PORCH PVC door, tiled floor, river and countryside views.
HALLWAY Glass panel door, under stair storage, telephone point,
LOUNGE (4.00m X 4.60m) Open fire tiled hearth wood surround, laminate wood floor, television and telephone point, river views.
KITCHEN/DINING ROOM (3.60m X 4.80m) Tiled floor, high and low level storage units, oven and hob, space for fridge freezer, plumbed for washing machine, composite sink and drainer unit.
BEDROOM 4 / LIVING ROOM (3.20m X 3.20m) Double room, laminate wood floor.
SHOWER ROOM Tiled floor, shower cubicle electric shower, pedestal wash hand basin, low flush WC.
FIRST FLOOR Carpeted hall and landing, access to attic, hot press and storage.
BEDROOM 1 (2.60m X 5.20m) Double room to rear, laminate wood floor, 2x sliding robes.
BEDROOM 2 (3.10m X 3.30m) Carpeted double room to rear, fitted mirrored sliding robe.
BEDROOM 3 (2.40m X 3.60m) Carpeted single room to rear, fitted desk, shelves and wardrobes
BATHROOM Pedestal wash hand basin, low flush WC, panelled bath.
EXTERNAL FEATURES Front garden in lawn Tarmac driveway to front and side Fully enclosed rear garden in patio and Mature, hedging, bushes and planting throughout the site
GARAGE (3.20m X 5.50m) Up and over door, sink and wash hand basin, lighting and power.

Broadband Speed Availability

Ultrafast

Potential Speeds for 14 Cairnvale Park

Max Download
2000
Mbps
Max Upload
2000
Mbps
The speeds indicated represent the maximum estimated fixed-line speeds as predicted by Ofcom. Please note that these are estimates, and actual service availability and speeds may differ.

Property Location

Show Map

Mortgage Calculator

Disclaimer: The following calculations act as a guide only, and are based on a typical repayment mortgage model. Financial decisions should not be made based on these calculations and accuracy is not guaranteed. Always seek professional advice before making any financial decisions.

Contact Agent

Contact Philip Tweedie & Company (Coleraine)

Contact Philip Tweedie & Company (Coleraine)

Request More Information
Requesting Info about...
14 Cairnvale Park, Coleraine, BT51 3BP 14 Cairnvale Park, Coleraine, BT51 3BP

By registering your interest, you acknowledge our Privacy Policy
Ask Holmes
Ask Holmes
Let's find your next home

Are you sure you want to reset the chat?

Checking API...