5 Bed Detached House
21C Loughan Road
Coleraine, BT52 1UB
asking price
£649,950
Key Features & Description
Superb Detached Family Home In An Idyllic Setting
Generous Accommodation Throughout
Five Bedrooms [ Four with Ensuites ]
Principal Bedroom with Dressing Room
Bedroom 5 Currently used as a Home Office
Beautiful Living Room With Feature Fireplace Overlooking River Bann And Landing Onto Upper Level Terrace
Stunning High Gloss Fitted Kitchen
Large Family Room Leading Onto Lower Level Terrace
Dining Hall
Utility Room
Additional Shower Room
Ample Off Street Parking To Front
Oil Fired Central Heating
Wired for music system throughout
Underfloor heating throughout
Laundry Room on Floor 3
Viewing By Private Appointment
Windows are composite of aluminium externally and timber internally
Spacious Rear Garden & Terrace Overlooking River Bann
Within Easy Reach Of Outer Ring - Coleraine Town Centre
Convenient To Leading Local Schools, Restaurants & Excellent Shopping Facilities
Description
Delightfully positioned on the berth of the River Bann, this superb detached home comes to the market and will appeal to those seeking to purchase a home within this idyllic location.
The spacious accommodation provides a five bedroom layout [ four with ensuites ], dining hall, kitchen open to living area, family room, utility room and additional shower room
Externally, there is ample outside space on the lower level terrace which leads to a generous garden in lawn that leads to the rivers edge
Benefitting from the seclusion of a picturesque location, Loughan Road enjoys being very convenient to Coleraine Town Centre, excellent local amenities and shopping facilities.
Early viewing is advised to appreciate this very striking family home.
Delightfully positioned on the berth of the River Bann, this superb detached home comes to the market and will appeal to those seeking to purchase a home within this idyllic location.
The spacious accommodation provides a five bedroom layout [ four with ensuites ], dining hall, kitchen open to living area, family room, utility room and additional shower room
Externally, there is ample outside space on the lower level terrace which leads to a generous garden in lawn that leads to the rivers edge
Benefitting from the seclusion of a picturesque location, Loughan Road enjoys being very convenient to Coleraine Town Centre, excellent local amenities and shopping facilities.
Early viewing is advised to appreciate this very striking family home.
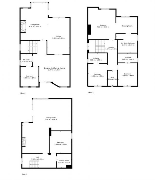
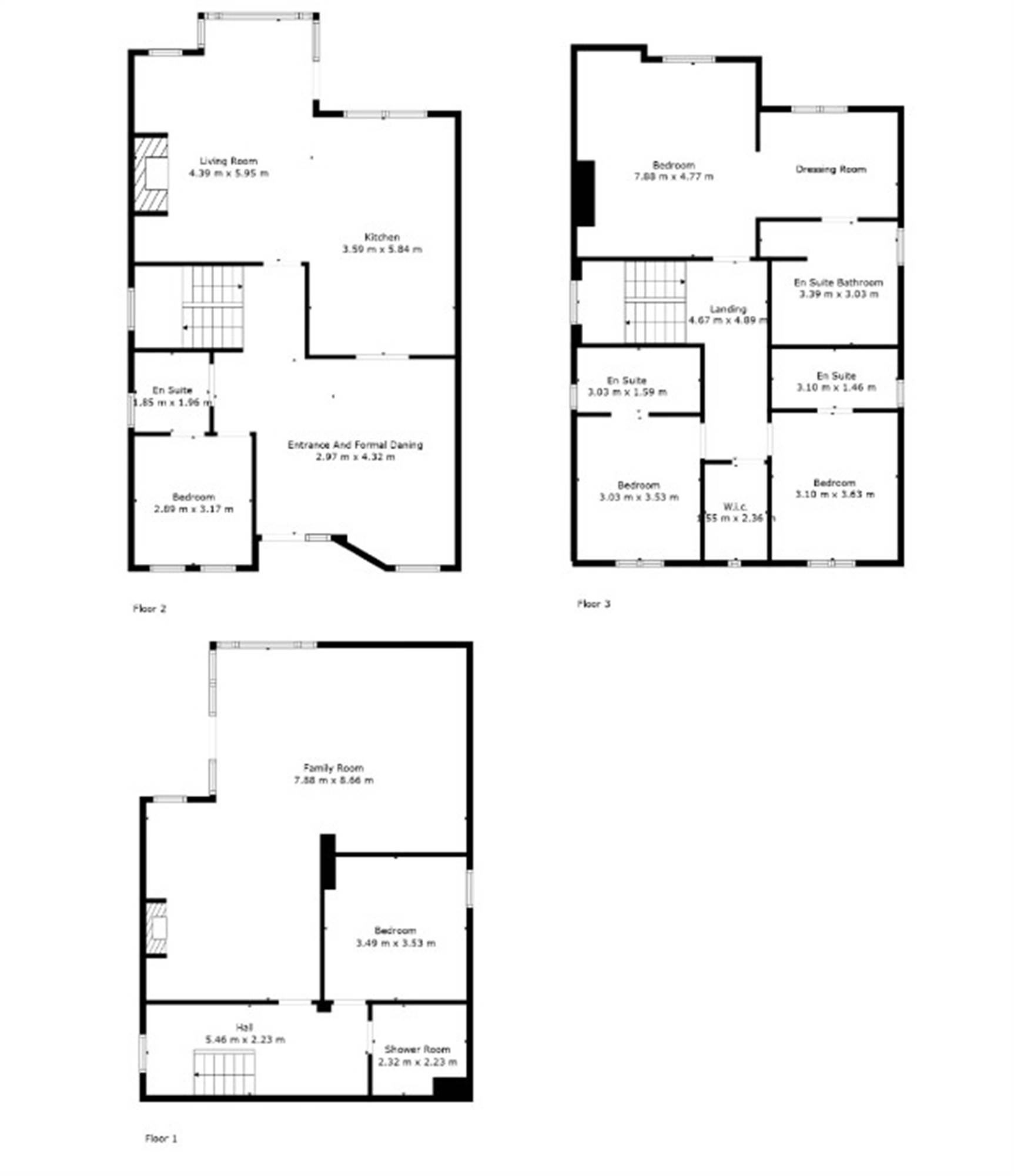
Rooms
DINING HALL: 19' 4" X 14' 2" (5.89m X 4.32m)
Hardwood Door to dining hall with marble flooring
BEDROOM / STUDY: 10' 4" X 10' 4" (3.15m X 3.15m)
ENSUITE:
Fully Tiled Shower Enclosure, low flush WC, wash hand basin
KITCHEN / LIVING: 25' 4" X 19' 4" (7.72m X 5.89m)
Kitchen - High and Low Level, Aga Range, Recess for Fridge Freezer, Central Island with inset sink, granite worktops, integrated dishwasher, marble flooring
Living Area - Attractive Feature Fireplace, marble flooring, access to rear patio
BEDROOM: 15' 5" X 14' 1" (4.70m X 4.29m)
Walnut flooring
DRESSING ROOM: 10' 2" X 8' 4" (3.10m X 2.54m)
ENSUITE:
Raised panelled bath, separate shower enclosure, low flush WC, twin wash hand basin vanity unit
BEDROOM: 11' 6" X 10' 2" (3.51m X 3.10m)
Oak flooring
ENSUITE:
White suite, panelled bath, mixer taps, telephone hand shower, low flush WC, wash hand basin
BEDROOM: 12' 0" X 10' 2" (3.66m X 3.10m)
Oak flooring
ENSUITE:
White suite, panelled bath, mixer taps, telephone hand shower, low flush WC, wash hand basin
FAMILY ROOM: 29' 8" X 26' 2" (9.04m X 7.98m)
Wood burning stove, oak flooring, access to patio
BEDROOM: 11' 6" X 11' 4" (3.51m X 3.45m)
Oak flooring
SHOWER ROOM:
Spacious gardens to rear with river views, lawns and patio, excellent driveway parking to front
Property Location
Mortgage Calculator
Directions
.
Contact Agent
Contact Simon Brien (South Belfast)
Request More Information
Requesting Info about...
21C Loughan Road, Coleraine, BT52 1UB
By registering your interest, you acknowledge our Privacy Policy
By registering your interest, you acknowledge our Privacy Policy