Contact Agent

Contact H A McIlrath & Sons Ltd

Contact H A McIlrath & Sons Ltd

4 Bed Farm House

53 Drumeil Road

Aghadowey, Coleraine, BT51 4AG

asking price £800,000
  • Status For Sale
  • Property Type Farm House
  • Bedrooms 4
  • Receptions 2
  • Bathrooms 1
  • Heating OFCH
  • EPC Rating E39 / B81
  • Stamp Duty
    Higher amount applies when purchasing as buy to let or as an additional property
    £30,000 / £70,000*
  • Typical Mortgage
    Click price to use our mortgage calculator
EPC Rating

Key Features & Description

VALUABLE 64 ACRE FARM
Description

This former Pedigree Pig Farm has road frontage and a short Private Lane. 



It is situated in a good Farming District about 4 Miles from Ballymoney



and 7 Miles from Kilrea / Coleraine.  It is a short distance from the River Bann, the Agivey River and the Brown Trout Golf Club.



In Lot 1 There are a number of Concrete Runways, which have Potential for Business use “Subject to Obtaining Planning”.



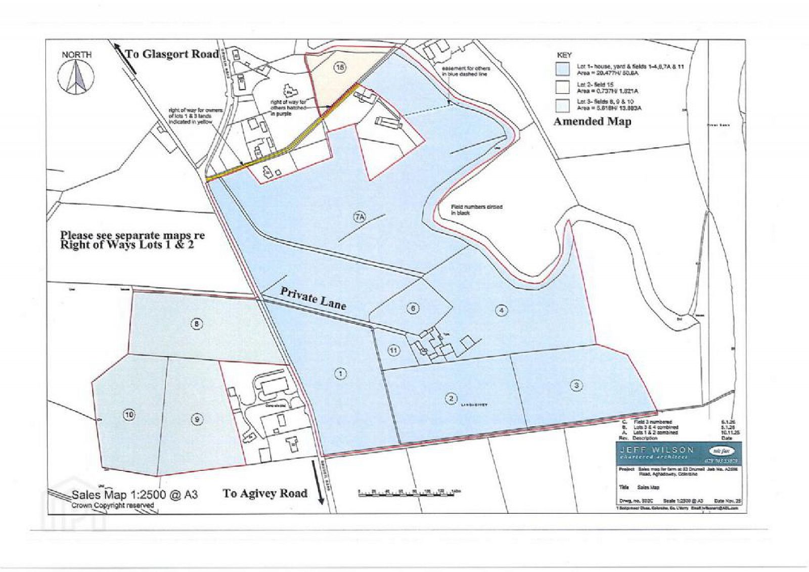
LOT 1



House, Yard and 46.12 Acres



This is a comfortable Family Home.  There is PVC Double Glazing and O.F.C.H.  



Accommodation



Ground Floor                                 



Front Porch                                      



Sitting Room           13’8” x  11’8”    Tiled Fireplace.



Living Room           18’6” x 11’4”     Tiled Fireplace.



Kitchen                   10’7” x 7’7”       H / L level Units. Hob. Ext. Fan. Eye Level Hotpoint Double Oven.



Bathroom               10’3” x 6’1”       Bath and Shower Cubicle



First Floor                                      



Bedroom 1              14’5” x 9’5”       Built in Robe.



Bedroom 2                 8’2” x 8’0”      



Bedroom 3              14’4” x 8’6”      



Bedroom 4               8’4” x 8’5”      



Walk in Hot-Press  



YARD



Hay Shed 45’ x 25’.                                                      



Lean To 45’ x 30’.



Slatted Cubicles 45’ x 25’



Silo 45’ x 30’



Large Garage 18’ x 22’



Large Garage 18’ x 14’



Range of former Piggeries and Outhouses suitable for Stables etc. has road frontage.



LAND



46.12 ACRES.



This comprises 17.36 Acres Cutting and Grazing Type Land and 22.37 Acres of useful Heavy Grazing. 6.39 Acres Runways approximately.



LOT 2



1.30 Acres Grazing



LOT 3



13.60 Acres.



3 Fields Cutting and Grazing.  The access to Lot 3 is via a roadside gate into Field 8.



The Farm can be sold in one or several Lots via the amended Map S02B



Tenure: Freehold                                                                                                      



Entitlements: ~ Non-Available



Solicitor: ~ McCallum O’Kane, Solicitors Coleraine



Viewing: ~ Appointment only.



LOT 1                     House, Yard and 46.12 Acres          £620,000



LOT 2                     1.30 Acres                                       £  15,000



LOT 3                     13.60 Acres                                     £165,000



GUIDE PRICE                                                               £800,000



Conditions of Sale



Interested parties should ask their solicitor to contact Trevour McCallum



 McCallum O’Kane, Solicitors, 5 Blindgate Street, Coleraine beforehand to check title etc.



On the day of sale, a Purchaser will sign an unconditional contract and pay a10% non-refundable deposit.



Interested parties will have to provide Proof of Funds and go through Money Laundering Procedures.



Money Laundering and Proof of Funds



Interested parties should come to our Office with this information prior to Thursday 23 April at 4pm



CLOSING DATE  FRIDAY 24 APRIL  AT 11 AM



IN  KILREA  LIVESTOCK  MART



(UNLESS PREVIOUSLY SOLD)



                         



 



 


Broadband Speed Availability

Ultrafast

Potential Speeds for 53 DRUMEIL ROAD

Max Download
10000
Mbps
Max Upload
10000
Mbps
The speeds indicated represent the maximum estimated fixed-line speeds as predicted by Ofcom. Please note that these are estimates, and actual service availability and speeds may differ.

Property Location

Show Map

Mortgage Calculator

Disclaimer: The following calculations act as a guide only, and are based on a typical repayment mortgage model. Financial decisions should not be made based on these calculations and accuracy is not guaranteed. Always seek professional advice before making any financial decisions.

Directions

From Kilrea take the Agivey Road the A54 signposted Coleraine. Farm 1 mile from the Brown Trout. Turn right at Star Fuels into Glasgort Road. Go half a mile and turn right into Drumeil Road. Farm on the left.

Contact Agent

Contact H A McIlrath & Sons Ltd

Contact H A McIlrath & Sons Ltd

Request More Information
Requesting Info about...
53 Drumeil Road, Aghadowey, Coleraine, BT51 4AG 53 Drumeil Road, Aghadowey, Coleraine, BT51 4AG

By registering your interest, you acknowledge our Privacy Policy