Site
Adj To 85 Mountsandel Road
Coleraine, BT52 1YD
offers over
£260,000
- Status Sale Agreed
- Property Type Site
-
Stamp Duty
Higher amount applies when purchasing as buy to let or as an additional property£3,000 / £16,000*
Description
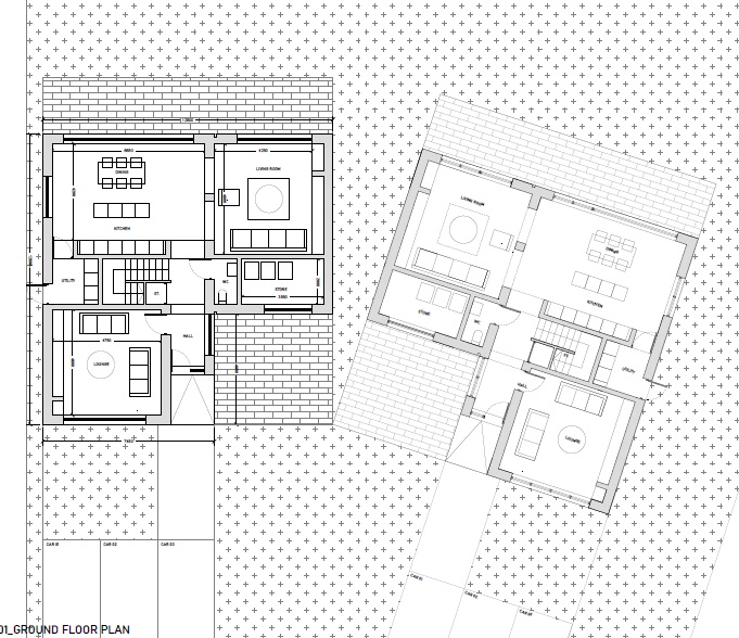
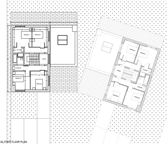
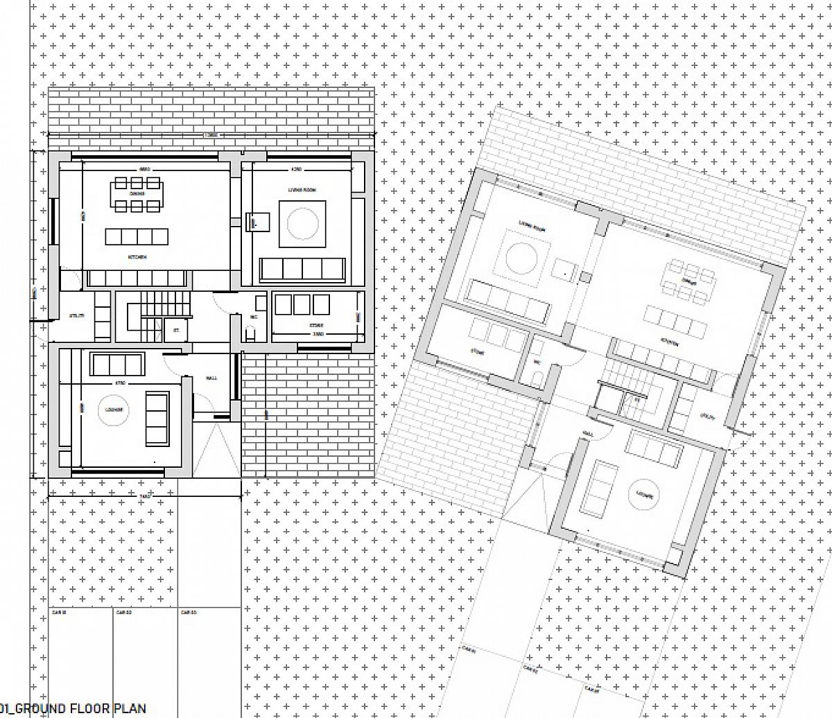
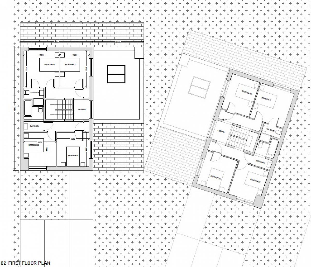
EXCLUSIVE DEVELOPMENT OPPORTUNITY - To acquire a site with full planning approval for 2 Detached Dwellings (c. 180 m² each) (Sites benefit from all required NI Water connections).
LOCATION:
The site is accessed via an existing tree-lined driveway just off the main Mountsandel Road on the periphery of Coleraine town centre and is within close proximity to local schools, shops, Causeway Hospital and conveniently located off the A26 leading to Ballymena / Belfast.
DESCRIPTION:
This is a superb opportunity to purchase a prime development site situated in the ever popular Mountsandel Road area of Coleraine. Rarely does the opportunity arise to purchase sites of this quality and location with easy access to town centre and all local amenities.
PLANNING:
The subject site has the benefit of full planning approval for 2 detached dwellings with shared access.
LA01/2021/0819/F
Approval for Pair of Detached Dwellings with shared access 29/04/2025
All NI Water connections have been approved.
LOCATION:
The site is accessed via an existing tree-lined driveway just off the main Mountsandel Road on the periphery of Coleraine town centre and is within close proximity to local schools, shops, Causeway Hospital and conveniently located off the A26 leading to Ballymena / Belfast.
DESCRIPTION:
This is a superb opportunity to purchase a prime development site situated in the ever popular Mountsandel Road area of Coleraine. Rarely does the opportunity arise to purchase sites of this quality and location with easy access to town centre and all local amenities.
PLANNING:
The subject site has the benefit of full planning approval for 2 detached dwellings with shared access.
LA01/2021/0819/F
Approval for Pair of Detached Dwellings with shared access 29/04/2025
All NI Water connections have been approved.
Property Location
Mortgage Calculator
Contact Agent
Contact Bensons
Request More Information
Requesting Info about...
Adj To 85 Mountsandel Road, Coleraine, BT52 1YD
By registering your interest, you acknowledge our Privacy Policy
By registering your interest, you acknowledge our Privacy Policy