6 Bed Detached Bungalow
56A Cashel Road, Macosquin
Macosquin, Coleraine, BT51 4NU
price
£420,000
- Status Sale Agreed
- Property Type Detached Bungalow
- Bedrooms 6
- Receptions 2
- Bathrooms 1
- Heating Underfloor Oil fired central heating (Zoned).
-
Stamp Duty
Higher amount applies when purchasing as buy to let or as an additional property£11,000 / £32,000*
Key Features & Description
Underfloor Oil fired central heating (Zoned).
Bespoke fitted Luxury Kitchen and Utility.
Pressurized hot water system.
Tiled flooring throughout.
Beautifully designed 6 bedroom home with a six year warranty.
PVC composite front door.
High energy rating uPVC Grey double glazed windows.
Recessed energy efficient LED downlighters to ceilings.
Molded skirting and architraves with painted finish.
Black Fascia, soffits, seamless guttering and downlighters.
Traditional solid block construction with high quality sound proofing specification to flooring, roof and walls etc.
Tarmac driveway and pavior brick areas.
Description
Located just off the Cashel road, this new build detached home offers an enticing blend of modern comfort, rural tranquility, and boundless opportunities. Upon entering the home, you're greeted by a bright and airy living space with the interior exuding warmth and style, with tasteful décor and modern finishes throughout. The open-plan living area seamlessly connects dining room, Sun room and kitchen, creating an inviting space for family gatherings and entertaining. Luxury kitchen to be fitted with feature island, polished Granite kitchen worktops, upstands and window sill, Undermount sink with Franke mixer tap. The craftsmanship, thought and attention to detail are notable internally and externally, enhancing the beautiful ambience of the property. A timeless home that will maintain its appeal for many years to come.
Located just off the Cashel road, this new build detached home offers an enticing blend of modern comfort, rural tranquility, and boundless opportunities. Upon entering the home, you're greeted by a bright and airy living space with the interior exuding warmth and style, with tasteful décor and modern finishes throughout. The open-plan living area seamlessly connects dining room, Sun room and kitchen, creating an inviting space for family gatherings and entertaining. Luxury kitchen to be fitted with feature island, polished Granite kitchen worktops, upstands and window sill, Undermount sink with Franke mixer tap. The craftsmanship, thought and attention to detail are notable internally and externally, enhancing the beautiful ambience of the property. A timeless home that will maintain its appeal for many years to come.
Rooms
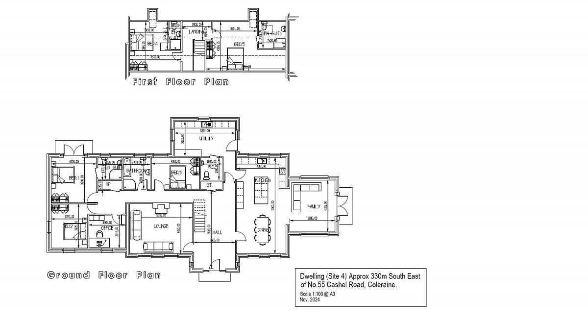
Large Spacious Entrance Hall
With tiled floor, cloakroom, hot press and access into extensive roof space. (maybe suitable for conversion subject to planning).
Lounge (4.42m X 5.54m)
With tiled floor, provision for fireplace and recessed ceiling lighting.
Kitchen/Dining/Living Area:
With range eye & low level solid wood painted units, polished Kashmir white granite worktops with upstands/window sill, double butler style sink unit with "Frankie Eiger" mixer tap, tiled floor, space for range style cooker with built in extractor fan overhead, pull out double bin/recycling bin, space and plumbed for dishwasher, fitted bespoke pantry unit with shelving and spice racks.
Sunroom (4.17m X 4.67m)
With TV point, recessed lighting, tiled floor and French doors leading to paviour brick area to side.
Back Porch/Utility Room. (3.20m X 5.26m)
With range of eye & low level units, polished Kashmir white granite worktops with upstands, "Range Master" butler style sink unit with pull out drawer underneath, tiled flooring space for washing machine & tumble dryer, "Aspen" monks bench style fitted seat with coat hooks over head, separate WC, wash hand basin and tiled floor.
Main Bedroom (4.01m X 4.01m)
With tiled flooring, French doors and en-suite.
Bedroom 2 (3.17m X 3.89m)
With tiled flooring.
Bedroom 3/Office (2.87m X 3.23m)
With tiled flooring.
Bedroom 4 (2.79m X 4.14m)
With tiled flooring.
Family Bathroom
With provision for wash hand basin, bath, wc and shower.
First Floor Landing
Bedroom 5 (5.74m X 6.93m)
With en-suite.
Bedroom 6 (4.42m X 4.47m)
With en-suite.
Exterior
Property surrounded by a paviour brick pathways with patio area. Property shall be approached by a Tarmac driveway with ample parking.
Broadband Speed Availability
Potential Speeds for 56a Cashel Road, Macosquin
Max Download
1000
Mbps
Max Upload
300
MbpsThe speeds indicated represent the maximum estimated fixed-line speeds as predicted by Ofcom. Please note that these are estimates, and actual service availability and speeds may differ.
Property Location
Mortgage Calculator
Contact Agent
Contact Bensons
Request More Information
Requesting Info about...
56A Cashel Road, Macosquin, Macosquin, Coleraine, BT51 4NU
By registering your interest, you acknowledge our Privacy Policy
By registering your interest, you acknowledge our Privacy Policy