Land
Site Adj To 61 Killyvalley Road
Garvagh, Coleraine, BT51 5NY
offers over
£60,000
- Status For Sale
- Property Type Land
-
Stamp Duty
Higher amount applies when purchasing as buy to let or as an additional property£0 / £3,000*
Key Features & Description
Rural Building Plot
Hamlet Location
Chalet Bungalow Design
Exceptional Views
Commuter Friendly
Approximately 0.3 Acre Plot
Approximately 2700sq. ft Design
Description
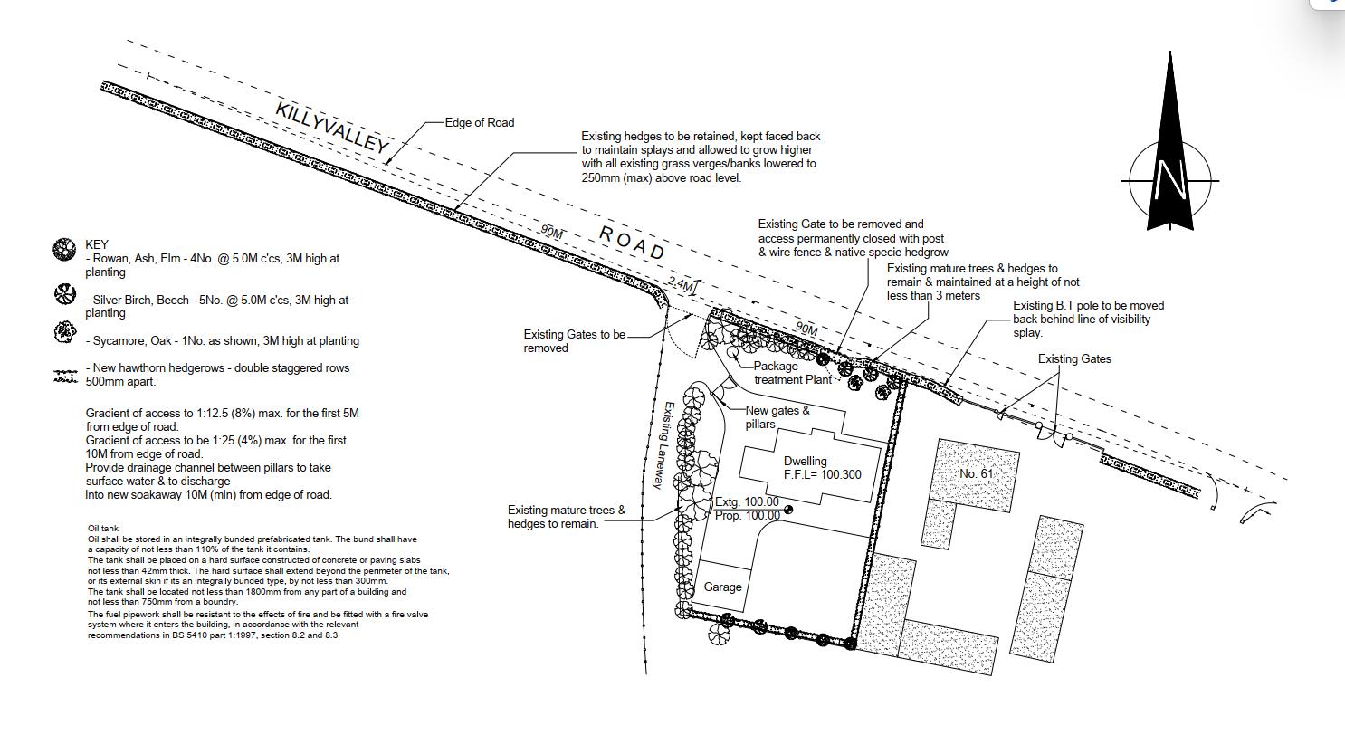
A mature rural building plot extending to approximately 0.3 acres and passed for a chalet design that will
provide approximately 2700 sq. ft. of accommodation.
A pleasant rural building plot in a hamlet style setting, benefitting from exceptional views into the valley.
The site has a gently sloping topography with a private frontage and access via short lane/driveway.
The chalet design is somewhat unique these days and will afford a lot of versatility to the build
options.
The site is located midway between Garvagh and Kilrea providing a very commuter friendly
opportunity with access to the main commuter routes east and west of the River Bann.
This is a wonderful opportunity for those seeking a self build option with all services at hand.
A mature rural building plot extending to approximately 0.3 acres and passed for a chalet design that will
provide approximately 2700 sq. ft. of accommodation.
A pleasant rural building plot in a hamlet style setting, benefitting from exceptional views into the valley.
The site has a gently sloping topography with a private frontage and access via short lane/driveway.
The chalet design is somewhat unique these days and will afford a lot of versatility to the build
options.
The site is located midway between Garvagh and Kilrea providing a very commuter friendly
opportunity with access to the main commuter routes east and west of the River Bann.
This is a wonderful opportunity for those seeking a self build option with all services at hand.
Property Location

Mortgage Calculator
Contact Agent

Contact AMG Property
Request More Information
Requesting Info about...
Site Adj To 61 Killyvalley Road, Garvagh, Coleraine, BT51 5NY
By registering your interest, you acknowledge our Privacy Policy

By registering your interest, you acknowledge our Privacy Policy