Retail
38 Railway Road
Coleraine, BT52 1PE
yearly
£11,750
- Status For Rent
- Property Type Retail
Key Features & Description
Electric Heating
Partial Wooden Double Glazed Windows
Prime Town Centre Location
Deceptively Large Storage Capacity
Option To Negotiate First Floor Space
Town Centre Location
Part Of A Recently Refurbished Building
Exterior Of Building Recently Repainted
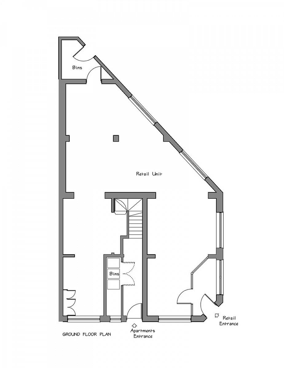
Description
Armstrong Gordon are delighted to offer for let this substantial commercial premises situated in the heart of Coleraine town centre, occupying ground floor (street level) and basement level. First floor office space is also available by separate negotiation. The current layout comprises a mix of open plan space with reception area and bin storage area. In recent years the property has been refurbished to include new frontage, windows, internal and external decoration. These premises are suitable for a variety of uses providing a range of opportunities to a wide spectrum of potential clients.
Armstrong Gordon are delighted to offer for let this substantial commercial premises situated in the heart of Coleraine town centre, occupying ground floor (street level) and basement level. First floor office space is also available by separate negotiation. The current layout comprises a mix of open plan space with reception area and bin storage area. In recent years the property has been refurbished to include new frontage, windows, internal and external decoration. These premises are suitable for a variety of uses providing a range of opportunities to a wide spectrum of potential clients.
Rooms
GROUND FLOOR/STREET LEVEL PREMISES:
Main Retail Space:
468 x 3611 overall including hallway entrances to first floor and basement level.
LOWER GROUND/BASEMENT LEVEL:
Cellar:
Accessed off communal entrance hallway.
Comprising 3 separate store rooms, kitchen and bathroom facilities.
This basement area would be suitable for use as storage.
Please note that this space can also be let independently from the ground floor unit as it has its own access.
FIRST FLOOR:
Available by separate negotiation.
Currently comprises 6 separate offices.
Rates Reduction:
Finance Minister Conor Murphy has launched a revamped, more generous Back In Business rates scheme offering businesses a 50% discount for up to two years for occupation of a vacant shop unit.
Broadband Speed Availability
Potential Speeds for 38 Railway Road
Max Download
1000
Mbps
Max Upload
300
MbpsThe speeds indicated represent the maximum estimated fixed-line speeds as predicted by Ofcom. Please note that these are estimates, and actual service availability and speeds may differ.
Property Location
Directions
In Coleraine town centre, follow the one way system and proceed to the top of Union Street where you turn right onto Railway Road. No. 38 will be located on your right hand side on the corner of Circular Road.
Contact Agent
Contact Armstrong Gordon & Co
Request More Information
Requesting Info about...
38 Railway Road, Coleraine, BT52 1PE
By registering your interest, you acknowledge our Privacy Policy
By registering your interest, you acknowledge our Privacy Policy