Contact Agent

Contact Armstrong Gordon & Co

Contact Armstrong Gordon & Co

Site

Site 25M South-East Of 'River Cottage', 173 Loughan Road

173 Loughan Road, Coleraine, BT52 1UD

offers over £150,000
  • Status For Sale
  • Property Type Site
  • Stamp Duty
    Higher amount applies when purchasing as buy to let or as an additional property
    £500 / £8,000*
  • Typical Mortgage
    Click price to use our mortgage calculator

Key Features & Description

Services Available Adjacent To Site
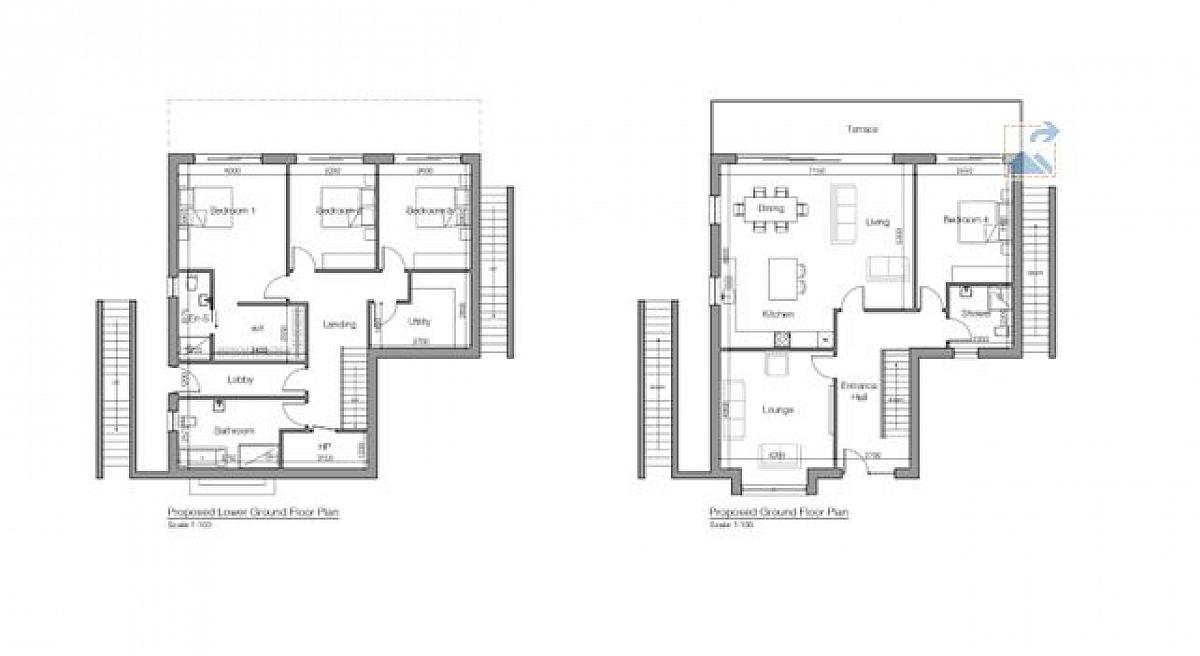
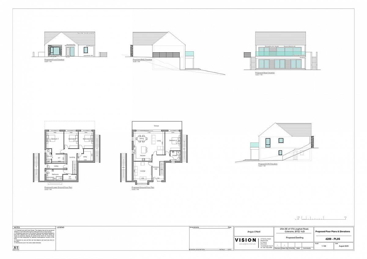
Full Planning Submitted Under Ref LA01/2025/0855/RM
Outline Planning Granted (Full Conditions In Approval) Available From Agent
Site Survey Drawing Available From Agent
Finish To Site Boundary To Be Negotiated
Ability To Contact Irish Society Re Planning Of A Jetty At Bottom Of Garden
Description
A beautiful site with outline planning permission for a detached dwelling with a full application submitted(with a possibility of two semi-detached dwellings, subject to the necessary statutory approvals and consents). Located beside St. Paul's Church of Ireland Church, this conveniently located site is within the Loughan village and benefits from very scenic views of the River Bann with the site fully extending down to the banks.

Property Location

Show Map

Mortgage Calculator

Disclaimer: The following calculations act as a guide only, and are based on a typical repayment mortgage model. Financial decisions should not be made based on these calculations and accuracy is not guaranteed. Always seek professional advice before making any financial decisions.

Directions

Heading out of Coleraine on the Mountsandel Road you will eventually lead onto the Loughan Road. As you drive through Loughan village No. 173A will be located on your right hand side before St Paul's Church of
Ireland Church. The subject site will be to the left of the property leading down to the River Bann.

Contact Agent

Contact Armstrong Gordon & Co

Contact Armstrong Gordon & Co

Request More Information
Requesting Info about...
Site 25M South-East Of River Cottage, 173 Loughan Road, 173 Loughan Road, Coleraine, BT52 1UD Site 25M South-East Of River Cottage, 173 Loughan Road, 173 Loughan Road, Coleraine, BT52 1UD

By registering your interest, you acknowledge our Privacy Policy
Ask Holmes
Ask Holmes
Let's find your next home

Are you sure you want to reset the chat?

Checking API...