Contact Agent

Contact Connor Harte

Contact Connor Harte

Site

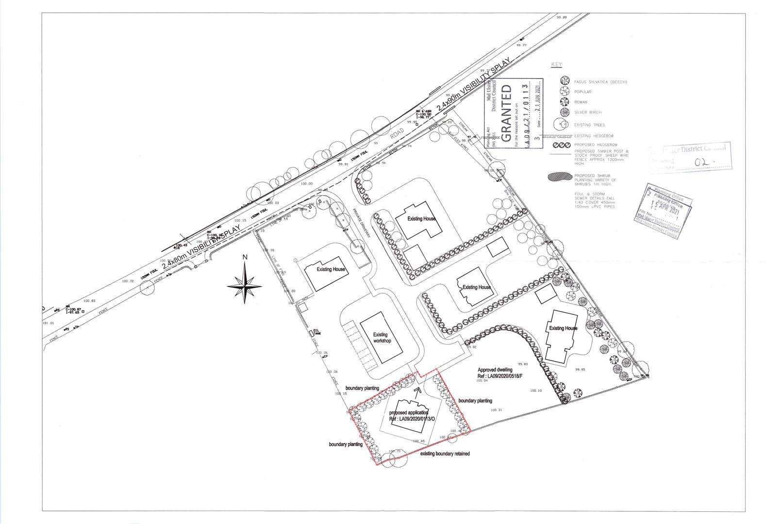
Building Site, 50M South Of 121 Washingbay Road

Coalisland, BT71 4QE

price £65,000
  • Status For Sale
  • Property Type Site
  • Interior Area 231 sqft
  • Stamp Duty
    Higher amount applies when purchasing as buy to let or as an additional property
    £0 / £3,250*
  • Typical Mortgage
    Click price to use our mortgage calculator

Key Features

Building Site
Outline Planning Permission Granted
Set on c 0.3 Acres
Easy access to M1 Motorway (Junction 14)
Services within close proximity of site

Property Location

Show Map

Mortgage Calculator

Disclaimer: The following calculations act as a guide only, and are based on a typical repayment mortgage model. Financial decisions should not be made based on these calculations and accuracy is not guaranteed. Always seek professional advice before making any financial decisions.

Contact Agent

Contact Connor Harte

Contact Connor Harte

Request More Information
Requesting Info about...
Building Site, 50M South Of 121 Washingbay Road, Coalisland, BT71 4QE Building Site, 50M South Of 121 Washingbay Road, Coalisland, BT71 4QE

By registering your interest, you acknowledge our Privacy Policy