Contact Agent
Contact Templeton Robinson (Ballyhackamore)
5 Bed Detached House
57 Kensington Road
Cherryvalley, Belfast, BT5 6NL
monthly
£2,750pm
Property Financials
- Monthly £2,750pm
- Rates Inc rates
- Lease 12 Months Plus
Key Features & Description
**Unfurnished rental property**
Impressive three storey detached residence extending to circa 3,200 sqft
£2750 per month including rates
Lounge with feature fireplace and bay window
Kitchen with Quartz worktop and centre island, open to...
Spacious living/dining area with wood burning stove and sky lights
Separate utility room/Ground floor WC
Principal bedroom with ensuite and dressing area
Four additional bedrooms, one with ensuite, plus study
Family bathroom plus second floor shower room
Gas central heating/Underfloor heating to ground floor
Secure gated entrance leading to paviour driveway parking for two cars
Private and enclosed rear garden with impressive custom built BBQ area
Walking distance to local shops, cafes and Shamdon Golf Club
Available 1st December 2025 & offered UNFURNISHED
Description
Welcome to this stunning detached modern family residence tucked away in a private, gated setting. Extending to circa 3,200 sqft, this property offers thoughtfully designed living space across three floors.
Of particular note is the impressive open plan kitchen/living/dining area with access to rear garden and custom built BBQ area, ideal for entertaining.
Kensington Road is positioned in the heart of Cherryvalley, one of the most sought after and prestigious residential locations in Belfast. With its tranquil surroundings and strong community feel, the property is within walking distance of local shops, cafes and Shandon Park Golf Club.
Leading locals schools, Ballyhackamore village and Stormont estate are only a five minute drive away.
Welcome to this stunning detached modern family residence tucked away in a private, gated setting. Extending to circa 3,200 sqft, this property offers thoughtfully designed living space across three floors.
Of particular note is the impressive open plan kitchen/living/dining area with access to rear garden and custom built BBQ area, ideal for entertaining.
Kensington Road is positioned in the heart of Cherryvalley, one of the most sought after and prestigious residential locations in Belfast. With its tranquil surroundings and strong community feel, the property is within walking distance of local shops, cafes and Shandon Park Golf Club.
Leading locals schools, Ballyhackamore village and Stormont estate are only a five minute drive away.
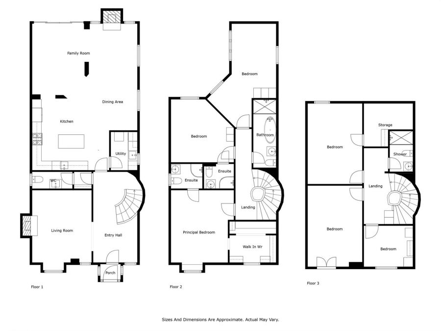
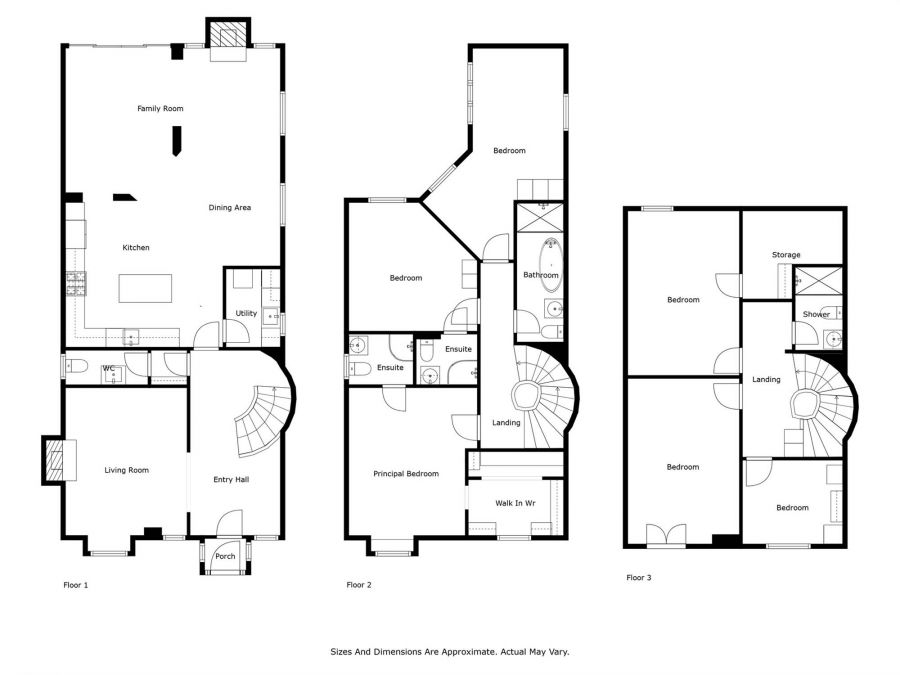
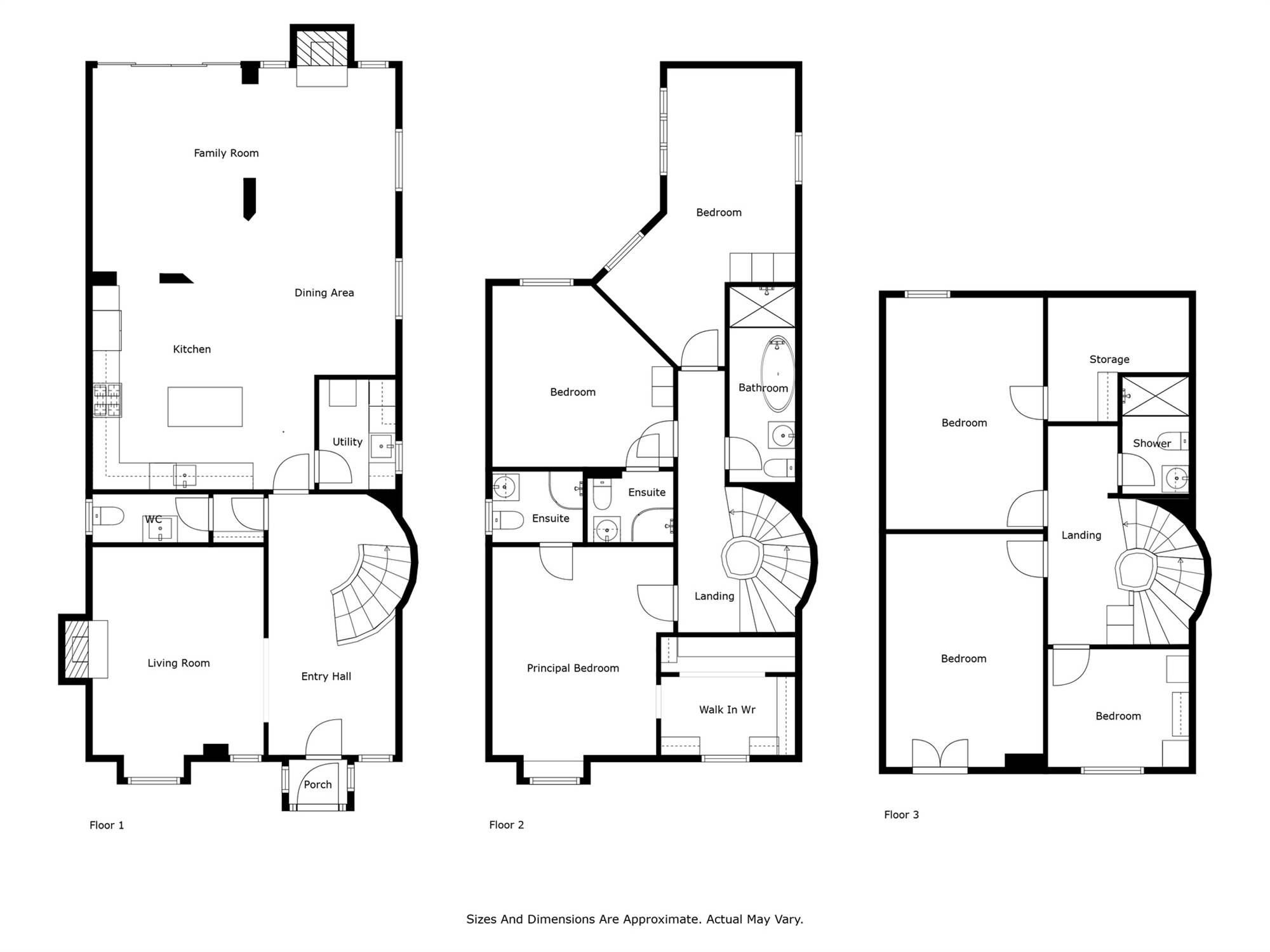
Rooms
Hardwood front door to:
ENTRANCE PORCH:
Tiled floor, glazed door to:
ENTRANCE HALL:
Tiled floor, cloaks area, leading to:
DOWNSTAIRS W.C.:
White suite comprising low flush wc, wash hand basin, tiled floor, part tiled walls, chrome heated towel rail.
LOUNGE: 16' 9" X 12' 10" (5.11m X 3.91m)
(into bay). Feature fireplace with granite surround and hearth, gas coal effect fire.
KITCHEN / LIVING / DINING: 31' 4" X 22' 5" (9.55m X 6.83m)
Modern fitted kitchen with range of hig hand low level units, stainless steel sink unit, quartz work surfaces. Alcove for cooker, stainless steel splashback, stainless steel extractor hood, integrated dishwasher, centre island with breakfast bar area, low voltage spotlights, open plan to:
LIVING/DINING AREA: Feature skylights, patio doors to rear, stone surround fireplace with wood burning stove and granite hearth, feature wood panelled walls, tiled floor, low voltage spotlights.
UTILITY ROOM: 7' 9" X 5' 5" (2.36m X 1.52m)
Stainless steel sink unit, plumbed for washing machine, tiled floor, gas boiler.
PRINCIPAL BEDROOM: 16' 9" X 12' 11" (5.11m X 3.94m)
(into bay).
DRESSING ROOM: 9' 9" X 8' 5" (2.97m X 2.57m)
ENSUITE SHOWER ROOM:
White suite comprising low flush wc, fully tiled shower cubicle, wash hand basin, part tiled walls, tiled floor, chrome heated towel rail, low voltage spotlights.
BEDROOM (2): 22' 1" X 12' 11" (6.73m X 3.94m)
(at widest points). Feature vaulted ceiling.
BEDROOM (3): 13' 3" X 13' 0" (4.04m X 3.96m)
(at widest points).
ENSUITE SHOWER ROOM:
White suite comprising wash hand basin, low flush wc, fully tiled shower cubicle, chrome heated towel rail, part tiled walls, tiled floor.
BATHROOM:
Modern white suite comprising free standing roll top bath, walk-in shower with rain head and telephone hand shower, low flush wc, tiled floor, fully tiled walls, chrome heated towel rail.
BEDROOM (4): 17' 5" X 12' 3" (5.31m X 3.73m)
Glazed double doors to Juliette balcony. Access to roofspace.
BEDROOM (5): 16' 9" X 12' 3" (5.11m X 3.73m)
Velux windows, access to:
STORAGE ROOM:
Low voltage spotlights.
BEDROOM (6)/STUDY: 9' 9" X 8' 0" (2.97m X 2.44m)
SHOWER ROOM:
White suite comprising low flush wc, pedestal wash hand basin, walk-in shower, part tiled walls, tiled floor, Velux window.
FRONT:
Secure gated entrance leading to two parking spaces.
REAR:
Private and enclosed rear garden with artificial lawn and patio seating area. Covered barbecue area with built-in charcoal barbecue and electric sockets, storage, tap and light.
KENSINGTON LODGE LTD:
Management Fees: £200 per quarter.
Broadband Speed Availability
Potential Speeds for 57 Kensington Road
Max Download
1800
Mbps
Max Upload
220
MbpsThe speeds indicated represent the maximum estimated fixed-line speeds as predicted by Ofcom. Please note that these are estimates, and actual service availability and speeds may differ.
Property Location
Directions
From the Kings Road, turn onto Gilnahirk Road. Take fourth right onto Kensington Road. Property is on the left.
Contact Agent
Contact Templeton Robinson (Ballyhackamore)
Request More Information
Requesting Info about...
57 Kensington Road, Cherryvalley, Belfast, BT5 6NL
By registering your interest, you acknowledge our Privacy Policy
By registering your interest, you acknowledge our Privacy Policy