Site
Building Site 25M East Of 62 Ballywoodock Road
Castlerock, BT51 4SL
offers over
£69,500
- Status For Sale
- Property Type Site
-
Stamp Duty
Higher amount applies when purchasing as buy to let or as an additional property£0 / £3,475*
- Tenure Freehold
Key Features & Description
Outline Planning Permission Granted Ref LA01/2023/0583/0
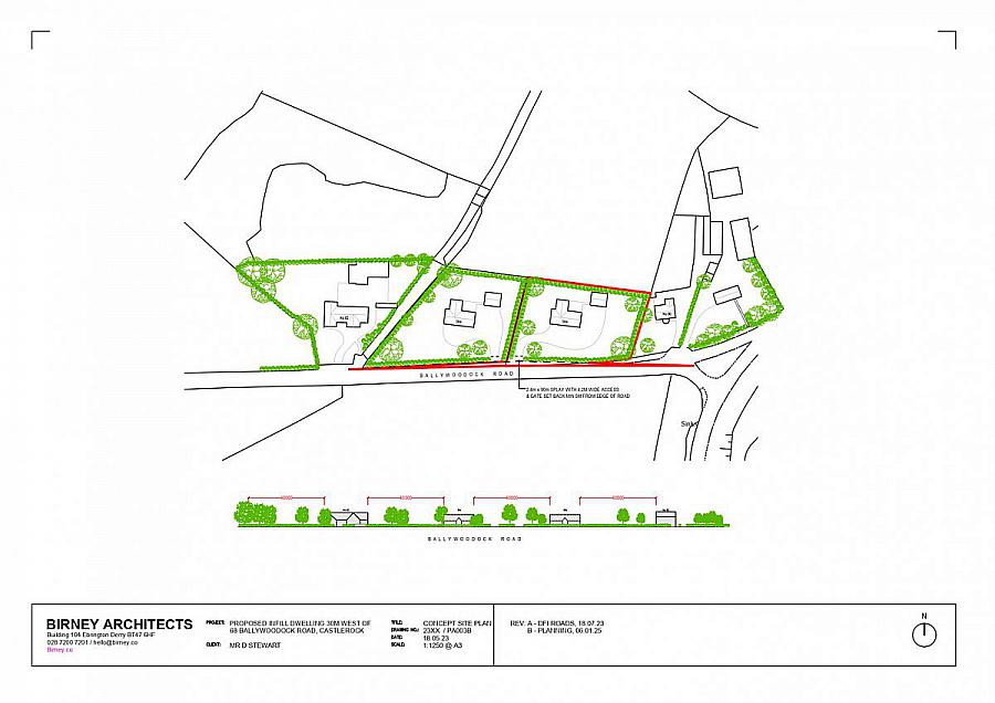
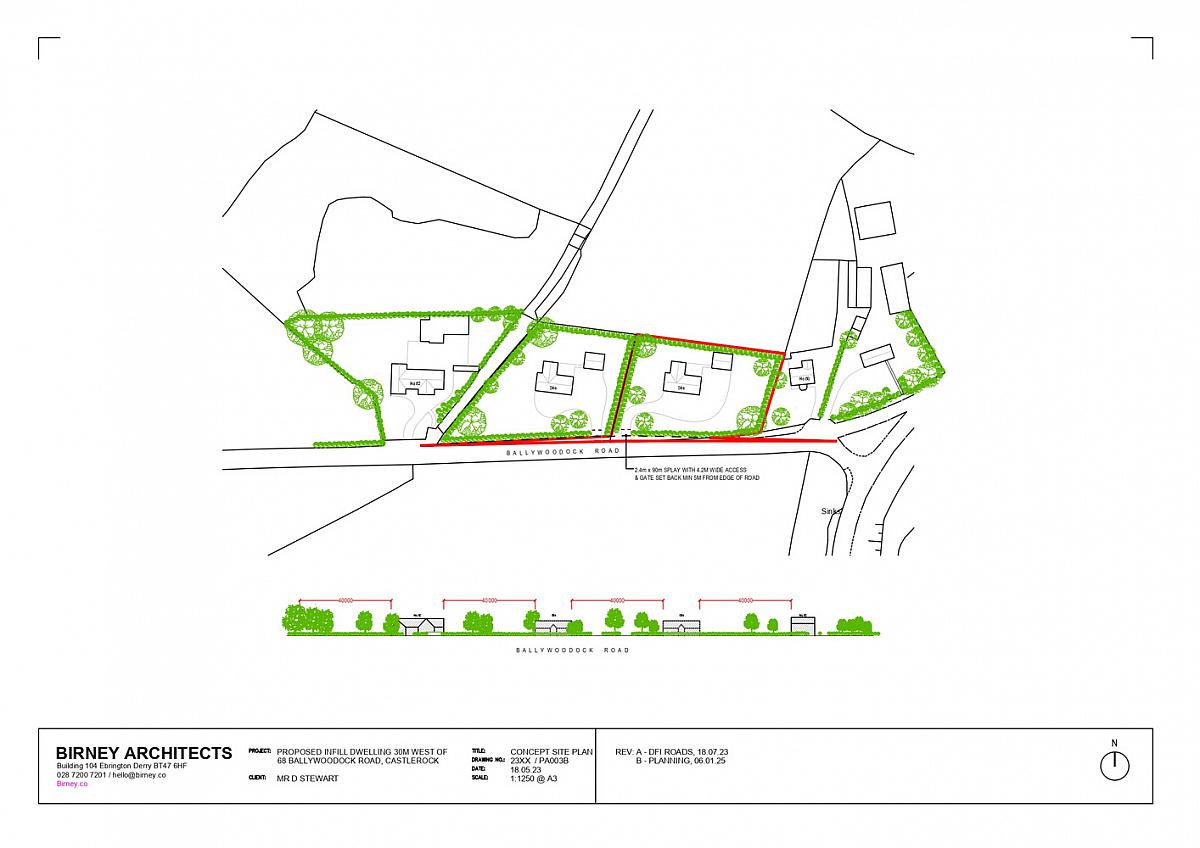
Permission For Single Storey Dwelling With Ridge Height of 5.5 Above FFL
Visibility Splays In Place
Approx 0.65 Acre
Soakaway Included
Electric Available In Field Opposite
Description
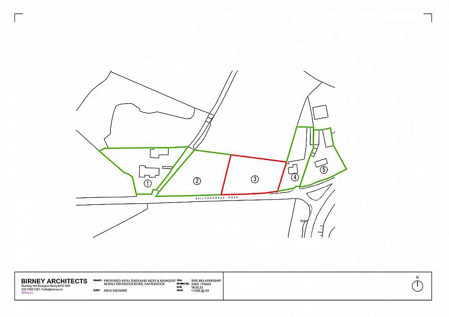
An excellent opportunity to acquire a spacious building site extending to approximately 0.65 acres in a highly desirable location just outside Castlerock. Positioned approximately 25 metres east of 62 Ballywoodock Road, this attractive plot offers both privacy and convenience, with the North Coasts beaches, golf, and village amenities all within easy reach.
The site benefits from planning approval for a single-storey bungalow extending to approximately 160 sq. m, making it ideal for those seeking to build a high-quality, bespoke home in a peaceful semi-rural setting. The generous site area provides ample scope for landscaping, gardens and outdoor living space.
An excellent opportunity to acquire a spacious building site extending to approximately 0.65 acres in a highly desirable location just outside Castlerock. Positioned approximately 25 metres east of 62 Ballywoodock Road, this attractive plot offers both privacy and convenience, with the North Coasts beaches, golf, and village amenities all within easy reach.
The site benefits from planning approval for a single-storey bungalow extending to approximately 160 sq. m, making it ideal for those seeking to build a high-quality, bespoke home in a peaceful semi-rural setting. The generous site area provides ample scope for landscaping, gardens and outdoor living space.
Property Location
Mortgage Calculator
Directions
Leave Coleraine heading towards Castlerock on the A2 (Castlerock Road). Continue on the A2 for approximately 5 miles following signs for Castlerock. On entering the wider Castlerock area, turn onto Ballywoodock Road (local signage posted). Continue along Ballywoodock Road past No. 62. The building site is located approximately 25 metres east of No. 62 Ballywoodock Road and will be identifiable by agent signage (if erected).
Contact Agent
Contact Armstrong Gordon & Co
Request More Information
Requesting Info about...
Building Site 25M East Of 62 Ballywoodock Road, Castlerock, BT51 4SL
By registering your interest, you acknowledge our Privacy Policy
By registering your interest, you acknowledge our Privacy Policy