Contact Agent

Contact Simon Brien (East Belfast)

Contact Simon Brien (East Belfast)

Site

Site Adjacent To

9-11 Lisleen Road, Gransha, BT23 5QD

price £225,000
  • Status For Sale
  • Property Type Site
  • Stamp Duty
    Higher amount applies when purchasing as buy to let or as an additional property
    £2,000 / £13,250*
  • Typical Mortgage
    Click price to use our mortgage calculator

Description

I want to separate the Lot 3 form this property and sell it separately with its own registration and brochure etc. Same vendor as above

Price £245,000

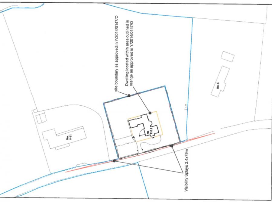
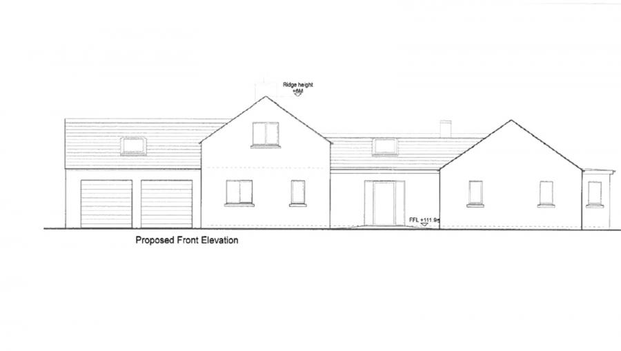
0.92 acre building site with Full Planning Permission situated fronting the Lisleen Road (LA05/2020/0300/RM), with direct access from the Lisleen Road. The design of the property can be amended through further applications to suit a potential purchaser. The site benefits form a rural setting in very close proximity to Belfast. Also, site lines are in place and an entrance formed.

All in all a stunning site surrounded by open countryside and yet withing easy access to Belfast and beyond.

Property Location

Show Map

Mortgage Calculator

Disclaimer: The following calculations act as a guide only, and are based on a typical repayment mortgage model. Financial decisions should not be made based on these calculations and accuracy is not guaranteed. Always seek professional advice before making any financial decisions.

Contact Agent

Contact Simon Brien (East Belfast)

Contact Simon Brien (East Belfast)

Request More Information
Requesting Info about...
Site Adjacent To, 9-11 Lisleen Road, Gransha, BT23 5QD Site Adjacent To, 9-11 Lisleen Road, Gransha, BT23 5QD

By registering your interest, you acknowledge our Privacy Policy
Ask Holmes
Ask Holmes
Let's find your next home

Are you sure you want to reset the chat?

Checking API...