6 Bed Detached House
Hillview Cottage , 9-11 Lisleen Road
Gransha, Castlereagh, BT23 5QD
asking price
£925,000
Key Features & Description
Spacious Detached Residence of Approximately 7,500 sq ft, Set On A Private Site Measuring c.1acre
Views to the rear over surrounding gardens and countryside
Adaptable and expansive accommodation laid out over two floors
Four principal reception rooms
Open plan kitchen, dining area leading to balcony terrace
Six bedrooms all with ensuite shower rooms and built in robes
Family bathroom opening onto balcony
Large Swimming Pool and changing Room facilities with sliding doors opening onto rear patio
Games Room with multiple uses including Gym, Office or Cinema Room
Large Triple garage with additional boiler room to side
Separate Stable Block
Mature and landscaped gardens surrounding the property with views across the surrounding countryside to Strangford Lough
Multiple patio areas for entertaining
Oil Fired Central Heating and Double Glazing
Lot 2 Agricultural Land 15.7 acres
Description
LOT 1 House and Gardens £925,000
Conveniently located in the Castlereagh Hills just 15 minutes drivetime from Belfast City Centre, we are delighted to offer this ideal opportunity to purchase a spacious detached family home offering all the benefits of country living, yet still convenient to a mass of local amenities and schools within easy reach.
Set on a large site measuring circa 1 acre the property offers spacious grounds with mature gardens surrounding the property. This deceptive family home offers adaptable and expansive accommodation is laid out over two floors extending to approximately 7,500 sqft including the triple garage.
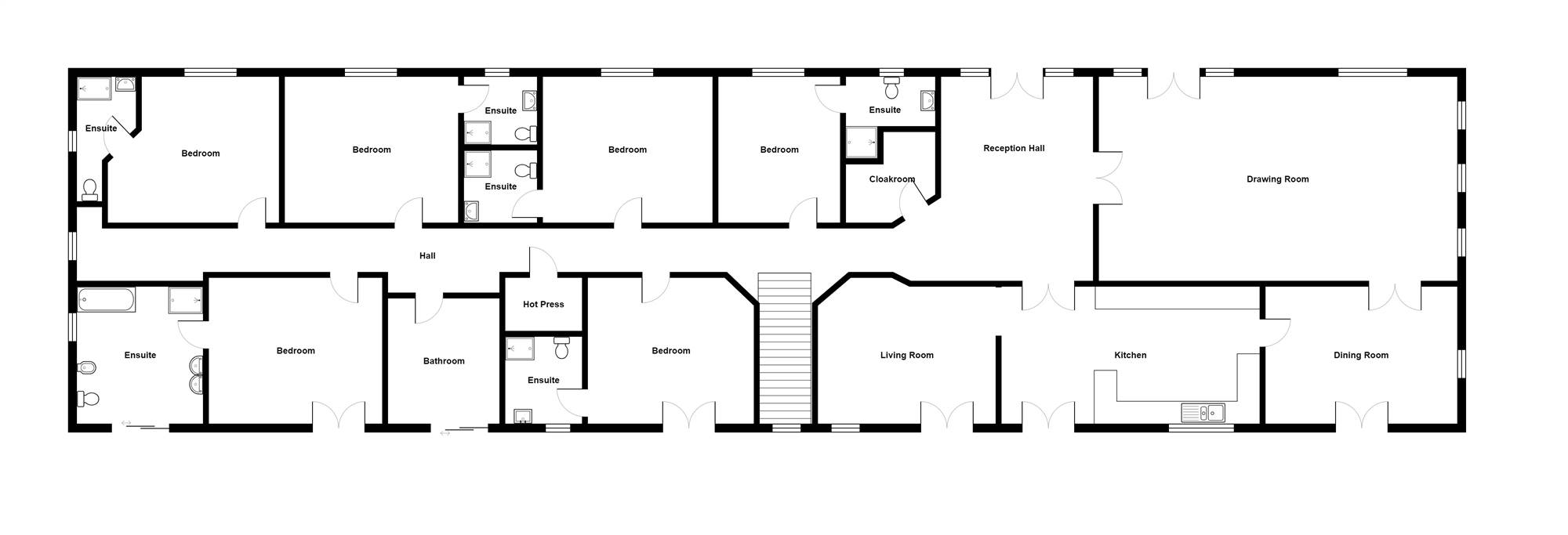
The front door opens into the large reception hall leading onto a spacious formal living room which is almost 32ft long with ornate marble fireplace, ideal for entertaining and double doors into a dining room, kitchen with casual dining area, additional living room and cloak room with wc.
There are six well-proportioned bedrooms, all with ensuite shower rooms and built in wardrobes. The bedrooms are also complimented by a large bathroom with 5 piece suite. The principal rooms can access a balcony terrace ideal for outdoor entertainment.
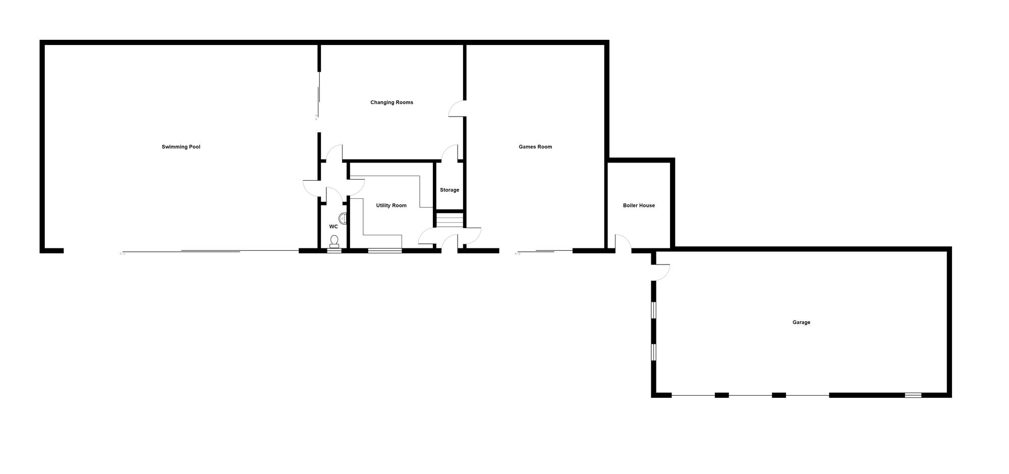
On the lower level, the accommodation provides a utility room, cloakroom with wc, pool room with a 27foot swimming pool, changing room and large games room complimented with Inglenook fireplace and gas fire. The pool room and games room all have sliding doors accessing the rear gardens.
Gardens and grounds
The triple garage comes with power, lighting, heating and three remote controlled doors and houses the beam vacuum system. A separate stable block, with tack room and two loose boxes complete the accommodation.
The gardens at Hillview Cottage are simply stunning. Both front and back gardens adjoining the house are attractively landscaped with areas of lawn surrounded by well-stocked herbaceous flower beds and interspersed with a variety of attractive specimen trees.
LOT 2 £230,000
Field 1: 6.71 acres/2.72 hectares
Field 2: 4.41 acres/1.78 hectares
Field 3: 4.58 acres/1.85 hectares
Total agricultural: 15.7 acres/6.35 hectares
LOT 1 House and Gardens £925,000
Conveniently located in the Castlereagh Hills just 15 minutes drivetime from Belfast City Centre, we are delighted to offer this ideal opportunity to purchase a spacious detached family home offering all the benefits of country living, yet still convenient to a mass of local amenities and schools within easy reach.
Set on a large site measuring circa 1 acre the property offers spacious grounds with mature gardens surrounding the property. This deceptive family home offers adaptable and expansive accommodation is laid out over two floors extending to approximately 7,500 sqft including the triple garage.
The front door opens into the large reception hall leading onto a spacious formal living room which is almost 32ft long with ornate marble fireplace, ideal for entertaining and double doors into a dining room, kitchen with casual dining area, additional living room and cloak room with wc.
There are six well-proportioned bedrooms, all with ensuite shower rooms and built in wardrobes. The bedrooms are also complimented by a large bathroom with 5 piece suite. The principal rooms can access a balcony terrace ideal for outdoor entertainment.
On the lower level, the accommodation provides a utility room, cloakroom with wc, pool room with a 27foot swimming pool, changing room and large games room complimented with Inglenook fireplace and gas fire. The pool room and games room all have sliding doors accessing the rear gardens.
Gardens and grounds
The triple garage comes with power, lighting, heating and three remote controlled doors and houses the beam vacuum system. A separate stable block, with tack room and two loose boxes complete the accommodation.
The gardens at Hillview Cottage are simply stunning. Both front and back gardens adjoining the house are attractively landscaped with areas of lawn surrounded by well-stocked herbaceous flower beds and interspersed with a variety of attractive specimen trees.
LOT 2 £230,000
Field 1: 6.71 acres/2.72 hectares
Field 2: 4.41 acres/1.78 hectares
Field 3: 4.58 acres/1.85 hectares
Total agricultural: 15.7 acres/6.35 hectares
Rooms
Double doors to front.
RECEPTION HALL: 18' 2" X 13' 4" (5.54m X 4.06m)
Wooden floor, French double doors to Drawing Room.
FORMAL DRAWING ROOM: 31' 10" X 18' 0" (9.70m X 5.49m)
Ornate marble fireplace and surround with gas fire, wooden floor, French double doors to front garden, corniced ceiling, wired for wall lighting, French double doors to Dining Room.
DINING ROOM: 17' 0" X 12' 0" (5.18m X 3.66m)
French double doors to Balcony Terrace.
KITCHEN WITH DINING AREA: 22' 10" X 12' 0" (6.96m X 3.66m)
Full range of high and low level oak units with tiled work surfaces, stainless steel single drainer 1.5 bowl sink unit with mixer taps, 4 ring ceramic hob, oven and microwave, recess for fridge freezer, dishwasher, Terracotta tiled floor, French double doors to rear brick terrace. Open Arch to Living Room.
LIVING ROOM: 15' 10" X 12' 8" (4.83m X 3.86m)
Terracotta tiled floor, French double doors to rear Balcony Terrace. Wood burning stove.
CLOAKROOM:
BEDROOM (1): 13' 0" X 10' 10" (3.96m X 3.30m)
Wooden floor, built in robes.
ENSUITE SHOWER ROOM:
Fully tiled shower cubicle with thermostatic shower, vanity sink unit with mixer taps, low flush WC, partly tiled walls, ceramic tiled floor.
BEDROOM (2): 14' 9" X 12' 9" (4.50m X 3.89m)
Wooden floor, French double doors to Balcony Terrace, built in wardrobes.
ENSUITE SHOWER ROOM:
High flush WC, pedestal wash hand basin, fully tiled shower cubicle with thermostatic shower, fully tiled walls, ceramic tiled floor.
BEDROOM (3): 15' 0" X 13' 0" (4.57m X 3.96m)
Built in robes, wooden floor.
ENSUITE SHOWER ROOM:
Fully tiled shower cubicle with thermostatic shower, vanity sink unit with mixer taps, low flush WC, fully tiled walls, ceramic tiled floor.
REAR HALLWAY:
Large walk in airing cupboard.
BEDROOM (4): 15' 4" X 13' 0" (4.67m X 3.96m)
Wooden floor, built in wardrobes.
ENSUITE SHOWER ROOM:
Fully tiled shower cubicle, thermostatic shower, low flush WC, vanity sink unit with mixer taps, fully tiled walls, ceramic tiled floor.
BATHROOM:
White suite comprising: Corner bath with mixer taps, pedestal wash hand basin with mixer taps, low flush WC, bidet, fully tiled walls, ceramic tiled floor, French window to Balcony Terrace.
BEDROOM (5): 15' 5" X 12' 8" (4.70m X 3.86m)
French double doors to Balcony Terrace. Wooden floor, built in wardrobes.
ENSUITE BATHROOM:
White suite comprising: panelled bath, low flush WC, twin vanity sink units, bidet, shower enclosure with multi jet shower, French windows to Balcony Terrace.
BEDROOM (6): 15' 5" X 13' 0" (4.70m X 3.96m)
Wooden floor, built in wardrobes.
ENSUITE SHOWER ROOM:
Fully tiled shower cubicle with thermostatic shower, low flush WC, vanity sink unit, fully tiled walls, ceramic tiled floor.
UTILITY ROOM: 12' 7" X 11' 2" (3.84m X 3.40m)
Full range of high and low level units, sink unit with mixer taps, plumbed for washing machine, ceramic tiled floor, fully tiled walls.
SEPARATE WC:
Pedestal wash hand basin with mixer taps, fully tiled walls, ceramic tiled floor.
POOL ROOM: 41' 5" X 30' 6" (12.62m X 9.30m)
Triple Aluminium framed sliding doors to rear.
SWIMMING POOL: 27' 0" X 16' 5" (8.23m X 5.00m)
CHANGING ROOM: 21' 7" X 16' 10" (6.58m X 5.13m)
GAMES ROOM: 30' 6" X 21' 0" (9.30m X 6.40m)
Gas fire in Inglenook fireplace, sliding doors to rear.
BOILER ROOM: 19' 4" X 13' 1" (5.89m X 3.99m)
TRIPLE INTEGRAL GARAGE:
Triple electric doors. Beam Vacuum system.
STABLE BLOCK:
TACK ROOM: 11' 1" X 7' 5" (3.38m X 2.26m)
LOOSE BOX 1: 11' 1" X 9' 11" (3.38m X 3.02m)
Power and water trough.
LOOSE BOX 2: 11' 0" X 10' 0" (3.35m X 3.05m)
Power and water trough.
Property Location
Mortgage Calculator
Directions
From Gransha Road heading toward the La Mon House Hotel, Lisleen road is on the left. Number 9 -11 is on the right side in approximately 0.5 miles.
Contact Agent
Contact Simon Brien (East Belfast)
Request More Information
Requesting Info about...
Hillview Cottage , 9-11 Lisleen Road, Gransha, Castlereagh, BT23 5QD
By registering your interest, you acknowledge our Privacy Policy
By registering your interest, you acknowledge our Privacy Policy