Site
285 Castlereagh Road
Castlereagh, Belfast, BT5 5FL
asking price
£575,000
- Status For Sale
- Property Type Site
-
Stamp Duty
Higher amount applies when purchasing as buy to let or as an additional property£18,750 / £47,500*
Description
Constructed in the 1970s, and currently in good condition, it is now occupied by a variety of businesses across two floors, accessible via three separate entrances. Additional advantages include outside balcony areas and off-street parking.
The net internal area totals c.3589 sq feet or 333 sq m.
This presents a rare opportunity to acquire a building, currently configured as multiple commercial units, which has a rental income, with the added benefit of full planning permission for 4 x two-bedroom apartments on the first and second floors, while retaining the 2 x ground floor retail units.
Planning approval, which was granted in 2024 under Application: LA04/2024/1476/F, permits two commercial units on the ground floor, three two-bedroom apartments on the first floor, and a penthouse two-bedroom apartment on the second floor.
This property offers strong investment potential in its existing commercial configuration or as an attractive development opportunity. (Rental income details available upon request.)
PLANNING
Proposed plans under Reference LA04/2024/1476/F for a refurbishment extension and conversion of the first and second floors to incorporate:
No Floor Type Beds sq m sq ft
1 First Apartment 2 72 775
2 First Apartment 2 74 797
3 First Apartment 2 72 775
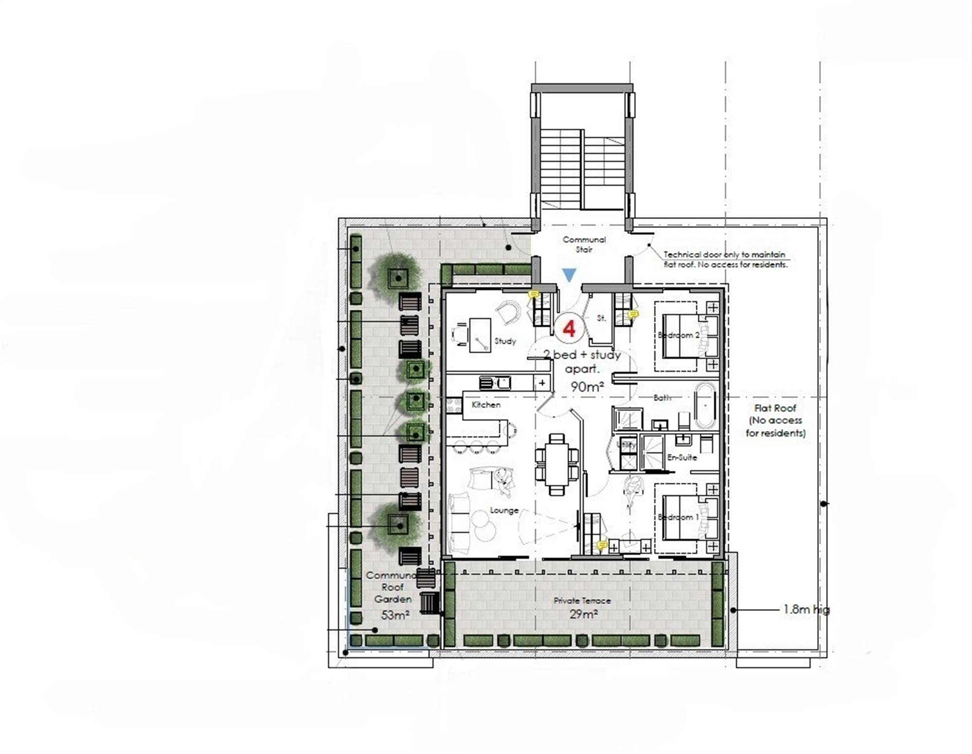
4 Penthouse Apartment 3 90 969
See plans and proposed elevations attached.
This is an ideal investment / development opportunity as there would be potential for immediate income from the ground floor units while creating the first and second floors into residential accommodation.
TITLE
The property is held on a fee simple title.
SALE PRICE
The property is offered for sale at £575,000 exclusive
ANTI MONEY LAUNDERING
In order to comply with Anti Money Laundering legislation, the successful tenant will be required to provide certain identification documents. The required documents will be confirmed to and requested from the successful tenant at the point of agreeing Heads of Terms.
FURTHER INFORMATION
For further information or to arrange an inspection of the property, please contact:
David Menary
Tel: +44 77 7555 7090
Email: david.menary@colliers.com
The net internal area totals c.3589 sq feet or 333 sq m.
This presents a rare opportunity to acquire a building, currently configured as multiple commercial units, which has a rental income, with the added benefit of full planning permission for 4 x two-bedroom apartments on the first and second floors, while retaining the 2 x ground floor retail units.
Planning approval, which was granted in 2024 under Application: LA04/2024/1476/F, permits two commercial units on the ground floor, three two-bedroom apartments on the first floor, and a penthouse two-bedroom apartment on the second floor.
This property offers strong investment potential in its existing commercial configuration or as an attractive development opportunity. (Rental income details available upon request.)
PLANNING
Proposed plans under Reference LA04/2024/1476/F for a refurbishment extension and conversion of the first and second floors to incorporate:
No Floor Type Beds sq m sq ft
1 First Apartment 2 72 775
2 First Apartment 2 74 797
3 First Apartment 2 72 775
4 Penthouse Apartment 3 90 969
See plans and proposed elevations attached.
This is an ideal investment / development opportunity as there would be potential for immediate income from the ground floor units while creating the first and second floors into residential accommodation.
TITLE
The property is held on a fee simple title.
SALE PRICE
The property is offered for sale at £575,000 exclusive
ANTI MONEY LAUNDERING
In order to comply with Anti Money Laundering legislation, the successful tenant will be required to provide certain identification documents. The required documents will be confirmed to and requested from the successful tenant at the point of agreeing Heads of Terms.
FURTHER INFORMATION
For further information or to arrange an inspection of the property, please contact:
David Menary
Tel: +44 77 7555 7090
Email: david.menary@colliers.com
Rooms
RETAIL/OFFICE 1:
RETAIL/OFFICE 2:
STAFF ROOM:
Storage:
OFFICE 3:
OFFICE 4:
Property Location
Mortgage Calculator
Directions
285 to 287 Castlereagh Road is a commercial building located on a commanding site on the junction of Ladas Drive and the Castlereagh Road.
The property is in a highly accessible and convenient location close to East and South Belfast and is approximately 1.5 miles to the City Centre.
The property is in a highly accessible and convenient location close to East and South Belfast and is approximately 1.5 miles to the City Centre.
Contact Agent
Contact Colliers New Homes
Request More Information
Requesting Info about...
285 Castlereagh Road, Castlereagh, Belfast, BT5 5FL
By registering your interest, you acknowledge our Privacy Policy
By registering your interest, you acknowledge our Privacy Policy