Contact Agent

Contact Tom Henry & Co

Contact Tom Henry & Co

Workshop

Coming Soon, Castlecaulfield Area

Castlecaulfield, Dungannon, BT70 3NN

Price on Application
  • Status For Rent
  • Property Type Workshop
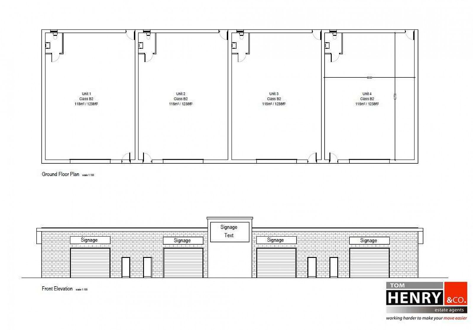
  • Interior Area 115 SQ M / 1238 SQ FT
  • Typical Mortgage
    Click price to use our mortgage calculator
EPC Rating

Key Features & Description

WITHIN A NEWLY CONSTRUCTED PURPOSE-BUILT COMMERCIAL DEVELOPMENT.
CLOSE TO ALL BUSTLING & POPULAR CASTLECAULFIELD VILLAGE AMENITIES.
ONLY MINUTES BY CAR TO DUNGANNON, DONAGHMORE, COOKSTOWN & THE A4 BYPASS.
115 SQ M / 1238 SQ FT.
STAFF FACILITIES.
AMPLE PARKING.
SUITABLE FOR:
WORKSHOPS.
HIGH-TECH MANUFACTURING.
ARTISANAL FOOD PRODUCTION.
PRINTING WORKS.
REPAIR & SERVICING OF GOODS.
Description

COMING SOON – EXPRESS YOUR INTEREST NOW!

4 NO. NEWLY CONSTRUCTED LIGHT INDUSTRIAL UNITS – CLASS B2.

REGISTER YOUR INTEREST TODAY WITH OUR OFFICES TO BE KEPT UPDATED ON THIS FANTASTIC OPPORTUNITY.


Property Location

Show Map

Contact Agent

Contact Tom Henry & Co

Contact Tom Henry & Co

Request More Information
Requesting Info about...
Coming Soon, Castlecaulfield Area, Castlecaulfield, Dungannon, BT70 3NN Coming Soon, Castlecaulfield Area, Castlecaulfield, Dungannon, BT70 3NN

By registering your interest, you acknowledge our Privacy Policy
Ask Holmes
Ask Holmes
Let's find your next home

Are you sure you want to reset the chat?

Checking API...