Contact Agent
Contact Michael Chandler Estate Agents
4 Bed Semi-Detached House
22 The Demesne
Carryduff, Belfast, BT8 8GU
per month
£1,050pm
- Status Let Agreed
- Property Type Semi-Detached
- Bedrooms 4
- Receptions 1
- Bathrooms 2
- Heating Gas
- Furnished Unfurnished
Key Features & Description
Description
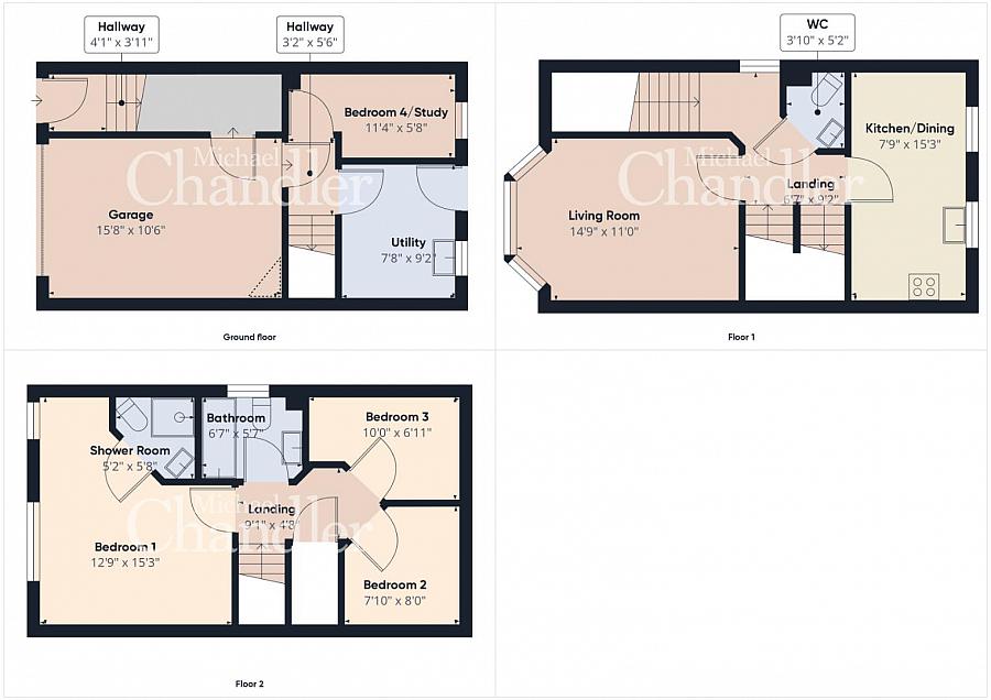
An excellent three storey semi-detached town house with superb living space, in a highly sought after location within the prestigious "The Demesne" development.
The ground floor comprises of an integral garage with a separate store room, a convenient utility room with and a study/fourth bedroom. The first floor comprises of a bright & spacious lounge with bay window & electric fire, a modern fitted kitchen with an excellent range of units including a full range of quality integral appliances open plan to a dining area & a separate WC. The second floor comprises of three bedrooms, the master benefiting from an en-suite shower room and a separate family bathroom with a white three piece suite.
The rear garden is accessed via the utility rooms and is private, enclosed & laid in lawn making it ideal for entertaining family and friends with an al fresco dinner. The front of the property has one off-street car parking space with visitor parking spaces located at the end of the street.
The property is ideally located within walking distance to the local shops and amenities. The Demesne is situated just off the Hillsborough Road offering easy access to and from Belfast City Centre.
The property is unfurnished and available 2nd March 2026.
To arrange a viewing or for further information please call Michael Chandler Estate Agents on 02890 450550 or visit www.michael-chandler.co.uk
An excellent three storey semi-detached town house with superb living space, in a highly sought after location within the prestigious "The Demesne" development.
The ground floor comprises of an integral garage with a separate store room, a convenient utility room with and a study/fourth bedroom. The first floor comprises of a bright & spacious lounge with bay window & electric fire, a modern fitted kitchen with an excellent range of units including a full range of quality integral appliances open plan to a dining area & a separate WC. The second floor comprises of three bedrooms, the master benefiting from an en-suite shower room and a separate family bathroom with a white three piece suite.
The rear garden is accessed via the utility rooms and is private, enclosed & laid in lawn making it ideal for entertaining family and friends with an al fresco dinner. The front of the property has one off-street car parking space with visitor parking spaces located at the end of the street.
The property is ideally located within walking distance to the local shops and amenities. The Demesne is situated just off the Hillsborough Road offering easy access to and from Belfast City Centre.
The property is unfurnished and available 2nd March 2026.
To arrange a viewing or for further information please call Michael Chandler Estate Agents on 02890 450550 or visit www.michael-chandler.co.uk
Broadband Speed Availability
Potential Speeds for 22 The Demesne
Max Download
1800
Mbps
Max Upload
220
MbpsThe speeds indicated represent the maximum estimated fixed-line speeds as predicted by Ofcom. Please note that these are estimates, and actual service availability and speeds may differ.
Property Location
Contact Agent
Contact Michael Chandler Estate Agents
Request More Information
Requesting Info about...
22 The Demesne, Carryduff, Belfast, BT8 8GU
By registering your interest, you acknowledge our Privacy Policy
By registering your interest, you acknowledge our Privacy Policy