Contact Agent
Contact Tim Martin & Co (Saintfield)
4 Bed Detached House
35 Drumalig Road
Carryduff, BT8 8EQ
offers around
£675,000
Key Features & Description
Impeccably Presented and Designed Modern Country Residence
Set in its Own Grounds Extending to Circa 0.75 an Acre.
Drawing Room, Study and Open Plan Kitchen / Living Dining
Four Bedrooms, Three with En Suites
Kitchen Fitted with Painted Finish Units, Granite worktops and 4 oven 'Aga'
Four Contemporary Designed Bath / Shower Rooms
Underfloor Heating, Oil Fired Central Heating, Hot Water Powered by Solar Panels and Beam Vacuum
Generous Garaging and Storage Open to Ample Parking to Front and Rear
Beautifully Maintained Gardens and Enjoying Stunning Views Over The Surrounding Countryside
A good Selection of Primary and Secondary Schools are a Short Drive Away
Description
An impeccably presented and designed modern country residence set in its own grounds extending to circa 0.75 an acre.
The residence built in recent years to exacting standards is situated on an elevated position overlooking Rockmount golf course and the surrounding countryside, yet situated an easy commute to Belfast City Airport and a host of sporting facilities.
Internally the accommodation is versatile to suit most families needs. The ground floor includes drawing room, generous kitchen, family room, study, bedroom 4 / dining room, adjacent shower room, laundry room and ample storage. The first floor includes three bedrooms each with ensuites. Underfloor heating at ground and first floor combine to create a spacious cosy home.
Externally, generous garaging and storage open to ample parking to front and rear. The property is approached from it's own private drive with gardens to front, side and rear which include a stone flagged patio with Southerly aspect.
It is rare that a property of such quality in a fine setting comes to the market.
An impeccably presented and designed modern country residence set in its own grounds extending to circa 0.75 an acre.
The residence built in recent years to exacting standards is situated on an elevated position overlooking Rockmount golf course and the surrounding countryside, yet situated an easy commute to Belfast City Airport and a host of sporting facilities.
Internally the accommodation is versatile to suit most families needs. The ground floor includes drawing room, generous kitchen, family room, study, bedroom 4 / dining room, adjacent shower room, laundry room and ample storage. The first floor includes three bedrooms each with ensuites. Underfloor heating at ground and first floor combine to create a spacious cosy home.
Externally, generous garaging and storage open to ample parking to front and rear. The property is approached from it's own private drive with gardens to front, side and rear which include a stone flagged patio with Southerly aspect.
It is rare that a property of such quality in a fine setting comes to the market.
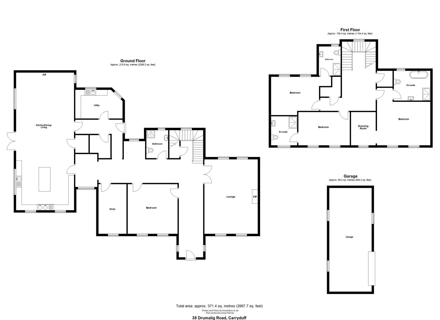
Rooms
Reception Hall
Engineered wood floor; corniced ceiling; Beam vacuum points; built in storage cupboard with Beam vacuum unit.
Shower / Wet Room 8'6 X 6'4 (2.59m X 1.93m)
Contemporary white suite comprising tiled shower area with thermostatically controlled shower; floating vanity unit with drawers; ceramic wash hand basin and chrome mono mixer tap; illuminated mirror over; wc with concealed cistern; chrome heated towel radiator; extractor unit; LED spotlights; ceramic tiled walls and floor;
Drawing Room
Approached through glazed double doors; arched cast iron fireplace with matching grate on slate hearth; painted carved wood chimney piece; LED spotlights; Beam vacuum point; TV aerial connection point; TV aerial connection point.
Bedroom 4 / Dining Room (14'7 X )
LED spotlights; telephone connection point.
Study 14'6 X 8'2 (4.42m X 2.49m)
Engineered wood floor; open reach computer connection
Kitchen / Family Room 40'3 X 17'0 (12.27m X 5.18m)
Rangemaster double ceramic Belfast sink with swan neck mixer taps; extensive range of painted finish eye and floor level cupboards and drawers; wine rack; illuminated and glazed display cupboard and wine rack; polished granite worktop; integrated Bosch American fridge and Neff dishwasher; matching island unit with fitted cupboards, drawers and waste bin; integrated 'Bosch' microwave and 'CDA' wine fridge; skirting board vacuum unit; polished black granite worktop and breakfast bar; black 4 oven oil fired AGA with twin hobs, canopy and LED lights over porcelain flagged floor; A frame beamed and vaulted ceiling Romotop enclosed multi fuel cast iron stove on slate hearth; ample TV aerial connections; LED spotlights; glazed double doors to patio; porcelain flagged floor; walk in storage cupboard; partially shelved; porcelain tiled floor.
Rear Hall
Porcelain flagged floor; ½ stable doors to rear parking; LED spotlights.
Cloakroom 5'6 X 5'1 (1.68m X 1.55m)
Plumbed for WC porcelain flagged floor; chrome heated towel radiator.
Laundry Room
Single drainer stainless steel sink unit with chrome mono mixer tap; good range of laminate eye and floor level cupboards and drawers; formica worktops; plumbed and space for washing machine and tumble dryer; chrome heated towel rail; porcelain flagged floor; LED spotlights; extractor fan.
Carved Oak Newel Posts and Hardrail Furniture Stai
1st Floor Landing
Hotpress with 'Warmflow' pressurised hot water cylinder; Walk in Storage cupboard;
Master Bedroom 16'0 X 12'7 (4.88m X 3.84m)
TV aerial connections; telephone connection point; LED spot lights; Beam vacuum point.
Dressing Room 10'6 X 7'0 (3.20m X 2.13m)
Furnished with extensive range of wardrobes, storage shelves and nest of 6 drawers; LED spotlights.
En-Suite Bathroom
Contemporary white suite comprising free standing bath with floor mounted chrome mixer tap with adjustable shower head; floating vanity unit with fitted wash hand basin and chrome mono mixer tap; nest of two drawers; illuminated mirror fronted bathroom cabinet over; WC with concealed cistern; tiled shower cubicle with thermostatically multi head shower; glass shower panel; chrome heated towel radiator; porcelain flagged floor and walls; LED spotlights; extractor fan.
Bedroom 2 15'1 X 10'7 (4.60m X 3.23m)
Ample TV aerial connections; LED spotlights; Beam vacuum point.
En-suite Shower Room 8'5 X 8'0 (2.57m X 2.44m)
Contemporary white suite comprising tiled shower cubicle with 'Hansgrohe' thermostatically controlled shower; glass shower panel; floating vanity unit with fitted wash hand basin and chrome mono mixer tap; drawer under; illuminated mirror over; wc with concealed cistern; porcelain tiled walls and floor; LED spotlighting; extractor fan; chrome heated towel radiator;
Bedroom 3 17'7 X 13'4 (5.36m X 4.06m)
Range of built-in furniture including double wardrobe matching shelved cupboard with mirrored doors and nest of six drawers under; LED spotlighting; ample TV aerial connections; Beam vacuum point.
En-suite Shower Room:
Contemporary white suite comprising tiled shower cubicle with 'Hansgrohe' thermostatically controlled shower; glass shower panel; floating vanity unit with fitted wash hand basin and chrome mono mixer tap; drawer under; illuminated mirror over; wc with concealed cistern; porcelain tiled walls and floor; LED spotlighting; extractor fan; chrome heated towel radiator;
Outside
Private gravelled drive to ample parking to front and rear of the property; leading to:
Garaging 14'11 X 14'10 (4.55m X 4.52m)
With electric roller door; 'Grant' oil fired boiler; light and power points; open plan to:-
Store 25'3 X 15'1 (7.70m X 4.60m)
Light and power points.
Gardens
Spacious gardens to front, side and rear laid out in lawns with delightful illuminated stone flagged and enclosed patio with Granite set, enclosed flowerbeds to side with a Southerly aspect. The gardens are partially enclosed with a stand of Sycamore trees. A bed of ornamental grasses and alacleas are situated to the front of the residence complete the gardens.
Tenure
Freehold
Capital / Rateable Value
£425,000. Rates Payable = £3,810 Per Annum (Approx)
Broadband Speed Availability
Potential Speeds for 35 Drumalig Road
Max Download
1000
Mbps
Max Upload
300
MbpsThe speeds indicated represent the maximum estimated fixed-line speeds as predicted by Ofcom. Please note that these are estimates, and actual service availability and speeds may differ.
Property Location
Mortgage Calculator
Contact Agent
Contact Tim Martin & Co (Saintfield)
Request More Information
Requesting Info about...
35 Drumalig Road, Carryduff, BT8 8EQ
By registering your interest, you acknowledge our Privacy Policy
By registering your interest, you acknowledge our Privacy Policy