3 Bed Semi-Detached House
3 Muskett Park
Carryduff, BT8 8QR
offers around
£195,000

Key Features & Description
Well Presented Semi Detached Home
Open Plan Kitchen / Living / Dining
Three Well Proportioned Bedrooms
Modern Family Bathroom
Floor Roofspace Accessed via Slingsby Type Ladder
Gas Fired Heating and Double Glazing
Enclosed, South Facing Rear Garden Laid Out in Lawn
Wooden Shed Currently Used as a Laundry Room
Off Street Parking for Up to Three Vehicles
Within Walking Distance to Carryduff Amenities and Public Transport
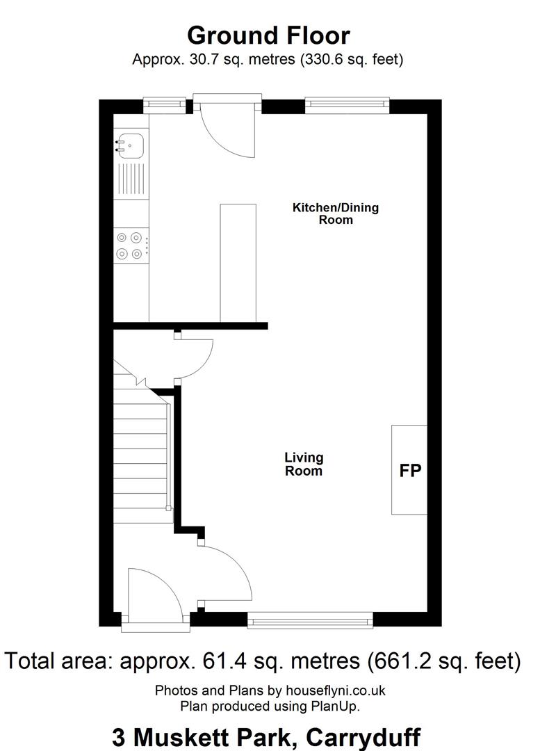
Description
This well presented semi detached home is ideally located in the popular Muskett Park development within walking distance to Carryduff amenities and will appeal to a wide range of buyers.
The ground floor accommodation is open plan - perfect for family living and entertaining. The kitchen is fitted with a range of high and low level units, integrated appliances, opening out to the generous dining space and lounge and to the rear garden.
Upstairs, there are three well-proportioned bedrooms and a modern family bathroom. The roofspace is floored and accessed via a Slingsby type ladder.
Externally, the property boasts off-street parking to the front for up to three vehicles. To the rear, an enclosed south-facing garden is laid in lawn provides a perfect spot for children and pets to play or have a bar-be-que while enjoying the sun all day.
Carryduff boasts a wide range of shops including the newly opened Lidl and eateries, as well as primary schools and good transport links to secondary schools in the surrounding area. For those who enjoy sports, the Lough Moss Leisure Centre is within walking distance. Excellent public transport links and road networks make commuting to Belfast, Lisburn, Saintfield and beyond convenient.
This well presented semi detached home is ideally located in the popular Muskett Park development within walking distance to Carryduff amenities and will appeal to a wide range of buyers.
The ground floor accommodation is open plan - perfect for family living and entertaining. The kitchen is fitted with a range of high and low level units, integrated appliances, opening out to the generous dining space and lounge and to the rear garden.
Upstairs, there are three well-proportioned bedrooms and a modern family bathroom. The roofspace is floored and accessed via a Slingsby type ladder.
Externally, the property boasts off-street parking to the front for up to three vehicles. To the rear, an enclosed south-facing garden is laid in lawn provides a perfect spot for children and pets to play or have a bar-be-que while enjoying the sun all day.
Carryduff boasts a wide range of shops including the newly opened Lidl and eateries, as well as primary schools and good transport links to secondary schools in the surrounding area. For those who enjoy sports, the Lough Moss Leisure Centre is within walking distance. Excellent public transport links and road networks make commuting to Belfast, Lisburn, Saintfield and beyond convenient.
Rooms
Entrance hall
Ceramic tiled floor.
Lounge 13'3'' X 11'4'' (4.04m'' X 3.45m'')
Hole in the wall with space for stove; storage cupboard with Worchester gas fired boiler, ceramic tiled floor; open to:-
Kitchen / Dining 14'5'' X 10' (4.39m'' X 3.05m)
Good range of grey high gloss high and low level cupboards and drawers; formica worktop incorporating 1½ tub stainless steel sink unit with swan neck mixer tap; integrated Liebherr fridge; Beko electric under oven; Cooke and Lewis four ring ceramic hob; stainless steel extractor; space and plumbing for dishwasher; ceramic tiled floor; part tiled walls; LED spotlighting; glazed uPVC door to rear garden.
Stairs to First Floor / Landing
Landing; access to roofspace via slingsby type ladder.
Bedroom 1 8'1'' X 6'10'' (2.46m'' X 2.08m'')
Double built in cupboard with shelving.
Bedroom 2 11'2'' X 7'4'' (3.40m'' X 2.24m'')
Bedroom 3 11'9'' X 8'0'' (3.58m'' X 2.44m'')
Wood laminate floor.
Bathroom 8'5'' X 6'0'' (2.57m'' X 1.83m'')
White suite comprising freestanding bath with centrally located taps and telephone shower attachment; close coupled WC; quadrant tiled shower cubicle with thermostatically controlled shower with adjustable and rain shower heads; sliding glass shower doors and side panel; vanity unit with wash hand basin with pillar mono mixer tap; cupboards under; mirror heated bathroom cabinet over ; chrome heated towel radiator; ceramic tiled floor; extractor fan; LED spotlighting.
Outside
Bitmac drive to ample parking at front and side for up to 3 vehicles.
Enclosed, south facing rear gardens laid in lawns with barked flowerbed; bitmac patio area.
Enclosed, south facing rear gardens laid in lawns with barked flowerbed; bitmac patio area.
Wooden shed 7'2'' X 5'2'' (2.18m'' X 1.57m'')
Plumbed and space for washing machine and tumble drier; space for freezer; formica worktop; wall mounted wash hand basin; light and power.
Tenure
Leasehold
Ground Rent
£35 per annum
Capital Rateable Value
£105,000. Rates Payable = £955.29 per annum (approx)
Broadband Speed Availability
Potential Speeds for 3 Muskett Park
Max Download
1800
Mbps
Max Upload
220
MbpsThe speeds indicated represent the maximum estimated fixed-line speeds as predicted by Ofcom. Please note that these are estimates, and actual service availability and speeds may differ.
Property Location

Mortgage Calculator
Contact Agent

Contact Tim Martin & Co (Comber)
Request More Information
Requesting Info about...