4 Bed Semi-Detached House
Site 51, F6, Mealough
Mealough Road, Belfast, BT8
price
£365,000
- Status For Sale
- Property Type Semi-Detached
- Bedrooms 4
- Receptions 2
- Bathrooms 2
-
Stamp Duty
Higher amount applies when purchasing as buy to let or as an additional property£8,250 / £26,500*
Key Features & Description
Description
MAKING THE HOUSE WORK FOR YOUR LIFESTYLE
A home that is designed better and built better will give you a better life. You´re not just buying a home, you´re buying the promise of a happier, healthier lifestyle.
ENERGY SAVING WITH SOLAR TECHNOLOGY
Contemporary, eco-friendly homes in an exclusive and beautiful setting on the outskirts of Belfast. We´ve installed solar, smart and renewable technologies to give you energy independence by reducing your reliance on the grid. A solar PV system provides clean, free electricity to your home, reducing your energy bills and future proofing you from continually rising energy prices with savings of up to £500 per year.
HOME OWNER BENEFITS
Reclaim your energy independence by reducing your reliance on the grid. Your solar PV system provides clean, free electricity to your home, reducing your energy bills and future proofing you from continually rising energy prices. We´re also allowing provision for EV charging.
Insurance against rising
energy costs
Environmentally friendly
Energy independence
Savings up to £500 per year
SMART SECURITY
So you can protect what matters most, we´re installing Ring Doorbells in every home. See, hear and speak to visitors from anywhere with this Video Doorbell. Get instant notifications on your phone and tablet, customise your motion settings and conveniently stay connected to home, no matter where you are.
SMART ENERGY EFFICIENT
You don´t have to be home to have control. As standard in every home, we are installing smart phone compatible digital thermostats **. Smart profiles enable you to program time and temperature settings and then apply them to a number of zones, automatically turning the heating off when you leave and back on when you return. CO2 emissions are much less too. A range of active energy management measures have been incorporated to improve your home´s energy efficiency. With a high level of insulation and increased air tightness, our homes prevent heat loss and ensure that the heat generated remains in the property.
HOUSE TYPES. FIND A HOME FOR YOU
Mealough house types are perfect for an array of lifestyles. From first time buyers to larger family dwellings, we have carefully considered each home in our new range. With the premium Turnkey package and innovative green technology, it´s clear to see that Mealough has a home for everyone.
ABOUT THE DEVELOPER
Our fascination with considered house building design isn´t something new. We´ve always been intrigued by how even the simplest idea can positively influence daily routine. By remaining curious about how people live their lives, we are using the same approach to help people live better.
We´re now in our third generation of family ownership. Longevity like that doesn´t just happen, in fact it´s rare. What makes it possible is the trust we create and the reputation we build. From the first home our grandfather built to our 5000th, high levels of finish and the best locations have always been our bedrock. We´re now adding intelligent, innovative design to further enhance our reputation.
FOR FURTHER INFORMATION ABOUT THE DEVELOPMENT PLEASE CLICK ON BROCHURE TO REVIEW.
MAKING THE HOUSE WORK FOR YOUR LIFESTYLE
A home that is designed better and built better will give you a better life. You´re not just buying a home, you´re buying the promise of a happier, healthier lifestyle.
ENERGY SAVING WITH SOLAR TECHNOLOGY
Contemporary, eco-friendly homes in an exclusive and beautiful setting on the outskirts of Belfast. We´ve installed solar, smart and renewable technologies to give you energy independence by reducing your reliance on the grid. A solar PV system provides clean, free electricity to your home, reducing your energy bills and future proofing you from continually rising energy prices with savings of up to £500 per year.
HOME OWNER BENEFITS
Reclaim your energy independence by reducing your reliance on the grid. Your solar PV system provides clean, free electricity to your home, reducing your energy bills and future proofing you from continually rising energy prices. We´re also allowing provision for EV charging.
Insurance against rising
energy costs
Environmentally friendly
Energy independence
Savings up to £500 per year
SMART SECURITY
So you can protect what matters most, we´re installing Ring Doorbells in every home. See, hear and speak to visitors from anywhere with this Video Doorbell. Get instant notifications on your phone and tablet, customise your motion settings and conveniently stay connected to home, no matter where you are.
SMART ENERGY EFFICIENT
You don´t have to be home to have control. As standard in every home, we are installing smart phone compatible digital thermostats **. Smart profiles enable you to program time and temperature settings and then apply them to a number of zones, automatically turning the heating off when you leave and back on when you return. CO2 emissions are much less too. A range of active energy management measures have been incorporated to improve your home´s energy efficiency. With a high level of insulation and increased air tightness, our homes prevent heat loss and ensure that the heat generated remains in the property.
HOUSE TYPES. FIND A HOME FOR YOU
Mealough house types are perfect for an array of lifestyles. From first time buyers to larger family dwellings, we have carefully considered each home in our new range. With the premium Turnkey package and innovative green technology, it´s clear to see that Mealough has a home for everyone.
ABOUT THE DEVELOPER
Our fascination with considered house building design isn´t something new. We´ve always been intrigued by how even the simplest idea can positively influence daily routine. By remaining curious about how people live their lives, we are using the same approach to help people live better.
We´re now in our third generation of family ownership. Longevity like that doesn´t just happen, in fact it´s rare. What makes it possible is the trust we create and the reputation we build. From the first home our grandfather built to our 5000th, high levels of finish and the best locations have always been our bedrock. We´re now adding intelligent, innovative design to further enhance our reputation.
FOR FURTHER INFORMATION ABOUT THE DEVELOPMENT PLEASE CLICK ON BROCHURE TO REVIEW.
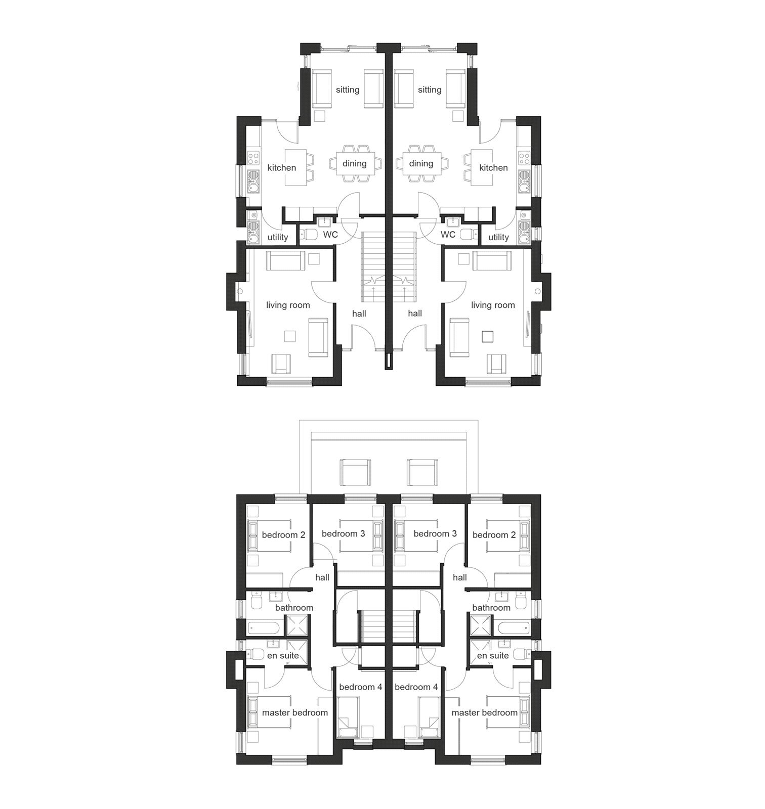
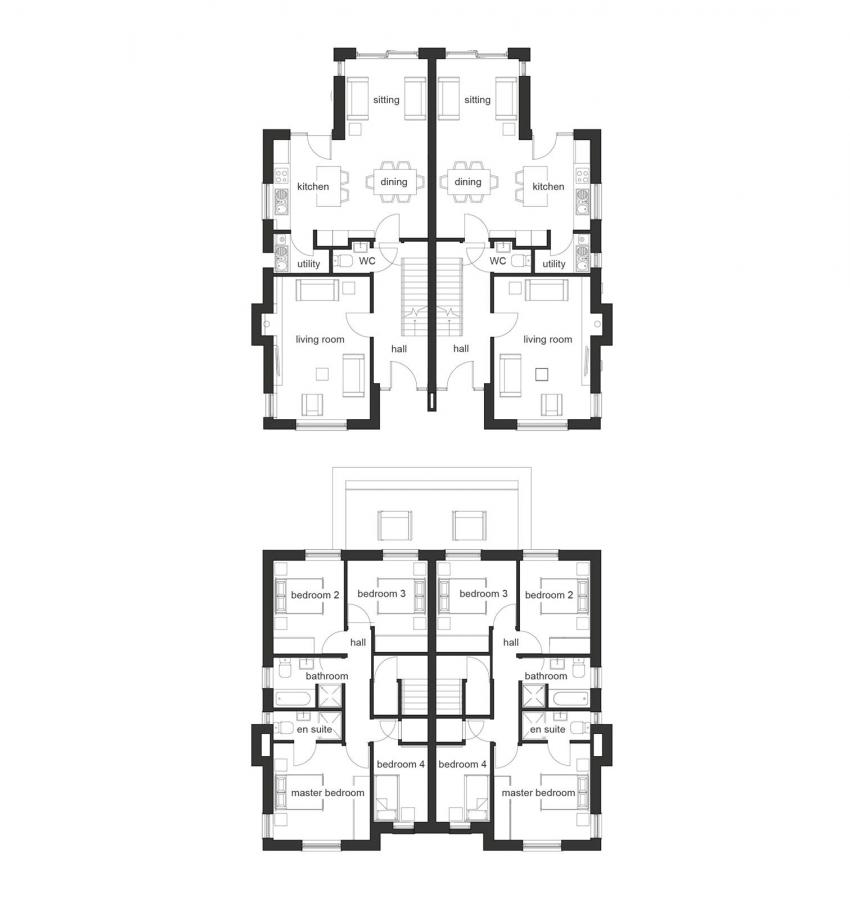
Rooms
Kithcen / Dining 19'0" X 12'2" (5.80m X 3.70m)
Utility Room 6'11" X 4'11" (2.10m X 1.50m)
WC 2'11" X 4'7" (0.90m X 1.40m)
Hallway 17'5" X 6'7" (5.30m X 2.00m)
Storage 7'7" X 2'11" (2.30m X 0.90m)
Sitting Room 10'6" X 9'10" (3.20m X 3.00m)
Living Room 17'9" X 11'10" (5.40m X 3.60m)
Master Bedroom 12'2" X 11'10" (3.70m X 3.60m)
Ensuite 8'6" X 3'7" (2.60m X 1.10m)
Bedroom 2 X (3.50m X 2.70m)
Bedroom 3 11'2" X 9'10" (3.40m X 3.00m)
Bedroom 4 9'6" X 6'7" (2.90m X 2.00m)
Bathroom 9'6" X 6'7" (2.90m X 2.00m)
Hallway 13'9" X 3'1" (4.20m X 0.94m)
Storage 3'11" X 2'11" (1.20m X 0.90m)
Property Location

Mortgage Calculator
Contact Agent

Contact Simon Brien (South Belfast)
Request More Information
Requesting Info about...
Site 51, F6, Mealough, Mealough Road, Belfast, BT8
By registering your interest, you acknowledge our Privacy Policy

By registering your interest, you acknowledge our Privacy Policy