4 Bed Detached Bungalow
Hillcrest View, 69 Cairn Road
Carrickfergus, BT38 9AP
offers over
£349,950
Key Features & Description
Detached, Family Sized Bungalow
Four Bedrooms; Principal With En Suite
Three+ Reception Rooms
Modern Fitted Kitchen
Deluxe Bathroom With Four Piece Suite
Oil Heating; PVC Double Glazing
Generous Sized Private Driveway
Attached Garage and Office
Mature Gardens; Private Site
Elevated Rural Views
Description
Well presented, four bedroom / three+ reception, detached, family sized bungalow, occupying a private site with uninterrupted, elevated, rural views, located off the Cairn Road, Carrickfergus.
The property comprises reception hall / sun lounge, entrance hall, lounge, separate family room with open fire, modern fitted kitchen, rear porch, rear hall, four well proportioned bedrooms, to include principal bedroom with deluxe, fully tiled en suite shower room, and deluxe, fully tiled bathroom with white, four piece suite.
Externally, the property enjoys generous sized private driveway area, attached garage, office and mature gardens finished in lawn, paved patio area, timber decking, plants, trees and range of shrubbery.
Other attributes include oil fired central heating and PVC double glazing.
Early viewing highly recommended.
Well presented, four bedroom / three+ reception, detached, family sized bungalow, occupying a private site with uninterrupted, elevated, rural views, located off the Cairn Road, Carrickfergus.
The property comprises reception hall / sun lounge, entrance hall, lounge, separate family room with open fire, modern fitted kitchen, rear porch, rear hall, four well proportioned bedrooms, to include principal bedroom with deluxe, fully tiled en suite shower room, and deluxe, fully tiled bathroom with white, four piece suite.
Externally, the property enjoys generous sized private driveway area, attached garage, office and mature gardens finished in lawn, paved patio area, timber decking, plants, trees and range of shrubbery.
Other attributes include oil fired central heating and PVC double glazing.
Early viewing highly recommended.
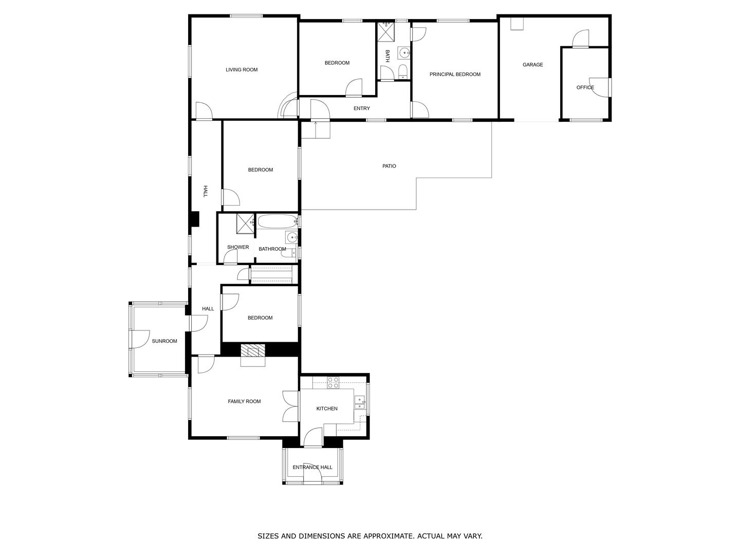
Rooms
ACCOMMODATION
RECEPTION HALL / SUN LOUNGE
PVC double glazed front door. Elevated rural views. Tiled floor. Stone clad feature wall. Glass panelled door leading to:
ENTRANCE HALL
Access to walk in hot press and partially floored roof space (with slingsby style ladder). Glass panelled door leading to:
LOUNGE 17'1" X 15'9" (5.23m X 4.82m)
Dual aspect windows enjoying elevated rural views.
FAMILY ROOM 17'2" X 12'11" (5.24m X 3.94m)
Open fire in cast iron fireplace with granite hearth and oak surround. Dual aspect windows. Timber flooring. Glass panelled French doors leading to:
KITCHEN 9'10" X 9'10" (3.01m X 3.01m)
Modern fitted kitchen with range of high and low level storage units with contrasting granite effect melamine work surface. Stainless steel 1.5 bowl sink unit with draining bay. Integrated ceramic hob with stainless steel extractor hood over. Integrated double oven, dishwasher and fridge freezer. Plumbed for automatic washing machine. Splash back tiling to walls. Tiled floor. PVC double glazed door leading to:
REAR PORCH
Tiled floor. Part tiling to walls. PVC double glazed door to driveway.
REAR HALL
Access to roof space via slingsby style ladder.
PRINCIPAL BEDROOM 15'7" X 12'9" (4.76m X 3.91m)
Dual aspect windows. Elevated rural views.
DELUXE FULLY TILED EN SUITE SHOWER ROOM
Wet room style shower enclosure, pedestal wash hand basin and WC. Electric shower. 'Jack & Jill' access to rear hall.
BEDROOM 2 11'10" X 10'8" (3.61m X 3.27m)
Elevated rural views.
BEDROOM 3 13'10" X 12'2" (4.23m X 3.71m)
Wood laminate floor covering.
BEDROOM 4 11'6" X 9'5" (3.51m X 2.88m)
DELUXE FULLY TILED BATHROOM
White four piece suite comprising panelled bath, separate shower enclosure, pedestal wash hand basin and WC. Thermostat controlled mains shower unit.
EXTERNAL
Generous sized private driveway finished in concrete and stone.
Private garden finished in lawn, mature trees, paved patio area, timber decking and range of plants and shrubbery.
External lighting.
Outside tap.
Boiler house with oil fired central heating boiler.
PVC oil storage tank.
PVC soffits, fascia and rainwater goods.
Private garden finished in lawn, mature trees, paved patio area, timber decking and range of plants and shrubbery.
External lighting.
Outside tap.
Boiler house with oil fired central heating boiler.
PVC oil storage tank.
PVC soffits, fascia and rainwater goods.
ATTACHED GARAGE 16'2" X 9'6" (plus recess) (4.93m X 2.90m (plus recess))
Up and over door. Power and light. Access to:
OFFICE 10'5" X 7'1" (3.20m X 2.16m)
Power, light, PVC double glazed window and PVC double glazed external door.
IMPORTANT NOTE TO ALL POTENTIAL PURCHASERS
Please note that we have not tested the services or systems in this property. Purchasers should make/commission their own inspections if they feel it is necessary.
Broadband Speed Availability
Potential Speeds for 69 Cairn Road
Max Download
1800
Mbps
Max Upload
300
MbpsThe speeds indicated represent the maximum estimated fixed-line speeds as predicted by Ofcom. Please note that these are estimates, and actual service availability and speeds may differ.
Property Location
Mortgage Calculator
Contact Agent
Contact Colin Graham Residential
Request More Information
Requesting Info about...
Hillcrest View, 69 Cairn Road, Carrickfergus, BT38 9AP
By registering your interest, you acknowledge our Privacy Policy
By registering your interest, you acknowledge our Privacy Policy