Commercial
15 Lancasterian Street
Carrickfergus, BT38 8AD
per month
£1,000
- Status For Rent
- Property Type Commercial
- Available From 17/04/2026
- Heating Gas
Key Features & Description
Two Storey Commercial Premises
Accommodation Extending To c.1,800 Sq Ft
Prominent Location On Lancasterian Street
Refurbished and Modernised
Close Proximity To Public Car Park
Rent: £12,000 Per Annum
Term: 3-5 Year Lease
Lease: Full Repairing And Insuring Terms
EPC Rating: C56
Available For Immediate Occupation
Description
Unique opportunity to rent a refurbished, two storey commercial premises, extending to c.1,800 sq ft, prominently situated in the heart of Carrickfergus, in close proximity to a main public car park.
Located on the junction of Lancasterian Street and Antrim Street, the subject property has recently been leased for a popular restaurant business and with recent upgrades, the equipped premises allows for any new tenant the ability to trade in a similar business immediately, however, the property can be utilised for a range of uses (subject to necessary planning and approvals).
The premises comprises reception hall with open arch leading into main retail unit/restaurant seating area, bar area/service counter, kitchen, washroom facilities, large first floor store room with access to ancillary kitchen/preparation area, and separate first floor office.
The property further benefits from three phase electricity supply, plastered and painted internal walls, mains water supply, generous electrical specification throughout, and being in close proximity to a main public car park.
Please note; all prices, rentals and outgoings are quoted net of VAT which may be chargeable and fixtures and fittings shown within the images may be available to purchase via separate negotiation.
Early viewing highly recommended to avoid disappointment.
Unique opportunity to rent a refurbished, two storey commercial premises, extending to c.1,800 sq ft, prominently situated in the heart of Carrickfergus, in close proximity to a main public car park.
Located on the junction of Lancasterian Street and Antrim Street, the subject property has recently been leased for a popular restaurant business and with recent upgrades, the equipped premises allows for any new tenant the ability to trade in a similar business immediately, however, the property can be utilised for a range of uses (subject to necessary planning and approvals).
The premises comprises reception hall with open arch leading into main retail unit/restaurant seating area, bar area/service counter, kitchen, washroom facilities, large first floor store room with access to ancillary kitchen/preparation area, and separate first floor office.
The property further benefits from three phase electricity supply, plastered and painted internal walls, mains water supply, generous electrical specification throughout, and being in close proximity to a main public car park.
Please note; all prices, rentals and outgoings are quoted net of VAT which may be chargeable and fixtures and fittings shown within the images may be available to purchase via separate negotiation.
Early viewing highly recommended to avoid disappointment.
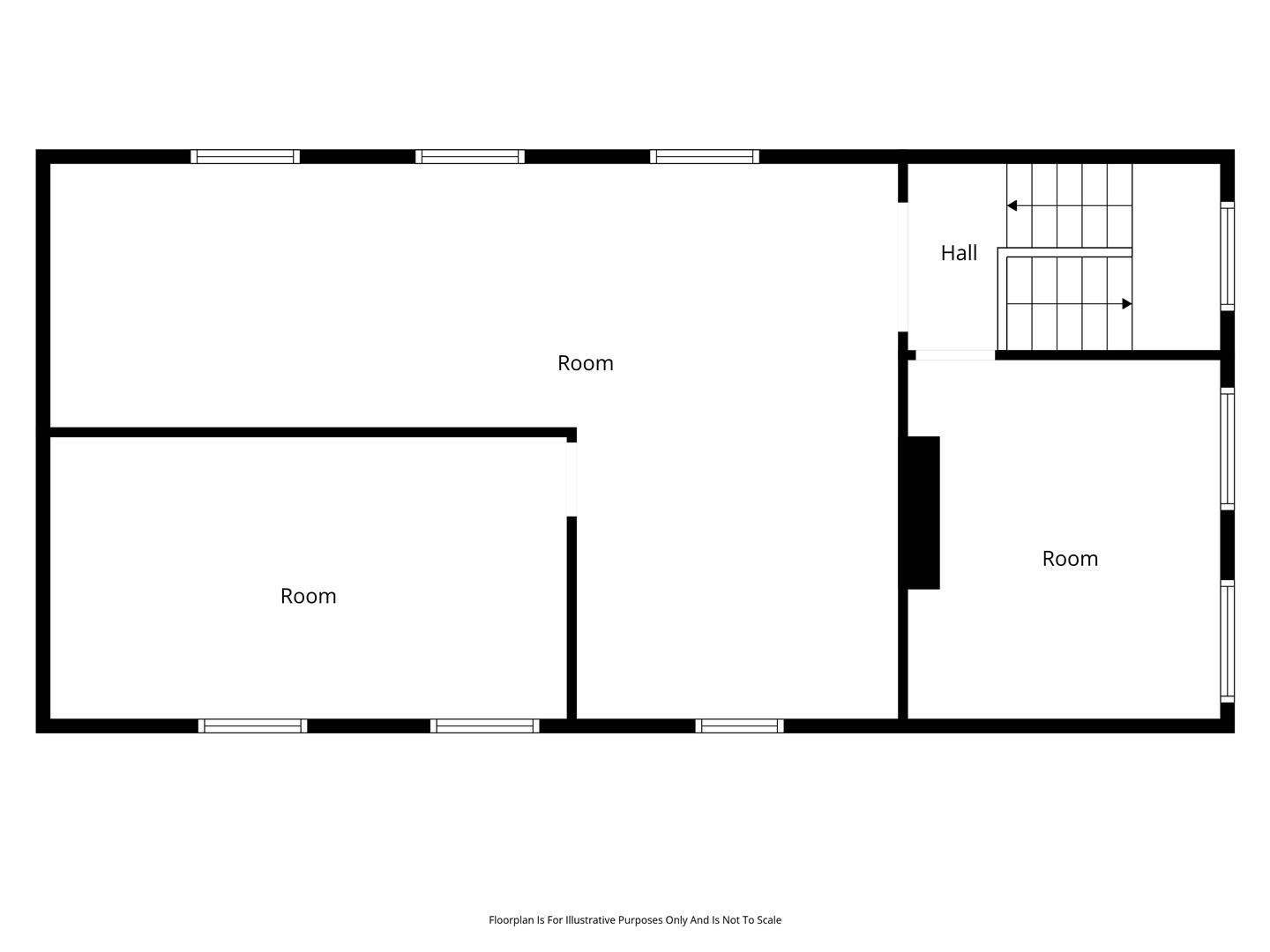
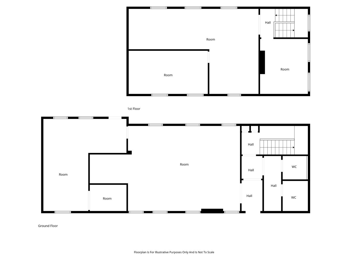
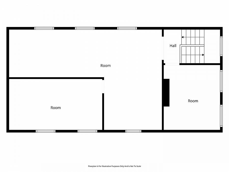
Rooms
ACCOMMODATION
Covered entrance porch with hardwood entrance door and arched glazed fanlight over. Paved pathway leading to front door. Pedestrian timber gate leading to paved service area. Glazed hardwood door leading into:
RECEPTION HALL
Tiled floor. Access to rear hall encompassing stairwell leading to fist floor. Open arch into:
MAIN RESTAURANT / RETAIL UNIT / STUDIO 26'4" X 20'0" (8.04m X 6.10m)
Painted and plastered walls. Dual aspect windows. Wood laminate floor covering. Part timber panelling to ceiling. Air conditioning unit inset to ceiling. Range of fitted and freestanding tables and chairs (available to purchase via separate negotiation). Open recess to:
BAR / SERVICE COUNTER 9'8" X 7'0" (2.97m X 2.15m)
Twin, wood block effect melamine work surface counters with integrated shelving and space for undercounter fridge units below. Composite 1.25 bowl sink unit with draining bay. Fitted shelving. Option to purchase glass washer and fridge units via separate negotiation.
KITCHEN 22'0" X 19'3" (wps) (6.73m X 5.88m (wps))
Vinyl floor covering and strip lighting. Painted and plastered walls. Option to purchase kitchen equipment to include cookers, preparation counters, hot plate, fridge and deep fat fryers via separate negotiation. Generous electrical specification. Gas fired central heating boiler. Fire exit door leading to service area.
CUSTOMER WASHROOM 5'7" X 5'1" (1.72m X 1.56m)
White, two piece suite comprising vanity unit with wash hand basin and WC. Tiled floor. Tile effect PVC panelled walls.
ACCESSIBLE CUSTOMER WASHROOM 7'1" X 5'7" (2.17m X 1.72m)
White, two piece suite comprising floating wash hand basin and WC. Tiled floor. Tile effect PVC panelling to walls.
REAR HALL
Wood strip effect lino floor covering with storage recess. Electric meter cupboard. Alarm panel. Fire alarm panel. Return stairwell to first floor.
FIRST FLOOR
LANDING
Access into office. Glazed double doors leading into:
STORE / STAFF ROOM 30'0" X 20'3" (wps) (9.16m X 6.18m (wps))
Plastered and painted walls and ceiling. Dual aspect windows. Strip lighting, power points and radiators. Carpet floor covering. Access into:
OVERFLOW KITCHEN / PREPERATION ROOM 18'0" X 9'8" (5.50m X 2.95m)
Part painted/part PVC panelling to walls. Tile effect lino floor covering. Twin windows to side elevation. Strip lighting and generous electrical specification. Kitchen equipment available to purchase via separate negotiation.
OFFICE 12'9" X 10'7" (3.90m X 3.25m)
Plastered and painted walls and ceiling. Wood laminate floor covering. Twin windows to front elevation. Strip lighting, power points and radiator.
EXTERNAL
Paved patio area to front.
Faux planter box hedging.
External lighting.
Enclosed service area to side.
Faux planter box hedging.
External lighting.
Enclosed service area to side.
IMPORTANT NOTE TO ALL POTENTIAL TENANTS
Every care has been taken with the preparation of these particulars, but complete accuracy cannot be guaranteed. If there is any point, which is of particular importance to you, please obtain professional confirmation. Alternatively, we will be pleased to check the information for you. All measurements quoted are approximate. The Fixtures, Fittings & Appliances have not been tested and therefore no guarantee can be given that they are in working order. Photographs are reproduced for general information and it cannot be inferred that any item shown is included in the sale. The unit's current designated purpose is passed for Restaurant and Cafes/Drinking Establishments and Hot Food takeaways, and, if required, it will be the responsibility of the tenant to apply for and to obtain a change of use to suit their needs and comply with planning legislation administered by the local council.
Property Location
Contact Agent
Contact Colin Graham Residential
Request More Information
Requesting Info about...
15 Lancasterian Street, Carrickfergus, BT38 8AD
By registering your interest, you acknowledge our Privacy Policy
By registering your interest, you acknowledge our Privacy Policy