Contact Agent

Contact Colin Graham Residential

Contact Colin Graham Residential

3 Bed Terrace House

19 Thorndale Square

Carrickfergus, BT38 8JX

offers over £99,950
  • Status Sale Agreed
  • Property Type Terrace
  • Bedrooms 3
  • Receptions 1
  • Bathrooms 1
  • Heating Oil
  • EPC Rating F38 / D55 -
  • Stamp Duty
    Higher amount applies when purchasing as buy to let or as an additional property
    £0 / £4,998*
  • Typical Mortgage
    Click price to use our mortgage calculator
EPC Rating

Key Features & Description

Mid Terrace Property
Three Bedrooms
Lounge; Open Fire
Kitchen With Informal Dining Area
Bathroom; White Suite
Oil Heating
PVC Double Glazing
Gardens Front and Rear
Convenient Location
Ideal First Time Buy / Buy To Let
Description
Well presented, three bedroom, mid terrace property, situated within the popular and conveniently positioned Sunnylands area of Carrickergus.

The property comprises entrance hall, lounge with open fire, kitchen with informal dining area, three well-proportioned bedrooms, and bathroom, with white, three piece suite.

Externally, the property enjoys gardens front and rear.

Other attributes include oil heating and PVC double glazing.

Ideal first time buy / buy to let investment alike.

Early viewing highly recommended.

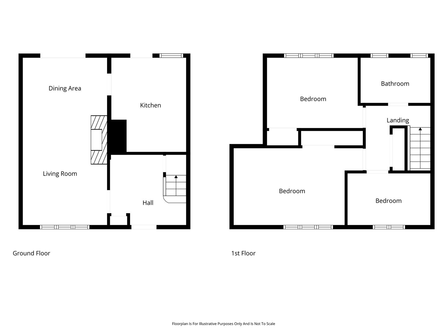
Rooms

ACCOMMODATION
ENTRANCE HALL PVC double glazed front door. Wood laminate floor covering. Stairwell to first floor. Access to under stairs store. Separate built in store.
LOUNGE 20'8" X 10'10" (6.30m X 3.32m) Open fire in brick fireplace with slate hearth. Wood laminate floor covering. PVC double glazed French doors leading to rear garden.
KITCHEN WITH INFORMAL DINING AREA 11'6" X 9'4" (wps) (3.51m X 2.85m (wps)) Fitted kitchen with range of high and low level storage units with contrasting wood grain effect melamine work surface. Stainless steel 1.5 bowl sink unit with draining bay. Integrated gas hob with extractor hood over. Integrated double oven. Plumbed and space for washing machine. Twin glass fronted display cabinets. Fitted breakfast bar unit. Splashback tiling to walls. Tiled floor. PVC double glazed door to rear garden.
FIRST FLOOR
LANDING Access to shelved hot press and roof space.
BEDROOM 1 16'1" X 9'10" (wps) (4.92m X 3.02m (wps)) Built in wardrobe. Wood laminate floor covering.
BEDROOM 2 11'9" X 8'7" (3.59m X 2.63m) Built in wardrobe. Wood laminate floor covering.
BEDROOM 3 10'6" X 6'9" (3.22m X 2.07m)
BATHROOM White three piece suite comprising bath, pedestal wash hand basin and WC. Electric shower and glass shower screen over bath. Fully tiled walls.
EXTERNAL Front garden finished in lawn.
Fully enclosed rear garden finished in lawn and paved patio area.
Boiler house with oil fired central heating boiler.
PVC oil storage tank.
IMPORTANT NOTE TO ALL POTENTIAL PURCHASERS Every care has been taken with the preparation of these particulars, but complete accuracy cannot be guaranteed. If there is any point, which is of particular importance to you, please obtain professional confirmation. Alternatively, we will be pleased to check the information for you. All measurements quoted are approximate. The Fixtures, Fittings & Appliances have not been tested and therefore no guarantee can be given that they are in working order. Photographs are reproduced for general information and it cannot be inferred that any item shown is included in the sale.

Broadband Speed Availability

Ultrafast

Potential Speeds for 19 Thorndale Square

Max Download
1800
Mbps
Max Upload
220
Mbps
The speeds indicated represent the maximum estimated fixed-line speeds as predicted by Ofcom. Please note that these are estimates, and actual service availability and speeds may differ.

Property Location

Show Map

Mortgage Calculator

Disclaimer: The following calculations act as a guide only, and are based on a typical repayment mortgage model. Financial decisions should not be made based on these calculations and accuracy is not guaranteed. Always seek professional advice before making any financial decisions.

Contact Agent

Contact Colin Graham Residential

Contact Colin Graham Residential

Request More Information
Requesting Info about...
19 Thorndale Square, Carrickfergus, BT38 8JX 19 Thorndale Square, Carrickfergus, BT38 8JX

By registering your interest, you acknowledge our Privacy Policy
Ask Holmes
Ask Holmes
Let's find your next home

Are you sure you want to reset the chat?

Checking API...