4 Bed Detached House
              
            
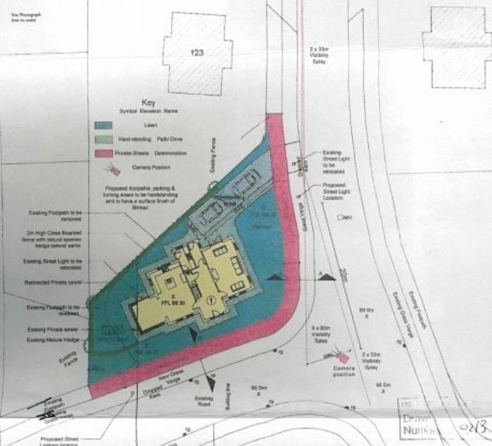
            Site Adjacent To 123 Craigs Road
Carrickfergus, County Antrim, BT38 9XA
              offers over
              
                £249,950
                
              
            
            
          - Status Sale Agreed
- Property Type Detached
- Bedrooms 4
- Receptions 1
- 
                
                  Stamp Duty
                  Higher amount applies when purchasing as buy to let or as an additional property£2,499 / £14,997*
Key Features & Description
Detached property
                  4 Bedrooms (2 with ensuite shower rooms)
                  Lounge
                  Kitchen with appliances open plan to dining area
                  Sunroom
                  Downstairs cloaks and utility room
                  Contemporary white bathroom suite with controlled shower
                  Oil fired condensing central heating
                  Double glazing in uPVC frames
                  Painted throughout
                
              
                  Description
Occupying a superb corner site with breathtaking views of Belfast Lough, the North Down Coast and beyond we have pleasure in marketing this brand new detached family home. The property offers bright spacious and well planned accommodation which is completed to an exacting standard throughout. This is a home we can recommend with utmost confidence.
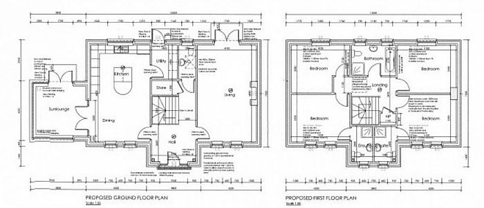
RECEPTION HALL: 10' 2" x 8' 6" (3.1m x 2.59m)
LOUNGE: 13' 5" x 22' 3" (4.09m x 6.78m)
KITCHEN / DINING: 13' 5" x 22' 3" (4.09m x 6.78m)
UTILITY ROOM: 5' 10" x 7' 10" (1.78m x 2.39m)
STORE: 4' 5" x 3' 3" (1.35m x 0.99m)
SUN ROOM: 12' 7" x 13' 9" (3.84m x 4.19m)
WC: 3' 11" x 7' 10" (1.19m x 2.39m)
BEDROOM (1): 13' 5" x 10' 11" (4.09m x 3.33m)
ENSUITE: 4' 11" x 8' 2" (1.5m x 2.49m)
BEDROOM (2): 13' 5" x 10' 11" (4.09m x 3.33m)
ENSUITE: 4' 11" x 8' 2" (1.5m x 2.49m)
BEDROOM (3): 13' 5" x 10' 11" (4.09m x 3.33m)
BEDROOM (4): 13' 5" x 10' 11" (4.09m x 3.33m)
BATHROOM: 12' 5" x 6' 11" (3.78m x 2.11m)
LANDING: Hotpress
External Features
Traditional Finished Rendered External Walls
White Double Glazed Windows in uPVC Frames
Composite uPVC Front & Rear Doors with Five Point Locking Systems
External Lighting Front & Rear
Outside Water Supply
Gardens Levelled and Seeded
High Level of Insulation
Autumn Blend Gravelled Drive and Paths Around Dwelling
General Interior Features
Quality Internal Panel Doors
Contemporary Chrome Door Furniture
Walls & Ceilings Painted Throughout
Painted Skirting & Architraves
Painted Balustrades & Handrails
Tiled Floors in Hall, Kitchen, Bathroom and Ensuite
Carpeted Throughout Except as Above
Comprehensive Selections of Electrical Sockets, Switches, Light Fittings and TV Points
Mains Operated Smoke and Carbon Monoxide Detectors
Alarm System Installed
High Efficiency Oil Fired Condensing Central Heating
Kitchen
Quality Units and Worktops in a Choice of Finishes
Appliances to Include Oven, Hob, Extractor Hood, Integrated Fridge, Freezer and Dishwasher
Floor Tiling & Partial Wall Tiling
LED Downlighters
Bathroom & Ensuites
Contemporary White Sanitary Ware with Chrome Fittings
Heated Towel Rails to Bathroom & Ensuite
Thermostatic Controlled Shower
Tiling Floored and Partial Tiling to Walls
LED Downlights
Cloakroom
Low Level WC & Wash Hand Basin
Tiled Floor & Partially Tiled Wall
Artists impressions and dimensions are approximate and not exact representations.
            Occupying a superb corner site with breathtaking views of Belfast Lough, the North Down Coast and beyond we have pleasure in marketing this brand new detached family home. The property offers bright spacious and well planned accommodation which is completed to an exacting standard throughout. This is a home we can recommend with utmost confidence.
RECEPTION HALL: 10' 2" x 8' 6" (3.1m x 2.59m)
LOUNGE: 13' 5" x 22' 3" (4.09m x 6.78m)
KITCHEN / DINING: 13' 5" x 22' 3" (4.09m x 6.78m)
UTILITY ROOM: 5' 10" x 7' 10" (1.78m x 2.39m)
STORE: 4' 5" x 3' 3" (1.35m x 0.99m)
SUN ROOM: 12' 7" x 13' 9" (3.84m x 4.19m)
WC: 3' 11" x 7' 10" (1.19m x 2.39m)
BEDROOM (1): 13' 5" x 10' 11" (4.09m x 3.33m)
ENSUITE: 4' 11" x 8' 2" (1.5m x 2.49m)
BEDROOM (2): 13' 5" x 10' 11" (4.09m x 3.33m)
ENSUITE: 4' 11" x 8' 2" (1.5m x 2.49m)
BEDROOM (3): 13' 5" x 10' 11" (4.09m x 3.33m)
BEDROOM (4): 13' 5" x 10' 11" (4.09m x 3.33m)
BATHROOM: 12' 5" x 6' 11" (3.78m x 2.11m)
LANDING: Hotpress
External Features
Traditional Finished Rendered External Walls
White Double Glazed Windows in uPVC Frames
Composite uPVC Front & Rear Doors with Five Point Locking Systems
External Lighting Front & Rear
Outside Water Supply
Gardens Levelled and Seeded
High Level of Insulation
Autumn Blend Gravelled Drive and Paths Around Dwelling
General Interior Features
Quality Internal Panel Doors
Contemporary Chrome Door Furniture
Walls & Ceilings Painted Throughout
Painted Skirting & Architraves
Painted Balustrades & Handrails
Tiled Floors in Hall, Kitchen, Bathroom and Ensuite
Carpeted Throughout Except as Above
Comprehensive Selections of Electrical Sockets, Switches, Light Fittings and TV Points
Mains Operated Smoke and Carbon Monoxide Detectors
Alarm System Installed
High Efficiency Oil Fired Condensing Central Heating
Kitchen
Quality Units and Worktops in a Choice of Finishes
Appliances to Include Oven, Hob, Extractor Hood, Integrated Fridge, Freezer and Dishwasher
Floor Tiling & Partial Wall Tiling
LED Downlighters
Bathroom & Ensuites
Contemporary White Sanitary Ware with Chrome Fittings
Heated Towel Rails to Bathroom & Ensuite
Thermostatic Controlled Shower
Tiling Floored and Partial Tiling to Walls
LED Downlights
Cloakroom
Low Level WC & Wash Hand Basin
Tiled Floor & Partially Tiled Wall
Artists impressions and dimensions are approximate and not exact representations.
Property Location
 
                Mortgage Calculator
Contact Agent
 
                Contact McMillan McClure
            Request More Information
        
        Requesting Info about...
                
                    Site Adjacent To 123 Craigs Road, Carrickfergus, County Antrim, BT38 9XA
                     
            
By registering your interest, you acknowledge our Privacy Policy
                
                 
            By registering your interest, you acknowledge our Privacy Policy
 
                   
                   
                   
                   
                   
                   
                  