Contact Agent

Contact Simon Brien (North Belfast)

Contact Simon Brien (North Belfast)

3 Bed Semi-Detached House

18 Ashbourne Manor Square

Carrickfergus, County Antrim, BT38 8GB

offers over £225,000
  • Status For Sale
  • Property Type Semi-Detached
  • Bedrooms 3
  • Receptions 1
  • Bathrooms 3
  • EPC Rating B83 / B83
  • Stamp Duty
    Higher amount applies when purchasing as buy to let or as an additional property
    £2,000 / £13,250*
  • Typical Mortgage
    Click price to use our mortgage calculator
EPC Rating

Key Features & Description

  • Second chance to secure this recently constructed semi-detached home
  • Located in the popular Ashbourne Manor development, Carrickfergus
  • Three well proportioned bedrooms
  • Principal bedroom with ensuite shower room
  • Bright and airy front lounge
  • Modern open plan kitchen with dining area
  • Ground floor WC
  • Contemporary family bathroom
  • Tastefully decorated throughout
  • Enclosed rear garden laid in lawn
  • Ideal for first time buyers, young families or downsizers
  • Early viewing highly recommended
  • Description
    We are delighted to present a second opportunity to secure this recently constructed three bedroom semi-detached home, ideally located within the highly regarded Ashbourne Manor development.

    Finished to an excellent standard throughout, this modern home offers tasteful décor and well-planned accommodation perfect for first-time buyers, young families, or those seeking a low-maintenance property in a convenient setting.

    Upon entering, you are welcomed by entrance hall to a bright and airy front lounge, offering generous living space. To the rear, the contemporary open plan kitchen and dining area provides a fantastic hub of the home, with ample space for family dining and direct access to the rear garden. A convenient ground floor WC completes the downstairs accommodation.

    The first floor comprises three well-proportioned bedrooms, including a principal bedroom with ensuite shower room. A modern family bathroom serves the remaining bedrooms.

    Externally, the property benefits from driveway parking, an enclosed rear garden laid in lawn perfect for children, pets, or outdoor entertaining.

    This superb home combines modern construction, stylish presentation, and practical living space, making it an excellent opportunity for a wide range of purchasers.

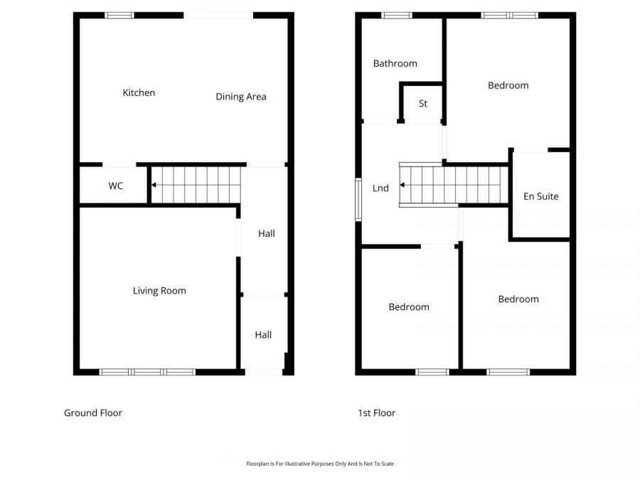
    Rooms

    Ground Floor High quality wood effect tiling
    Porch Wooden front door
    Hallway Decorated with pannelling and wallpaper
    Living Room 13'0" X 12'7" (3.96m X 3.83m) Generous size, power point for mounted TV
    Kitchen / Dining 16'9" X 12'7" (5.11m X 3.83m) Mix of high quality low and high level units, oven, induction hob and hood, Belfast sink with brass mixer tap. Plumbed for fridge freezer, integrated dishwasher, gas boiler, double doors to garden
    WC Low flush WC, mixer tap sink with tile splashback
    First Floor Hotpress
    Master Bedroom 11'6" X 10'1" (3.50m X 3.08m)
    Ensuite Tiled, low flush WC, sink with mixer tap, corner shower with dual showerhead
    Family Bathroom Sink with mixer taps, low flush WC, bath and overhead shower, partially tiled
    Bedroom 2 13'2" X 8'10" (4.01m X 2.68m)
    Bedroom 3 9'10" X 7'9" (2.99m X 2.36m)
    Outside Outside tap, patio and lawn

    Broadband Speed Availability

    Ultrafast

    Potential Speeds for 18 Ashbourne Manor Square

    Max Download
    1800
    Mbps
    Max Upload
    220
    Mbps
    The speeds indicated represent the maximum estimated fixed-line speeds as predicted by Ofcom. Please note that these are estimates, and actual service availability and speeds may differ.

    Property Location

    Show Map

    Mortgage Calculator

    Disclaimer: The following calculations act as a guide only, and are based on a typical repayment mortgage model. Financial decisions should not be made based on these calculations and accuracy is not guaranteed. Always seek professional advice before making any financial decisions.

    Contact Agent

    Contact Simon Brien (North Belfast)

    Contact Simon Brien (North Belfast)

    Request More Information
    Requesting Info about...
    18 Ashbourne Manor Square, Carrickfergus, County Antrim, BT38 8GB 18 Ashbourne Manor Square, Carrickfergus, County Antrim, BT38 8GB

    By registering your interest, you acknowledge our Privacy Policy