Contact Agent
Contact Ulster Property Sales (UPS) Carrickfergus
3 Bed End Terrace
11 Belfast Road
Carrickfergus, BT38 8BP
offers around
£229,950
Description
End terrace house
Spacious accommodation over three floors
Many period feature including original coving & architraves
Entrance hall with herringbone style flooring
Three bedrooms, master bedroom 16'9 x 14'1
19'10 x 16'5 Lounge with feature fireplace
Modern shaker style kitchen incorporating sliding doors to a breakfast room
Downstairs Wc and walk in storage cupboard
Shower room boasting white suite and fully tiled walls and floor
Mostly double glazed & gas heating system
Gardens at the rear with access providing off road parking
Centrally located approximately 0.3 miles from Carrickfergus town centre
Convenient to transport links and the seafront
Viewing is highly recommended
Spacious accommodation over three floors
Many period feature including original coving & architraves
Entrance hall with herringbone style flooring
Three bedrooms, master bedroom 16'9 x 14'1
19'10 x 16'5 Lounge with feature fireplace
Modern shaker style kitchen incorporating sliding doors to a breakfast room
Downstairs Wc and walk in storage cupboard
Shower room boasting white suite and fully tiled walls and floor
Mostly double glazed & gas heating system
Gardens at the rear with access providing off road parking
Centrally located approximately 0.3 miles from Carrickfergus town centre
Convenient to transport links and the seafront
Viewing is highly recommended
Rooms
This charming end-terrace home offers spacious accommodation over three floors and is ideally located just 0.3 miles from Carrickfergus town centre providing easy access to local amenities, transport links to Belfast, and the nearby promenade seafront.
Full of character, the property retains a range of attractive period features, including original coving, architraves, and wooden shutters, which complement the well-proportioned interior. The accommodation comprises three bedrooms, including a generous principal bedroom (16'9 x 14'1), while the standout feature is the impressive lounge (19'10 x 16'5) which incorporates the dining area.
The modern shaker-style kitchen opens into a breakfast room via sliding doors, creating invaluable extra reception space. Additional ground floor benefits include a WC and walk-in storage cupboard. The shower room is fitted with a contemporary white suite and fully tiled walls and flooring while the entrance hall is finished with stylish herringbone flooring.
Further benefits include predominantly double-glazed windows and gas-fired central heating. Externally, the rear garden provides access to off-road parking.
Combining space, character, and a highly convenient location, this attractive home is sure to appeal to a wide range of buyers, and early viewing is highly recommended.
Full of character, the property retains a range of attractive period features, including original coving, architraves, and wooden shutters, which complement the well-proportioned interior. The accommodation comprises three bedrooms, including a generous principal bedroom (16'9 x 14'1), while the standout feature is the impressive lounge (19'10 x 16'5) which incorporates the dining area.
The modern shaker-style kitchen opens into a breakfast room via sliding doors, creating invaluable extra reception space. Additional ground floor benefits include a WC and walk-in storage cupboard. The shower room is fitted with a contemporary white suite and fully tiled walls and flooring while the entrance hall is finished with stylish herringbone flooring.
Further benefits include predominantly double-glazed windows and gas-fired central heating. Externally, the rear garden provides access to off-road parking.
Combining space, character, and a highly convenient location, this attractive home is sure to appeal to a wide range of buyers, and early viewing is highly recommended.
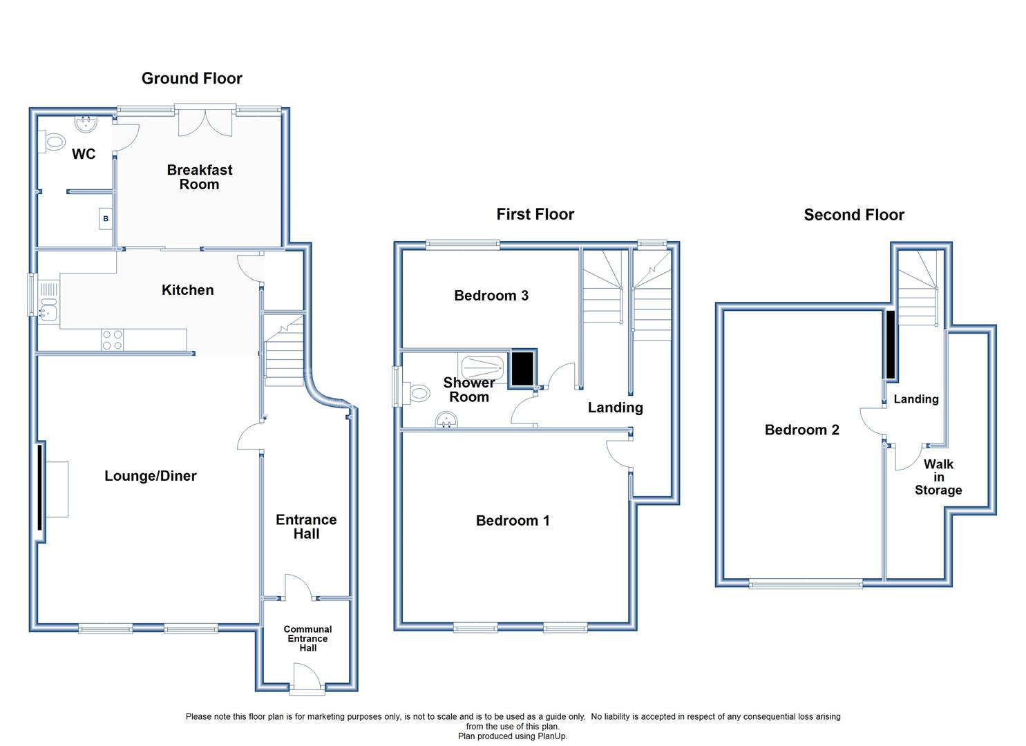
Entrance hall
Original coving, radiator, herring bone style wood flooring, stairs to first floor, door to lounge
Lounge 19'10 X 16'5 (6.05m X 5.00m)
Original coving & ceiling rose, double glazed windows to front aspect, feature wooden shutters, fireplace with wood surround, radiator, laminate wood flooring
Kitchen 16'5 X 7'5 (5.00m X 2.26m)
Double glazed window to side aspect, excellent rage of shaker style high and low level units with roll edge worktops, inset stainless steel sink and drainer with mixer tap over, extractor fan, tiled splashbacks and ceramic tiled flooring, under stairs cupboard, sliding patio doors to breakfast room
Breakfast room 12'2 X 9'8 (3.71m X 2.95m)
Double glazed window and double doors to rear garden, laminate wood flooring, door to downsatirs Wc
Wc
White suite comprising low flush Wc, pedestal sink, storage cupboard incorporating gas boiler
Stairs and 1st floor landing
Double glazed window to rear aspect, wood flooring, doors to
Bedroom one 16'9 X 14'1 (5.11m X 4.29m)
Original coving, double glazed window to front aspect, radiator, wood flooring
Bedroom three 13'1 X 7'3 (3.99m X 2.21m)
Double glazed window to rear aspect radiator, wood flooring
Shower room
Double glazed window to side aspect, white suite comprising low flush Wc, wash hand basin, shower cubicle with contemporary shower screen, tiled cplashback, walls and flooring, heated towel rail.
2nd floor landing
Wood flooring, doors to
Bedroom two 19'10 X 11'5 (6.05m X 3.48m)
Windows to front aspect, radiator
Walk in storage
Walk in in storage cupboard, ideal for a study.
Gardens and grounds
At the rear there is an enclosed garden laid to hardstanding with access providing off road parking
Floor plans
THINKING OF SELLING ?
ALL TYPES OF PROPERTIES REQUIRED
CALL US FOR A FREE NO OBLIGATION VALUATION
UPS CARRICKFERGUS
T: 028 93365986
E:carrickfergus@ulsterpropertysales.co.uk
ALL TYPES OF PROPERTIES REQUIRED
CALL US FOR A FREE NO OBLIGATION VALUATION
UPS CARRICKFERGUS
T: 028 93365986
E:carrickfergus@ulsterpropertysales.co.uk
Virtual Tour
Broadband Speed Availability
Potential Speeds for 11 Belfast Road
Max Download
0
Mbps
Max Upload
0
MbpsThe speeds indicated represent the maximum estimated fixed-line speeds as predicted by Ofcom. Please note that these are estimates, and actual service availability and speeds may differ.
Property Location
Mortgage Calculator
Contact Agent
Contact Ulster Property Sales (UPS) Carrickfergus
Request More Information
Requesting Info about...
11 Belfast Road, Carrickfergus, BT38 8BP
By registering your interest, you acknowledge our Privacy Policy
By registering your interest, you acknowledge our Privacy Policy