Contact Agent

Contact Ulster Property Sales (UPS) Carrickfergus

Contact Ulster Property Sales (UPS) Carrickfergus

3 Bed House

7 Alexander Gardens

Carrickfergus, BT38 7LT

offers around £199,950
  • Status For Sale
  • Property Type House
  • Bedrooms 3
  • Receptions 2
  • Bathrooms 1
  • Interior Area 1000 sqft
  • Heating Gas
  • EPC Rating D60 / D66 -
  • Stamp Duty
    Higher amount applies when purchasing as buy to let or as an additional property
    £1,499 / £11,497*
  • Typical Mortgage
    Click price to use our mortgage calculator
EPC Rating

Description

Detached house
Located in the much sought after Downshire area
Three bedrooms
12'11 x 12'6 lounge with cast iron inset fireplace
Separate dining room with archway to kitchen
Oak style kitchen units incorporating oven, hob, extractor and dishwasher
White bathroom suite with shower over the bath
Gas heating system
Mostly double glazed
Attached garage, driveway with off road parking for three cars
Gardens at the front and rear laid to lawn
Potential for extending (subject to satisfactory approvals)
Convenient to Carrickfergus town centre, seafront and all amenities
Viewing recommended

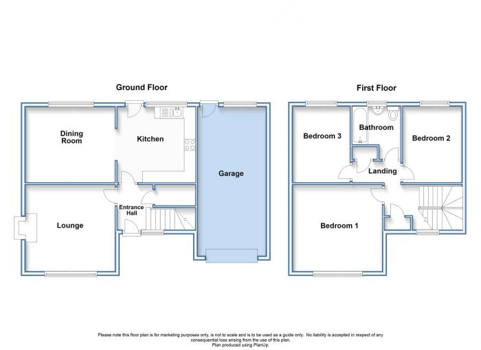
Rooms

Entrance hall Double glazed door, under stairs cupboard, radiator, doors to
Lounge 12'11 X 12'6 (3.94m X 3.81m) Double glazed window to front aspect, fireplace with wood surround and cast iron inset, radiator, laminate wood flooring.
Dining room 12'11 X 10'11 (3.94m X 3.33m) Window to rear aspect, radiator, laminate wood flooring, archway to kitchen.
Kitchen 11'4 X 10'11 (3.45m X 3.33m) Double glazed window and door to rear aspect, range of Oak high and low level units with roll worktops, inset 1.5 bowl sink and drainer with mixer tap over. Built in stainless steel double oven and 4 ring gas hob with extractor fan over, integrated dishwasher, radiator, laminate wood flooring.
Stairs and landing Double glazed window to front aspect, built in storage cupboard, doors to
Bedroom one 12'11 X 12'6 (3.94m X 3.81m) Double glazed window to front aspect, radiator
Bedroom two 11' X 8'6 (3.35m X 2.59m) Double glazed window to rear aspect, radiator
Bedroom three 11' X 8'3 (3.35m X 2.51m) Double glazed window to rear aspect, radiator
Bathroom Double glazed window to rear aspect, white bathroom suite comprising low flush W.c. pedestal sink sink and panel enclosed bath with shower over, radiator
Gardens and grounds At the rear there is a garden laid to lawn whilst at the front a garden in lawn and a driveway providing off road parking
Garage 21'6 X 9'10 (6.55m X 3.00m) Up and over door, power and light, door to rear garden
Floor plan
floor plan
THINKING OF SELLING ?
ALL TYPES OF PROPERTIES REQUIRED
CALL US FOR A FREE NO OBLIGATION VALUATION

UPS CARRICKFERGUS
T: 028 93365986
E:carrickfergus@ulsterpropertysales.co.uk

Broadband Speed Availability

Ultrafast

Potential Speeds for 7 Alexander Gardens

Max Download
1800
Mbps
Max Upload
220
Mbps
The speeds indicated represent the maximum estimated fixed-line speeds as predicted by Ofcom. Please note that these are estimates, and actual service availability and speeds may differ.

Property Location

Show Map

Mortgage Calculator

Disclaimer: The following calculations act as a guide only, and are based on a typical repayment mortgage model. Financial decisions should not be made based on these calculations and accuracy is not guaranteed. Always seek professional advice before making any financial decisions.

Contact Agent

Contact Ulster Property Sales (UPS) Carrickfergus

Contact Ulster Property Sales (UPS) Carrickfergus

Request More Information
Requesting Info about...
7 Alexander Gardens, Carrickfergus, BT38 7LT 7 Alexander Gardens, Carrickfergus, BT38 7LT

By registering your interest, you acknowledge our Privacy Policy
Ask Holmes
Ask Holmes
Let's find your next home

Are you sure you want to reset the chat?

Checking API...